Тренинг персонала сервиса по SCR AdBlue MAN
диагностика

Содержание
- Диагностика двигателей с нейтрализацией ОГ (PM-Cat)
- Мониторинг нейтрализации ОГ
- Мониторинг показаний лямбда-зонда
- Диагностика нейтрализации ОГ в двигателе SCR (AdBlue®)
- Мониторинг температуры
- Мониторинг давления
- Мониторинг AdBlue®
- Мониторинг выходов
- Мониторинг CAN
- Датчик окислов азота и влажность воздуха
- Меню выбора Тест исполнительного элемента
- Меню выбора программы
- AdBlue® - тест дозирующего модуля
- Проверка воздушных линий 8 бар и 4 бар
- Сухой тест дозирующего модуля
- Максимальный объем модуля насоса
- Опорожнение контура AdBlue®
Диагностика нейтрализации ОГ в двигателе с рециркуляцией ОГ (PM-Cat)
Мониторинг нейтрализации ОГ
Температура ОГ перед их обработкой ОГ с целью снижения токсичности

Значение: -50°С - 700°С,
норма >120°С и температура ОЖ > 70°С для обогрева лямбда-зонда.
Перепад давления ОГ в фильтре твердых частиц

Значение: - от 200 мбар до 600 мбар
Мониторинг показаний лямбда-зонда
Фактическое значение лямбда-зонда

Фактическое значение лямбда-зонда при исправном зонде:
температура ОЖ > 70°С:
- в режиме принудительного холостого хода (режим торможения двигателем выключен!) через 1 сек. ок. 2000
- на холостом ходу прибл. через 1 сек. ок. 700
- при полной нагрузке прибл. через 1 сек. ок. 120
Температура лямбда-зонда

Значение между 600°С и 800°С.
Стандартное значение (ориентировочное значение) 780°С ± 2 (лямбда-зонд готов к измерениям).
Управление подогревом зонда

Подогрев зонда начинается только при температуре ОЖ > 70°С и температуре ОГ перед PM-Kat >120°С.
Управление нагревательными элементами различных ступеней нагрева:
Это значение не должно превышать 60%. (Значение больше: запись об ошибке SPN 3855)
Если это значение превышает 60%: проверить штекерные соединения зонда, (повышенное энергопотребление из-за переходного сопротивления).
Коэффициент корректировки лямбда-зонда

Допуск поправочного коэффициента лямбда-зонда: от 890 до 1140
Заданное значение: 1010
Если поправочный коэффициент больше 1140: плохое штекерное соединение или изношен лямбда-зонд. Запись об ошибке SPN 3938.
Внимание!
если значение приблизительно равно 8000 или -8000, то лямбда-зонд необходимо запрограммировать после ремонта Т 100.
Диагностика нейтрализации ОГ в двигателе SCR (AdBlue®)
Мониторинг температуры AdBlue

Индикация температуры AdBlue в резервуаре и в подающем модуле.
Температура до и после катализатора

Значение:от-50 до 700°C
Рассчитанная температура окружающей среды

Температура по CAN

Внешняя температура поступает от FFR с помощью сигнала CAN.
Поэтому в случае сбоя необходима диагностика FFR.
Температура ОЖ и температура воздуха наддува передаются по CAN от
блока управления CR. В случае сбоя причину необходимо искать в области EDC7.
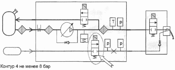
Мониторинг давления
Давление AdBlue®

Здесь отображается давление в магистрали между падающим модулем и дозирующим модулем. Действительные значения можно считать только при работающей системе в ходе пробной поездки.
Нормальное значение: от 2,3 до 2,8 бар
Давление воздуха перед дросселем или после дросселя

Заданное значение перед дросселем: от 7,7 бар до 8,0 бар
Заданное значение после дросселя: < 3,7 бар до < 3,8 бар
Это давление регулируется с помощью клапана регулятора воздуха в подающем модуле.
Действительные значения можно считать только при работающей системе в ходе пробной поездки.
Выполнить программу MAN-cats "Проверка магистралей подачи воздуха".

Контур 4 не менее 8 бар
Слишком высокое давление свидетельствует о негерметичности клапана регулятора воздуха.
Слишком низкое давление свидетельствует об отсутствии подачи сжатого воздуха в подающий модуль (давление в ресивере 4-го контура не менее 8 бар) или о неисправности клапана регулятора воздуха.
В случае сомнения обязательно выполнить проверку с помощью программы MAN-cats "Проверка магистралей подачи воздуха".
Атмосферное давление и давление наддува

Атмосферное давление и давление наддува передаются с помощью сигнала CAN от блока управления CR. В случае сбоя причину необходимо искать в области EDC7
Мониторинг AdBlue®
Индикатор уровня

Показывает степень заполнения резервуара AdBlue®.
Скорость вращения насоса

Отображение скорости вращения насоса AdBlue в подающем модуле.
Заданное значение в зависимости от режима работы
Заполнить систему, повышение давления: от 2000 об/мин до 2500 об/мин
Удержание давления AdBlue®: от 800 об/мин до 1200 об/мин
Если система обнаружит повышенную частоту вращения или блокировку насоса, SPN 5021 будет записана в память ошибок.
Действительные значения можно считать только при работающей системе в ходе пробной поездки.
При повышенной частоте вращения возможны следующие причины и способы устранения
- Топливный бак AdBlue® пуст, "вытяжной вентилятор"- заполнить бак AdBlue®
- Засорился фильтр грубой очистки BOSCH - заменить фильтр
- Негерметичность всасывающей магистрали AdBlue® - заменить уплотнительные кольца
- Неисправен насос в подающем модуле,- заменить подающий модуль
Причина ошибки:
- Выполнить "Программу первого пуска в эксплуатацию" с помощью MAN-cats.
Управление насосом с помощью MAN-cats (можно ли увеличить давление?). Затем подать сигнал на клапан выпуска воздуха для снижения давления.
Дозировка AdBlue

Отображение выпрыснутого количества AdBlue®. Указать ориентировочное значение невозможно, т.к. оно зависит от нагрузки на двигатель. Действительные значения можно считать только при работающей системе в ходе пробной поездки.
Мониторинг выходов
Клапан регулятора воздуха

Коэффициент заполнения управления клапаном регулятора воздуха. Здесь можно проверить, работает ли управление клапаном регулятора воздуха. Клапан регулятора воздуха регулирует давление подачи воздуха дроссельного клапана. Действительные значения можно считать только при работающей системе в ходе пробной поездки.
Клапан выпуска воздуха

Коэффициент заполнения управления клапаном выпуска воздуха. Здесь можно проверить, работает ли управление клапаном выпуска воздуха. Клапан выпуска воздуха открывает проход в обратный поток к резервуару AdBiue®, давление AdBlue® снижается.

Клапан ОЖ для контура AdBlue®

Коэффициент заполнения управления клапаном ОЖдля подогрева резервуара AdBlue®. Здесь можно проверить, работает ли управление клапаном ОЖ.
Дозирующий модуль

Коэффициент заполнения управления дозирующим модулем для впрыска AdBlue®.
Здесь можно проверить, работает ли управление дозирующим модулем.
Действительные значения можно считать только при работающей системе в ходе пробной поездки.
Управление насосом

Коэффициент заполнения управления насосом AdBlue® в дозирующем модуле. Здесь можно проверить, работает ли управление насосом AdBlue®.
Действительные значения можно считать только при работающей системе в ходе пробной поездки.
Модуль подачи внутреннего отопления

Коэффициент заполнения управления отоплением AdBlue® в дозирующем модуле.
Здесь можно проверить, работает ли управление отоплением.
Мониторинг CAN

Значения крутящего момента двигателя, частота вращения двигателя и количества впрыска передаются с помощью сигнала CAN от блока управления двигателем CR. В случае сбоя причину необходимо искать в области EDC7.
Датчик окислов азота и влажность воздуха

Проверка датчика влажности воздуха: Влажная тряпка на решетке забора воздуха воздушного фильтра вызывает повышение относительной влажности воздуха.
Меню выбора Тест исполнительного элемента
Клапан регулятора воздуха

Давление после дросселя должно составлять от 3,9 до 4,2 бар.
Клапан выпуска воздуха

После подачи сигнала на клапан выпуска воздуха давление Ad Blue® должно опуститься до 0. Для правильного проведения этого теста необходимо сначала выполнить тест компонента "Управление насосом".
Управление насосом

После подачи сигнала на насос AdBlue®, давление AdBlue® должно вырасти до 2,8 - 3,7 бар.
Дозирующий модуль

Здесь отображается управление дозирующим модулем.
Важно! Сначала необходимо выполнить тест компонента "Клапан выпуска воздуха", чтобы давление AdBlue® снизилось до 0 бар, в противном случае возможно повреждение катализатора.
Дозирующий модуль начинает работать в тактовом режиме с немного шлепающим звуком.
Меню выбора программы
Первый пуск в эксплуатацию
Программа первого ввода в эксплуатацию служит для проверки, выпуска воздуха и герметизации системы. Эту программу нужно всегда выполнять при открытии магистралей, замене фильтров или подающего модуля.
Перед запуском этой программы необходимо убедиться в правильности подключения всех магистралей (воздушных и гидравлических).

Насос работает, перед повышением давления

- произошло падение давления, заданное значение: от 2,3 до 2,8 бар,
- открылся воздушный клапан,
- давление AdBlue® снова упало.
AdBlue® - тест дозирующего модуля
Этот тест показывает, может ли дозирующий модуль отмерять правильное количество AdBlue®.
Для этого измерения не нужен сжатый воздух.
Примечание: Эта программа выполняется только в том случае, если задана температура после катализатора -25°С. эту температуру можно смоделировать, подключив вместо датчика температуры В634 сопротивление 1800.
СПЕЦИАЛЬНЫЕ ПРИСПОСОБЛЕНИЯ
Артикул MAN 80.99607-6038
Название - контрольный чемодан для проверки установки для впрыска мочевины (AdBlue)

При мониторинге температуры необходимо проверить температуру после катализатора.
Заданное значение -25°С.
Примечание:
В новых автомобилях эту программу можно выполнить также, если температурный датчик В634 подключен после катализатора. Моделирование температуры -25°С не требуется.
Процесс тестирования
Для проведения этого теста демонтируется установленная на автомобиле дозирующая линия (соединяющая дозирующий модуль и форсунку), а на ее место подключается пластмассовый шланг длиной около 500 мм. Выход этой измерительной линии заканчивается в измерительной емкости объемом 250 мл. Контрольное количество измеряется в конце теста.

Проверяются три объема дозировки.
Для корректной проверки дозирующей системы необходимо выполнить все три теста, желательно многократно.
Ссылочное количество:
Большое количество, Время прохождения теста 90 сек. Количество: 150 - 210 мл
Среднее количество, Время прохождения теста 180 сек. Количество: 70 - 95 мл
Небольшое количество, Время проховдения теста 300 сек.
Количество: у MAN отсутствует информация
Если полученное количество явно отличается от нормы, необходимо проверить производительность модуля подачи! Дозирующий модуль можно менять только после того, как будет установлено, что подающий модуль и магистраль, соединяющая AdBlue® и дозирующий модуль в порядке.
Примечание:
Детали уплотнения подающего модуля предназначены только для AdBlue®. Уже при степени загрязнения углеводородами >0,1% (дизельное топливо, гидравлическое масло, моторное или трансмиссионное масло и т.п.) могут выйти из строя насос и мембрана.
Поэтому при описанной выше проверке необходимо пользоваться чистыми измерительными емкостями. Слитую жидкость AdBlue® необходимо правильно утилизовать.
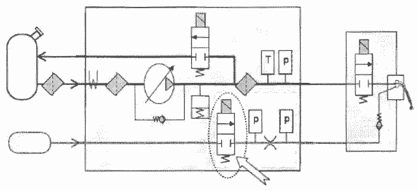
Проверка воздушных линий 8 бар и 4 бар
Здесь проверяется работоспособность клапана регулятора воздуха и герметичность пневмопровода и дозирующего клапана,
С помощью этой программы MANcatsll можно диагностировать засорение или сужение воздушного канала. В зависимости от форсунки AdBlue®, установленной в трубке смесителя, устанавливается постоянное значение "давления воздуха после воздушного дросселя".
Внимание: подключить подачу внешнего воздуха.
Проверка воздушных магистралей 8 бар

Заданное значение управления клапаном регулятора воздуха около 50-55%
Заданное значение перед дросселем: прибл. от 7,7 бар до 8,2 бар
Заданное значение после дросселя: прибл. от 3,7 бар до 3,8 бар
Заданное значение после дросселя без магистрали AdBlue® к форсунке прибл. от 3,0 до 3,2 бар
Проверка воздушных магистралей 4 бар

Заданное значение управления клапана регулятора воздуха ок. 40-45%
Заданное значение перед дросселем: прибл. от 4,0 бар до 4,3 бар
Заданное значение после дросселя: прибл. от 2,6 бар до 2,9 бар
Заданное значение после дросселя без магистрали AdBlue® к форсунке прибл. от 2,4 до 2,7 бар
Анализ результатов тестирования
Необходимо установить постоянное значение для "давления воздуха после воздушного дросселя", которое будет зависеть от типа форсунки AdBlue® в смесителе.
Это давление регулируется с помощью клапана регулятора воздуха в подающем модуле.

Контур 4 не менее 8 бар
Слишком высокое давление перед дросселем означает:
• Негерметичен клапан регулятора воздуха
Слишком низкое давление перед дросселем означает:
• Слишком низкая подача сжатого воздуха в контуре 4 (заданное значение 10 бар)
• Заблокирован клапан регулятора воздуха
Слишком высокое давление после дросселя означает:
• засорена магистраль сжатого воздуха между подающим и дозирующим модулем
• засорен дозирующий модуль
• форсунка мочевины засорена в результате кристаллизации.
Слишком низкое давление после дросселя означает:
• дроссель засорен .
• негерметична магистраль сжатого воздуха между подающим и дозирующим модулем
Действия при поиске неисправности в сервисном центре
- Выполнить программу MANcats "Проверка магистралей подачи воздуха 8 бар". Если "Давление воздуха после дросселя" > 4,2 бар, перейти к пункту 2)
- Отвинтить шланг, соединяющий дозирующий клапан и форсунку, на трубе смесителя.
- Выполнить программу MANcats "Проверка магистралей подачи воздуха 8 бар". Если "Давление воздуха после дросселя" > 3,2 бар: Заменить дозирующий клапан (кристаллизация/засор в дозирующем клапане).
При наличии дефектов в дозирующем клапане, пожалуйста, приложите дефектную деталь
- Выписка FSP
- Результаты теста MANcats (копия экрана - значения давления)
- Фотография дозирующего клапана (позволяет зафиксировать наличие кристаллов в воздушном клапане)
- Номер детали на дозирующем клапане (чтобы исключить путаницу при обследовании)
- Если при снятой соединительной линии "Давление после дросселя < 3,2 бар:
кристаллизация/засорение магистрали или форсунки. Снять форсунку и соединительную магистраль
дозирующего модуля и промыть теплой водой. Замена этих деталей не требуется.
Засорение или сужение из-за кристаллизации мочевины может произойти как в головке форсунки, так и в дозирующем модуле. Если после промывки форсунки теплой водой после дросселя снова возникает повышенное давление, то дозирующий модуль следует промыть теплой водой или заменить.
- Слишком низкое давление свидетельствует об отсутствии подачи сжатого воздуха в подающий модуль (давление в ресивере 4-го контура не менее 8 бар) или о неисправности клапана регулятора воздуха.
- Если давление после дросселя в ходе теста не отличается от давления окружающей среды, значит воздушный дроссель забит и необходимо заменить подающий модуль.
- Если в ходе теста изменится давление воздуха после дросселя, необходимо проверить герметичность магистрали между подающим и дозирующим модулем и проверить отсутствие ошибок монтажа в дозирующем модуле.
При засорении магистрали или форсунки дефектные детали отослать назад вместе с.
- Выписка FSP
- Результатами тестов MANcats (значения давления)
- Фотографией поврежденной детали (чтобы зафиксировать возможное наличие кристаллов)
Сухой тест воздушных магистралей дозирующего модуля
В принципе, здесь выполняется тот же тест, что и при "Проверке воздушных магистралей 8 бар" Отличие: Этот тест выполняется в два этапа, чтобы можно было найти мелкие утечки.
После запуска теста устанавливаются те же значения, что и при "Проверке воздушных магистралей 8 бар" Поэтому должны появиться те же значения.

Приблизительно через 30 секунд давление перед дросселем и после дросселя снизится на величину от 1,3 до 2,0 бар.

Если система герметичная, эти значения не изменяются.
Если нарушена герметичность линий сжатого воздуха или обратного клапана в дозирующем модуле, оба значения давления снизятся.
Картина неисправности

Если в ходе этого теста сильно возрастет давление AdBlue®, значит заблокирована магистраль, соединяющая дозирующий модуль и форсунку Adblue®, или заблокированы оба устройства. Для локализации неисправности необходимо снять соединительную магистраль, ведущую от дозирующего модуля к форсунке Adblue®, и повторить тест. Повторный сильный рост давления AdBlue® свидетельствует о блокировке дозирующего модуля: Очистить дозирующий модуль теплой водой или
заменить.
Максимальный объем модуля насоса
Этот тест показывает, может ли модуль насоса модуля подачи отмерять правильное количество Adblue®.
Для этого измерения не нужен сжатый воздух.
Важное указание:
Эта программа выполняется только в том случае, если задана температура после катализатора не менее -25°С. Эту температуру можно смоделировать, подключив вместо датчика температуры В634 сопротивление 180П.
Примечание:
В новых автомобилях эту программу можно выполнить также, если значение температуры датчика В634 слишком высоко. Моделирование температуры -25°С не требуется.

Процесс тестирования
Для проведения этого теста на дозирующем модуле автомобиля расстыковывается магистраль, соединяющая дозирующий и подающий модуль, и удлиняется полиамидным шлангом длиной около 1500 мм.
Испытательная линия ведет к испытательному дросселю, с помощью которого устанавливается испытательное давление 3 бар.

Внимание:
Сначала всегда нужно выполнять "Предварительный тест", чтобы можно было точно настроить давление AdBlue® 3 бар (с помощью MAN-catsll или манометра) и заполнить испытательные линии или выпустить из них воздух.
Через дополнительную испытательную магистраль AdBlue® стечет в измерительную емкость объемом 500 мл. Полученное количество измеряется в конце теста, оно должно составлять не менее 220 мл.
Внимание:
• Следите за точностью установки испытательного давления 3 бар, в противном случае будут получены неправильные результаты измерения!
• После запуска теста необходимо сразу же открыть запорный кран в испытательной линии, ведущей к измерительной емкости.
• После завершения теста MAN-catsll, сразу же закройте запорный кран и слейте остатки AdBlue® из испытательной линии.

- Р1 Испытательная линия 1
- М Манометр
- PD Испытательный дроссель
- Р2 Испытательная линия 2
- MB Измерительная емкость
Примечание:
Детали уплотнения подающего модуля предназначены только для AdBlue®. Уже при степени загрязнения углеводородами >0,1% (дизельное топливо, гидравлическое масло, моторное или трансмиссионное масло, очистители и т.п.) подающий модуль может выйти из строя.
Поэтому при описанной выше проверке необходимо пользоваться чистыми измерительными емкостями. Слитую жидкость AdBlue® необходимо правильно утилизовать.
Опорожнение контура AdBlue®
Этот тест предназначен для опорожнения системы AdBlue®, его необходимо применять при каждой замене фильтров, подающих и дозирующих модулей или форсунок.
После проведения этих работ всегда следует выполнять программу "Первый пуск в эксплуатацию".
Все тренинги для персонала сервисов - будут доступны пользователям
уже в 60 обновлении.
