Функциональное описание системы охлаждения MAN TG

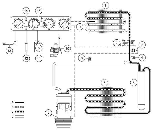
1 Испаритель
2 Расширительный клапан
3 Датчик максимального/минимального давления в ресивере-осушителе хладагента (B203)
4 Вентиль на стороне нагнетания для доливки жидкого хладагента (вентиль с большим диаметром проходного сечения)
5 Ресивер-осушитель хладагента
6 Конденсатор
7 Компрессор с электромагнитной муфтой (Y114)
8 Вентиль на стороне впуска компрессора для газообразного хладагента (вентиль с малым диаметром проходного сечения)
9 Датчик испарителя
10 Электромагнитный клапан переднего кондиционера (Y117)
11 Датчик температуры воздуха на внутреннем выпуске (B393)
12 Датчик температуры наружного воздуха
13 Датчик теплообменника
14 Кнопка включения кондиционера
15 Прибор управления отоплением кабины (A474)
a Жидкий хладагент высокого давления
b Газообразный хладагент высокого давления
c Жидкий хладагент низкого давления
d Газообразный хладагент низкого давления
Описание системы охлаждения
Кондиционер работает по принципу компрессионной холодильной машины, согласно которому вначале циркулирующий в газообразном состоянии хладагент сжимается, затем за счет падения давления и отбора тепла хладагент снова переходит в газообразное состояние.
Когда система охлаждения работает, то есть кондиционер при работающем двигателе автомобиля включен кнопкой (14), на впуск компрессора (7) от испарителя (1) поступает газообразный хладагент. Компрессор сжимает хладагент, в результате сжатия температура хладагента поднимается приблизительно до 65-105°С, затем сжатый хладагент поступает в конденсатор (6). Там сжатый нагретый хладагент охлаждается встречным потоком воздуха. Когда температура хладагента падает до точки росы, например 50°С при давлении 13 бар (хладагент 134a), газ конденсируется. Полученный жидкий хладагент течет через ресивер-осушитель (5), где из него удаляется вода. Встроенный осушитель отфильтровывает влагу или загрязнения.
Датчик максимального/минимального давления (B203) ресивера-осушителя при давлении приблизительно 2 бар разрывает электрическую цепь электромагнитной муфты компрессора (7) с тем, чтобы при падении давления в системе охлаждения компрессор отключался. Датчик давления также отключает компрессор через электромагнитную муфту в случае перегрева системы охлаждения, поддерживая давление не выше прибл. 26 бар, что возможно в частности из-за плохого отвода тепла от конденсатора (конденсатор загрязнен). Если давление хладагента находится в допустимых пределах, он из ресивера-осушителя (5) течет дальше к расширительному клапану (2). Из клапана хладагент впрыскивается в испаритель (1) (сторона низкого давления). В испарителе жидкий хладагент расширяется и под действием отбираемого тепла переходит в газообразное состояние. Требуемое для испарения тепло пластины испарителя отбирают от воздуха. В результате воздух охлаждается и поступает в распоряжение системы охлаждения кабины автомобиля. Компрессор (7) всасывает газообразный хладагент, и цикл повторяется.
Прибор управления отоплением кабины с системой климат-контроля (A474)
Расположение контактов

Вилка соединителя X1

Вилка соединителя X2

Датчик температуры наружного воздуха
Для системы климат-контроля базовым параметром является измеренное значение температуры наружного воздуха. Сигналы других датчиков обеспечивают согласование требуемой тепло- и холодопроизводительности и работы вентилятора.
Датчик испарителя
Датчик испарителя измеряет температуру испарителя и служит для регулирования холодопроизводительности. Когда температура ниже 0°С, защита от замерзания блокирует процесс регулирования. Защита осуществляется посредством отключения и включения компрессора.
Датчик теплообменника (датчик температуры продуваемого воздуха)
Электронный блок управления устанавливает температуру продуваемого воздуха в зависимости от требуемой теплопроизводительности. Регулирование осуществляется за счет управления импульсным водяным клапаном (задание рабочего цикла) в регуляторе расхода воды.
Датчик температуры воздуха на внутреннем выпуске системы климат-контроля (B393)

Расположение контактов

Сравнение уставки с фактическим значением:
Датчик температуры воздуха на внутреннем выпуске системы климат-контроля измеряет действительную температуру в кабине. Это самая важная регулируемая величина, поскольку именно с ее помощью измеряются параметры микроклимата водителя. На внутреннюю температуру влияют все компоненты системы автоматического регулирования (электромагнитный клапан переднего кондиционера, электромагнитная муфта компрессора, вентилятор).
Ввод требуемого значения:
Требуемое значение температуры на внутреннем выпуске можно задавать в пределах от 16 до 32°С. В процессе регулирования система климат-контроля в зависимости от наружной температуры дополнительно корректирует введенное с прибора управления значение уставки. При низких значениях наружной температуры система стремится поддержать более высокую внутреннюю температуру, при высоких значениях наружной температуры - более низкую внутреннюю температуру. Промежуточные положения регулятора (поворотный переключатель внутренней температуры, поз. 22) почти для всех пользователей отражают личные предпочтения, именно они определяют наиболее приятные и комфортные условия. Система контроля диагностического сканера индицирует значение 24°C.
При повороте поворотного переключателя влево (поворот до упора) система отопления отключается и кондиционер соответственно работает на полную мощность. При повороте переключателя вправо (поворот также до упора) система отопления включается на полную мощность, а кондиционер соответственно отключается. Система автоматического управления вентилятором продолжает действовать при вводе значения 16°С или 32°С.
Переключение режимов системы климат-контроля - AC или REHEAT
В режиме AC система климат-контроля управляет кондиционером, регулируя температуру испарителя. Это значит, что система регулирует температуру поступающего в кондиционер воздуха по датчику теплообменника, а температура в кабине регулируется за счет изменения продолжительности работы компрессора или рабочего цикла импульсного водяного клапана. В этом положении система управления климат-контролем автоматически переключается между состояниями охлаждение - вентиляция - нагрев. Если наружная температура соответствует желаемой, но воздух влажный, то хотя кондиционер поддерживает требуемую температуру, но из-за высокой влажности воздуха не может обеспечить в кабине водителя требуемый микроклимат. В этом случае переключаются в положение REHEAT. В положении REHEAT к уставке температуры испарителя кондиционера добавляется от 2 до 7°С, и внутрь кабины подается дополнительное тепло. При прохождении через кондиционер воздух охлаждается, часть содержащейся в нем влаги конденсируется и уходит через сток. Благодаря дополнительному нагреву воздух внутри кабины становится более сухим. В положении REHEAT уставку наружной температуры можно поднять в среднем на 5°С, а также быстрее избавиться от запотевания стекол. В режиме AC топливо расходуется экономичней, чем в режиме REHEAT, поскольку компрессор включается не так часто.
Перепускная заслонка отопителя

Перепускная заслонка (1) позволяет получить параллельный воздушный поток, не поступающий на теплообменник отопителя. Когда кондиционер работает, заслонка полностью открыта, чтобы расход воздуха был как можно больше. В режиме REHEAT заслонка закрывается в зависимости от требуемого удаления влаги. В режиме отопления система климат-контроля осуществляет плавное регулирование положения заслонки в зависимости от требуемой теплопроизводительности (когда отопление работает на полную мощность, заслонка закрыта; когда отопление отключено, заслонка полностью открыта). Таким образом обеспечивается приток свежего воздуха к центральным отверстиям. Благодаря этому улучшается температурное распределение в кабине (ноги в тепле, голова в холоде). Из-за непосредственного подмешивания свежего воздуха колебания температуры у центральных отверстий оказываются столь же сильными, как при использовании дополнительных выпусков воздуха.
Компрессор с электромагнитной муфтой (Y114)
Установленный в автомобиле компрессор играет для кондиционера роль привода, образуя в системе охлаждения точку раздела между стороной высокого и низкого давления. На впуск компрессора (сторона низкого давления) от испарителя поступает холодный хладагент, и компрессор его сжимает. В ходе этого процесса хладагент разогревается и нагнетается в конденсатор (сторона высокого давления).
Включение и отключение компрессора осуществляет электромагнитная муфта (Y114).
Электромагнитная муфта расцеплена

1 Шкив
2 Электромагнит
3 Пластина якоря
4 Упругая пластина
Электромагнитная муфта сцеплена

Ресивер-осушитель хладагента
Иллюстрация для TGL/TGM

Ресивер-осушитель хладагента (1) встроен в конденсатор.
Иллюстрация для TGA

От конденсатора хладагент течет в ресивер-осушитель (1), где находится запас хладагента, и далее по мере изменения его потребления идет в испаритель. Ресивер-осушитель хладагента установлен после конденсатора на стороне высокого давления системы охлаждения. В нем находится хладагент, поступающий из конденсатора в жидком состоянии, там он собирается и соединяется с хладагентом, уже находящимся в ресивере-осушителе.
Датчик максимального/минимального давления ресивера-осушителя (B203)

Датчик максимального/минимального давления (1) установлен после ресивера-осушителя и служит для контроля или ограничения соотношения давлений в замкнутом контуре системы охлаждения.
Этот датчик (1) отключает компрессор, расцепляя электромагнитную муфту, когда давление в системе принимает недопустимое значение, что позволяет защитить кондиционер от возможного повреждения.
Когда давление в системе меньше приблизительно 2 бар, что может произойти при малом количестве хладагента, датчик открывается и отключает компрессор. Когда давление в системе поднимается, например из-за сильного загрязнения конденсатора, то датчик срабатывает при давлении прибл. 26 бар и отключает компрессор.
Термостатический расширительный клапан
Термостатический расширительный клапан служит средством разграничения сторон высокого и низкого давления в системе охлаждения. Он установлен перед испарителем и выполняет роль блокирующего клапана. Расширительный клапан (также называемый клапанной форсункой) служит для подачи в испаритель оптимального количества хладагента. При этом он позволяет управлять подачей хладагента.
Регулирование осуществляется с учетом следующих факторов:
Давление, создаваемое датчиком температуры
Давление на выпуске испарителя
Давление, создаваемое пружиной
Давление на выпуске испарителя
Давление, создаваемое пружиной
В равновесном состоянии: Давление от датчика температуры = Давление на выпуске испарителя + Давление пружины

1 Анероидная коробка
2 Диафрагма
3 Датчик температуры
4 Палец
5 Шарик
6 Пружина
A к компрессору
B от испарителя
C от конденсатора
D к испарителю
Компрессор откачивает хладагент, в результате давление в испарителе падает. Давление на впуске компрессора действует на диафрагму (2) и тянет ее вниз. Движение диафрагмы передается на палец (4) и шарик (5). Клапан открывается против действия пружины, сжатый жидкий хладагент течет через клапан в испаритель и там испаряется. При протекании хладагента через испаритель и расширительный клапан он вследствие испарения отбирает тепло от измерительной среды в датчике температуры (3), датчик вытягивается (объемное сокращение), то есть давление на температурный датчик падает. Температурный датчик и анероидная коробка (1) заполнены одинаковой средой. Это сжиженный газ или адсорбционное вещество, которое при повышении температуры переходит в газообразную форму. В результате нарушается баланс приложенных к шарику (5) сил, шарик под действием пружины поднимается вверх и впрыскиваемое количество уменьшается до восстановления баланса сил.
За счет такого регулирования термостатический расширительный клапан обеспечивает перегрев хладагента. Под понятием перегрева хладагента понимают разность между теоретической температурой испарения при соответствующем давлении и измеренной температурой после испарителя (температура датчика) Величина перегрева составляет для данного расширительного клапана 2,8°С. Таким образом система не разрешает поступить в испаритель такому количеству хладагента, которое не сможет полностью испариться. Если это произойдет, то на впуск компрессора попадет жидкий хладагент и вследствие гидравлического удара компрессор может быть испорчен.
Испаритель

1 Испаритель
2 Распылитель
3 Впускная магистраль
4 Расширительный клапан
Испаритель установлен в кожухе кондиционера сразу у впускного отверстия, по которому поступает свежий или рециркуляционный воздух. Его назначение - охладить и осушить теплый воздух, поступающий в кондиционер из кабины автомобиля. Испаритель является вторым теплообменником системы охлаждения.
В кондиционере применен 6-ходовой цельноалюминиевый испаритель. Сжатый жидкий хладагент поступает в первый ход испарителя через расширительный клапан и распылители. Там он расширяется и в результате отбора тепла испаряется. Необходимую для испарения теплоту пластины испарителя отбирают от потока воздуха, который в результате охлаждается и отдает влагу. Конденсируемая на пластинах испарителя вода свободно вытекает через отверстие отвода конденсата. Чтобы пластины испарителя не замерзали, его минимальную температуру ограничивают приблизительно +2°С.
Конденсатор
Конденсатор служит для охлаждения и сжижения горячего хладагента. Он установлен в автомобиле таким образом, что охлаждается встречным потоком воздуха, поступающим от вентилятора системы охлаждения двигателя.
Компрессор нагнетает нагретый до 60-100°С хладагент в змеевик конденсатора. Большое количество пластин конденсатора обеспечивает получение большой площади и соответственно хороший принудительный теплообмен. Нагретый газ отдает тепло встречному потоку, его температура становится ниже точки росы, и он конденсируется. Жидкий хладагент вытекает из конденсатора и под давлением поступает в ресивер-осушитель.
Присоединительные вентили
С помощью присоединительных вентилей в агрегат можно заливать или сливать хладагент. Для проверки кондиционера к нему можно присоединить манометр. Присоединительные вентили выполнены в виде игольчатых клапанов.

1 Присоединительный элемент
2 Игольчатый клапан
Чтобы присоединительные вентили нельзя было перепутать, они сделаны разного размера.
Иллюстрация для TGL/TGM

Иллюстрация для TGA

1 Малый вентиль:Сторона впуска - сторона низкого давления
2 Большой вентиль: Сторона нагнетания - сторона высокого давления
Присоединительные вентили находятся под передней крышкой. Для доступа к присоединительным вентилям необходимо снять заглушки.
Хладагент R 134a
Чтобы обеспечить в кондиционере процесс испарения, в качестве рабочей среды применено вещество с низкой температурой кипения, называемое хладагентом. Известно, что по мере понижения давления воды также понижается температура кипения. Аналогично ведут себя все однородные жидкости. Когда давление падает, температура кипения понижается, когда давление растет, температура кипения увеличивается. Хладагент (тетрафторэтан) 134a является неполностью галогенизированным веществом из группы фторуглеводородных соединений (FKW, химическая формула CF3CH2F), кипит при 26,5°С. Время существования в атмосфере неполностью галогенизированных веществ мало, и поскольку они не содержат хлор, то не разрушают озоновый слой. Кроме того, их вклад в парниковый эффект сравнительно мал. Хладагент 134a является бесцветной жидкостью со слабым запахом эфира. При контакте хладагента с огнем или горячими поверхностями возможно образование продуктов распада (пары) с сильным раздражащим действием, при соединении с воздухом возможно образование взрывоопасной смеси. Продуктами распада являются галогеноводород и карбонилгалогенид. При существенном превышении значений ПДК в воздухе 134a может оказывать наркотическое действие.
Доливаемое количество холодильного масла
Масло, необходимое для смазки компрессора, находится в системе охлаждения вместе с хладагентом, при останове кондиционера оно оседает на его деталях. Поэтому после замены деталей в кондиционер вместе с хладагентом необходимо долить немного масла.
Обратите внимание, что с хладагентом и кондиционером необходимо использовать определенный тип масла и что смешивать различные типы масел ни в коем случае нельзя.
Масло для кондиционера является гигроскопичным, то есть оно поглощает воду из влажного воздуха. Поэтому оставлять масло для кондиционера в незакрытом контейнере ни при каких обстоятельствах нельзя!