См. также:
Электрооборудование VOLVO FM7, FM10, FM12 LHD
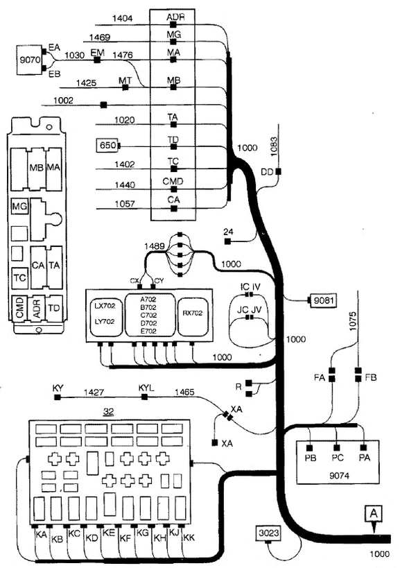
Указатель иллюстраций для жгутов проводки
- 650 Электродвигатель очистителя ветрового стекла
- 1000 Жгут проводки, комбинация приборов
- 1000 Жгут проводки, комбинация приборов (Dynafleet)
- 1002 Жгут проводки, тахограф (CABLE-EC)
- 1006 Жгут проводки кабины, верхний
- 1007 Жгут проводки кабины, нижний
- 1017 Жгут проводки обогревателя кабины/двигателя
- 1020 Жгут проводки торпедо
- 1030 Жгут проводки двигателя
- 1031 Жгут проводки автоматической коробки передач
- 1037 Жгут проводки подъемника тележки
- 1042 Жгут проводки задних фонарей
- 1057 Жгут проводки шасси
- 1061 Жгут проводки стояночного отопите ля кабины
- 1062 Жгут проводки стояночного отопителя, на раме
- 1072 Жгут проводки пневматической подвески
- 1074 Жгут проводки гидравлического подъемника тележки с ограничителем нагрузки на ось
- 1075 Жгут проводки ограничителя скорости, в кабине
- 1077 Жгут проводки боковых габаритных фонарей
- 1083 Жгут проводки двери
- 1084 Жгут проводки кабины, ABS
- 1086 Жгут проводки электромагнитных клапанов ABS
- 1097 Жгут проводки, питающий кабель подъемника тележки
- 1402 Жгут проводки омыватеяя ветрового стекла
- 1403 Жгут проводки замедлителя
- 1404 Жгут проводки ADR
- 1413 Жгут проводки AGS/PS в кабине (GEARTRONIC)
- 1413 Жгут проводки AGS/PS в кабине (POWERTRONIC}
- 1422 Жгут проводки, Geartronic - шасси
- 1425 Жгут проводки, импульсный датчик - тахограф (CABLE-B)
- 1433 Жгут проводки блокиратора подъемника тележки 3-й оси
- 1440 Жгут проводки электропривода зеркала заднего вида
- 1454 Жгут проводки насоса опрокидывателя кабины
- 1465 Жгут проводки вспомогательного оборудования
- 1469 Жгут проводки нагревателя топливного фильтра
- 1476 Жгут проводки двигателя, в кабине
- 1484 Жгут проводки адаптера, AGS/PS, опора рычага переключателя передач (Geartronic)
- 1484 Жгут проводки адаптера, AGS/PS, опора рычага переключателя передач (Powertronic)
- 1485 Жгут проводки сцепления
- 1487 Жгут проводки, Powertronic/кабина - адаптер
- 148S Жгут проводки системы централизованной смазки
- 1489 Жгут проводки адаптера, без тахографа
- 1491 Жгут проводки компактного замедлителя, электронный модуль управления/кабина

