Электросхемы топливной системы EDC MS 6.4 автобусы MAN NL/NU/NM
Автобусы NL/NU
Актуальность: 11.99
A = Электропитание
B = Реле резервного отключения
C = Группа резисторов
D = Шина данных CAN
- A142 (524) Блок управления EDC (блок управления двигателя)
- F163 (130) Предохранитель EDC (кл. 30)
- F236 (117) Предохранитель EDC (кл. 15)
- K170 100 Реле электропитания EDC (кл. 30)
- K324 (261) Реле резервного отключения
- R134 (113) Группа резисторов
- X232 (130) Распределитель кабеля 60001
- X990 Штекерное соединение основная коммутационная плата - регулировка двигателя
- X999 Распределитель кабеля 30022
- X1001 Штекер шины данных CAN регулировки двигателя
- X1069 Штекерное соединение основная коммутационная плата - узел регулировки двигателя
- X1167 Штекерное соединение приборной платы EDC
- X1168 Штекерное соединение приборной платы EDC
- X1747 Распределитель кабеля 15008
A = Датчик температуры воды
B = Датчик температуры воздуха
C = Датчик давления наддува
D = не требуется
E = Датчик частоты вращения
F = не требуется
G = Регулятор
- A142 (524) Блок управления EDC (блок управления двигателя)
- B124 (118) Датчик температуры охлаждающей жидкости
- B125 (119) Датчик давления наддувочного воздуха
- B199 (169) Датчик частоты вращения
- X337 Штекерное соединение EDC - разъем двигателя
- Y130 (176) Исполнительный механизм ТНВД (блок управления насоса)
A = не требуется
B = не требуется
C = Педальный датчик
D = не требуется
E = Стоп-сигнал
- A142 (524) Блок управления EDC (блок управления двигателя)
- B127 (120) Педальный датчик
- X990 Штекерное соединение основная коммутационная плата - регулировка двигателя
- X1069 Штекерное соединение основная коммутационная плата - узел регулировки двигателя
A = Распределение массы
B = Контрольная лампа
C = Диагностика
D = Интерфейс ABS
E = Повышение холостого хода
F = Моторный тормоз
G = Резервные кабели
- A142 (524) Блок управления EDC (блок управления двигателя)
- X200 Центральная диагностическая розетка MAN-cats
- X210 Штекерное соединение диагностики (запрос мигающего кода)
- X615 (128) Распределитель кабеля 31000
- X617 (128) Распределитель кабеля 31000
- X627 (130) Распределение массы EDC
- X869 Штекерное соединение основная коммутационная плата - центральный процессор
- X982 Штекерное соединение узла регулировки двигателя
- X990 Штекерное соединение основная коммутационная плата - регулировка двигателя
- X991 Штекерное соединение резерва EDC
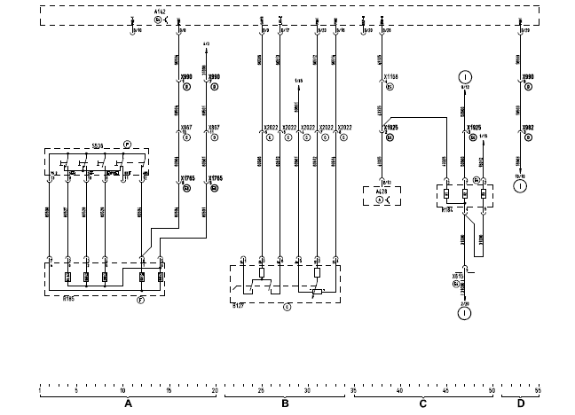
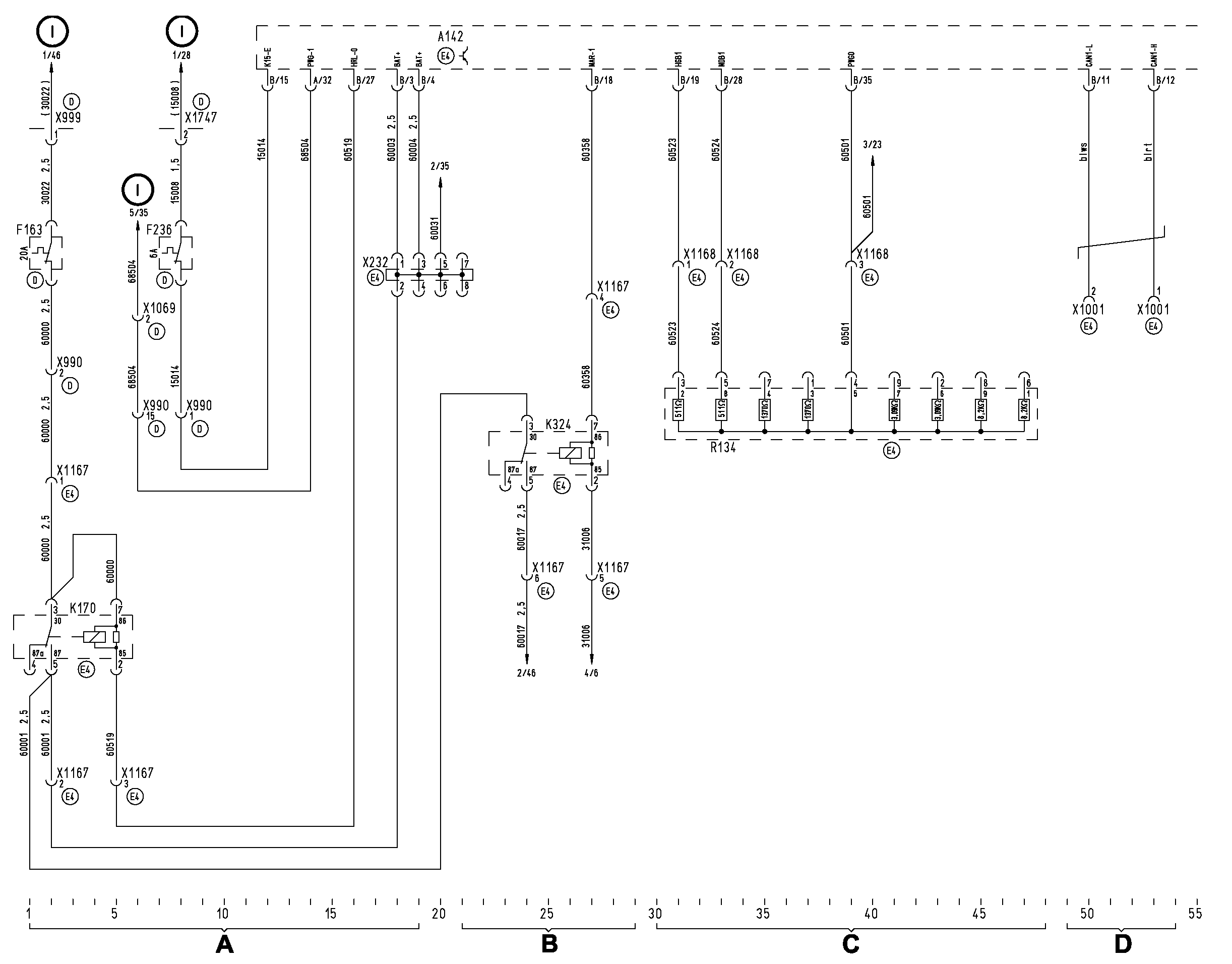
Автобусы NM
Актуальность: 02.00
A = Электропитание
B = EDC ВЫКЛ
C = Реле резервного отключения
D = Группа резисторов
- A142 (524) Блок управления EDC (блок управления двигателя)
- A428 (280) Мультиплексный узел сзади слева
- F163 (129) Предохранитель EDC (кл. 30)
- K170 100 Реле электропитания EDC (кл. 30)
- K324 (100) Реле резервного отключения
- R134 (113) Группа резисторов
- V574 (104) Диодная группа
- V575 Диод инерционной фазы EDC
- X232 (130) Распределитель кабеля 60001
- X864 (211) Распределитель кабеля 30022
- X1167 Штекерное соединение приборной платы EDC
- X1168 Штекерное соединение приборной платы EDC
- X1925 Штекерное соединение стренга задней части - приборная плата
- X1952 Штекерное соединение приборной платы, крыша

A = Датчик температуры воды
B = Датчик температуры воздуха
C = Датчик давления наддува
D = не требуется
E = Датчик частоты вращения
F = Рециркуляция ОГ AGR
G = Регулятор
- A142 (524) Блок управления EDC (блок управления двигателя)
- B124 (118) Датчик температуры охлаждающей жидкости
- B125 (119) Датчик давления наддувочного воздуха
- B199 (169) Датчик частоты вращения
- X337 Штекерное соединение EDC - разъем двигателя
- Y130 (176) Исполнительный механизм ТНВД (блок управления насоса)
- Y280 (205) Цилиндр AGR

A = Режим Темпомат
B = Педальный датчик
C = Сенсор тормоза
D = v/км
- A142 (524) Блок управления EDC (блок управления двигателя)
- A428 (280) Мультиплексный узел сзади слева
- B127 (120) Педальный датчик
- R184 (126) Группа резисторов MUX/ECAS
- R185 (145) Группа резисторов переключателя режима Темпомат
- S536 (529) Переключатель на рулевой колонке Темпомат
- X615 (128) Распределитель кабеля 31000
- X867 Штекерное соединение основная коммутационная плата - центральный процессор
- X982 Штекерное соединение узла регулировки двигателя
- X990 Штекерное соединение основная коммутационная плата - регулировка двигателя
- X1168 Штекерное соединение приборной платы EDC
- X1765 Штекерное соединение приборная панель - центральный процессор
- X1925 Штекерное соединение стренга задней части - приборная плата
- X2022 Штекерное соединение педального блока, центральный разъем

A = Распределение массы
B = Контрольная лампа
C = Диагностика
D = T-CAN
E = Повышение холостого хода
F = Моторный тормоз
G = Резервные кабели
- A142 (524) Блок управления EDC (блок управления двигателя)
- A428 (280) Мультиплексный узел сзади слева
- X113 Штекерное соединение главный фидер - задняя часть кузова
- X200 Центральная диагностическая розетка MAN-cats
- X210 Штекерное соединение диагностики (запрос мигающего кода)
- X267 Штекерное соединение главный фидер - основная коммутационная плата
- X615 (128) Распределитель кабеля 31000
- X627 (130) Распределение массы EDC
- X980 Штекерное соединение узла коробки передач
- X982 Штекерное соединение узла регулировки двигателя
- X990 Штекерное соединение основная коммутационная плата - регулировка двигателя
- X991 Штекерное соединение резерва EDC
- X1001 Штекер шины данных CAN регулировки двигателя
- X1272 Распределитель кабеля 31000
- X1787 Штекерное соединение основная коммутационная плата - перегородка места водителя
- X1797 Штекерное соединение перегородка места водителя - основная коммутационная плата
- X1798 Штекерное соединение перегородка места водителя - основная коммутационная плата
- X1872 Штекерное соединение перегородка места водителя - основная коммутационная плата




