Электронная тормозная система EBS WABCO TGL / TGM
EBS Электронная тормозная система WABCO 1 из 2
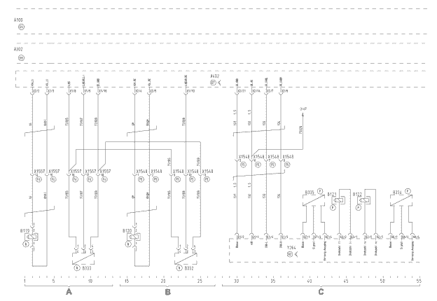
A Передний мост слева
B Передний мост справа
C Задний мост
- A100 Электрическая бортовая сеть
- A302 Центральный процессор 2
- A402 Блок управления EBS
- B119 Датчик частоты вращения переднего моста слева
- B120 Датчик частоты вращения переднего моста справа
- B121 Датчик частоты вращения ведущего моста слева
- B122 Датчик частоты вращения ведущего моста справа
- B332 Датчик тормозной накладки переднего моста справа
- B333 Датчик тормозной накладки переднего моста слева
- B334 Датчик тормозной накладки ведущего моста справа
- B335 Датчик тормозной накладки ведущего моста слева
- X1548 Штекерное соединение - рама IV
- X1557 Штекерное соединение - левая рама
- Y264 Модуль регулирования давления заднего моста
EBS Электронная тормозная система WABCO 2 из 2
A Электропитание
B Диагностика через CAN
C Резервный клапан
D Сигнальные лампы
- A100 Электрическая бортовая сеть
- A302 Центральный процессор 2
- A402 Блок управления EBS
- A407 Приборная панель
- F161 Предохранитель EBS/ABS электропитание клапана регулирования давления
- F162 Предохранитель EBS/ABS управление
- F393 Предохранитель электропитания ABS
- H107 Сигнализатор ABS автомобиля-тягача/прицепа
- X1644 Точка заземления кабины рядом с электрической бортовой сетью
- X1942 Обжимное соединение кабеля синий/белый
- X1943 Обжимное соединение кабеля синий/красный
- X3410 Штекерное соединение - резервный клапан EBS/Wabco
- Y368 Резервный клапан EBS/Wabco
Розетка прицепа EBS/ABS
A Розетка прицепа
B Сигнальные лампы
- A100 Электрическая бортовая сеть
- A302 Центральный процессор 2
- A402 Блок управления EBS
- A407 Приборная панель
- F160 Предохранитель EBS/ABS электропитание прицепа
- G101 Аккумуляторная батарея 2
- H151 Индикатор информации ABS прицепа
- X317 Розетка прицепа ABS
- X1542 Штекерное соединение - рама II
EBS-Модуль управления прицепа
A Модуль заднего моста
- Y264 Модуль регулирования давления заднего моста
- Y278 Модуль управления прицепа
EBS-ограничительные клапаны переднего моста

A Передний мост слева
B Передний мост справа
- A402 Блок управления EBS
- X2413 Штекерное соединение - ограничительный клапан EBS/Wabco
- Y125 Ограничительный клапан 1-го моста слева
- Y126 Ограничительный клапан 1-го моста справа
EBS-Резервный клапан

A Резервный клапан
- A100 Электрическая бортовая сеть
- A402 Блок управления EBS
- X1548 Штекерное соединение - рама IV
- X3410 Штекерное соединение - резервный клапан EBS/Wabco
- Y368 Резервный клапан EBS/Wabco
1 Модуль регулирования давления заднего моста



