BBM (Body Builder Module) DAF CF75IV, CF85IV, XF105

Работа электронного модуля Body Builder Module
Электронный модуль Body Builder Module часто пишется как BBM.
BBM - это аббревиатура от Body Builder Module.
Электронный модуль Body Builder Module (BBM) представляет собой электронный блок, который получает информацию и включает функции автомобиля. BBM является частью сети CAN, BBM получает и посылает информацию через соединения CAN. BBM получает информацию по V-CAN2 (CAN2 автомобиля), а отправляет - через BB-CAN (Body Builder CAN).
BBM также получает информацию через аналоговые и цифровые входы.
Данная информация поступает от датчиков и переключателей. На основании полученной информации BBM определяет, есть ли необходимость во включении функции.
BBM имеет разные типы входов и выходов:
- цифровые выходы
- цифровые входы
- аналоговые входы
- мультиплексированные соединения (CAN)
В BBM, среди прочего, можно включить следующие функции:
- функции кузова (Body Builder CAN)
- управление частотой вращения коленвала двигателя
- функциональность МОМ 1 и МОМ 2
- функции, зависящие от области применения, например, машины для сбора мусора, гидравлическая платформа

Предусмотрены два варианта электронного блока. Используемый вариант BBM зависит от выбранного
оборудования в автомобиле. Функции электронного блока определяются программным обеспечением данного автомобиля, запрограммированным в электронном блоке. Кроме того, в блоке можно запрограммировать параметры владельца для различных функций.
BBM full (на этикетке указано BBM) используется на автомобилях с:
- Подготовкой для сбора мусора
- Подготовкой гидравлической платформы
- Коробкой передач Allison
BBM Lite (на этикетке указано BBM-L) используется на автомобилях со:
Сферой применения BBM, отличной от указанной в пункте для BBM full
В случае модернизации и изменения конфигурации автомобиля, возможно, потребуется запрограммировать электронный блок.
Источники электропитания
Функции разделены на две группы, каждой из которых соответствует свой источник питания. В случае неисправности одного из источников питания возникает неисправность в группе функций, которую он питает.
Микропроцессор автоматически получает питание от одной из двух групп, защищенных предохранителем.
Функция выходов зависит от функциональности BBM.
Соединение CAN

Связь по сети CAN с системами автомобиля
В BBM могут присутствовать различные соединения CAN. С помощью данных соединений осуществляется связь с другими системами автомобиля.
V-CAN2 через соединения C14 и C15. Связь CAN между модулем BBM и другими системами автомобиля.
BB-CAN через соединения D09, D17 и D19. Связь CAN между модулем BBM и системами Body Builder.
V-CAN2
BBM связывается с другими электронными системами автомобиля через V-CAN2. Данное соединение используется для обмена данными.
Входящие сообщения CAN
Примеры входящих сообщений CAN:
- выбор передачи AS Tronic для BBCAN (V-CAN2)
- сообщения о времени с тахометра для BB-CAN (V-CAN2)
- сигналы круиз-контроля с блока DMCI для BB-CAN (V-CAN2)
- частота вращения двигателя с блока DMCI в целях активации МОМ (V-CAN2)
Исходящие сообщения CAN
Примеры исходящих сообщений CAN:
- запрос на отображение информации на информационной панели DIP (V-CAN2)
- запрос на включение управления частотой вращения двигателя (VCAN2)
- условия включения и выключения МОМ (V-CAN2)
BB-CAN
Различные электронные системы автомобиля (например, VIC, DMCI, тахометр) могут отправлять
сообщения, а BBM может их получать.
Данные сообщения передаются в BBM по BB-CAN. Для этой цели предусмотрено два разъема: A105 и
A106. Разъем A105 расположен за кабиной; разъем A106 находится внутри центрального шкафа. Оба
разъема имеют штепсель с оконечным резистором.
Например, в BB-CAN подаются следующие сигналы:
- выбранная передача (значение) в случае AS Tronic или AGC-A
- фактическая передача (значение) в случае AS Tronic или AGC-A
- фактическое передаточное число в случае механической коробки передач
- частота вращения двигателя (об/мин)
- часы пробега автомобиля (часы)
- общее время МОМ (часы), выбранного в VIC
- сигнал МОМ (вкл./выкл.)
- общий расход топлива (л/час)
- средний расход топлива (км/л)
- стояночный тормоз (включен/выключен)
- скорость колеса (км/ч)
- включение круиз-контроля (включен/выключен)
- допуск круиз-контроля (разрешен/запрещен)
- сигнал тормоза (включен/выключен)
- переключатель педали сцепления (вкл./выкл.)
- переключатель круиз-контроля SET (вкл./выкл.)
- переключатель круиз-контроля SET - (вкл./выкл.)
- переключатель круиз-контроля RES (вкл./выкл.)
- переключатель круиз-контроля SET + (вкл./выкл.)
- переключатель заданной скорости круиз-контроля (км/ч)
- состояние МОМ (значение)
- состояние круиз-контроля (фактическое состояние)
- нагрузка на ось (кг)
Электронный модуль может управлять различными функциями автомобиля с помощью BBM. Например,
электронный модуль управляет следующими функциями:
- включение и выключение МОМ 1 и 2
- частота вращения коленчатого вала двигателя (функции,
- эквивалентные разъему системы управления частотой вращения коленвала двигателя)
- ограничение скорости автомобиля специального назначения
- остановка двигателя
- запуск двигателя
- запрос на общий расход топлива и средний расход топлива
- запрос в VIC на отображение предупреждений, касающихся кузова, на DIP. Например: "Body ok" (Кузов в норме), "Body error" (Ошибка кузова", "Body temperature" (Температура кузова) и "Body unlocked" (Кузов разблокирован).
Разъем системы управления оборотами двигателя

Управление частотой вращения коленвала двигателя через вспомогательный разъем
Соединения вспомогательного разъема (A068), которые относятся к системе управления частотой
вращения коленвала двигателя, подсоединены к электронному блоку BBM (D993). BBM посылает данную
информацию через сообщение CAN в электронный блок DMCI (D965).
Условия включения и выключения, а также другие программируемые значения программируются в
электронном блоке DMCI.
Вспомогательный разъем можно использовать для включения двух фиксированных частот вращения
коленчатого вала двигателя "n2" (контакт 9) и "n3" (контакт 10), а также регулируемой частоты
вращения "ESC var" (контакт 8).
Регулируемую частоту вращения можно снизить с помощью соединения S- (контакт 5) и увеличить с помощью соединения S+ (контакт 6).
Функция включается после отправки сигнала напряжения на контакт 7 ("Включено") вспомогательного
разъема. Затем BBM посылает сообщение CAN в электронный блок DMCI для включения управления
частотой вращения коленчатого вала двигателя через вспомогательный разъем.
Затем следует выбрать "ESC variable", "n2" или "n3". После отправки сигнала напряжения в BBM через
одно из трех соединений включается соответствующий тип управления частотой вращения коленчатого вала двигателя. Регулируемую частоту вращения "ESC var" (контакт 8) можно снизить с помощью соединения S-(контакт 5) и увеличить с помощью соединения S+ (контакт 6).

Дополнительные функции вспомогательного разъема
Помимо управления оборотами двигателя с помощью разъема системы управления частотой вращения коленвала двигателя (A068) можно выполнять следующие функции:
1. ограничение скорости автомобиля специального назначения ("скорость специального назначения
Vmax")
2. сигнал частоты вращения коленвала двигателя ("Частота вращения коленчатого вала двигателя")
3. останов двигателя ("Дистанционный останов двигателя")
4. запуск двигателя ("Дистанционный запуск двигателя")

Ограничение скорости автомобиля специального назначения
Максимальную скорость автомобиля можно ограничить (например, на мусоровозах) до специального
запрограммированного значения.
Данная функция включается, если сигнал напряжения посылается через контакт 4 ("скорость специального назначения Vmax") вспомогательного разъема (A068) в электронный блок BBM.
Данную скорость можно изменить с помощью DAVIE.
Сигнал частоты вращения двигателя
Преобразованный сигнал частоты вращения двигателя передается через контакт D05 на контакт 3
вспомогательного разъема ("частота вращения двигателя"). Данный сигнал основывается на
синусоидальном сигнале частоты вращения двигателя, поступающем от датчика частоты вращения
коленчатого вала, но преобразовывается в прямоугольный импульсный сигнал с частотой 30 импульсов на оборот коленчатого вала. Сигнал генерируется в системе управления двигателем DMCI.
Останов двигателя
Если сигнал напряжения подается на контакт 2 ("Останов двигателя") вспомогательного разъема (A068), сигнал напряжения появляется на контакте C16 BBM. BBM посылает запрос на останов двигателя через сообщение CAN в электронный блок DMCI (D965), который останавливает насосные агрегаты и форсунки, чтобы остановить двигатель.
CF75IV, CF85IV, XF105
Автомобили, неделя спецификации которых не позднее 32 недели 2007 г.
Сигнал напряжения необходимо посылать в BBM, пока двигатель не остановится.
CF75IV, CF85IV, XF105
Автомобили, неделя спецификации которых не ранее 33 недели 2007 г.
Сигнал напряжения должен подаваться в течение не менее 0,3 с.
Запуск двигателя
Если сигнал напряжения подается на контакт 11 ("запуск двигателя") вспомогательного разъема (A068),
сигнал напряжения появляется на контакте D08 BBM. BBM подает напряжение на контакт A07. Данный
выход соединен с цепью запуска.
Двигатель запускается, когда соединение "массы" пускового реле подсоединено к "массе" с помощью
электронного блока DMCI (D965).
CF75IV, CF85IV, XF105
Кроме того, в электронный блок подается напряжение для обогревателя кабины Hydronic 10 (D979). Если автомобиль оборудован для транспортировки опасных веществ, обогреватель кабины должен быть выключен во время запуска.
CF75IV, CF85IV, XF105
Автомобили, неделя спецификации которых не позднее 32 недели 2007 г.
BBM подает выходной сигнал на контакт A07, если выполняются следующие условия:
- Кабина заблокирована.
- Двигатель не работает.
CF75IV, CF85IV, XF105
Автомобили, неделя спецификации которых не ранее 33 недели 2007 г.
BBM подает выходной сигнал на контакт A07, если выполняются следующие условия:
- Кабина заблокирована.
- Двигатель не работает.
- Стояночный тормоз включен.
- Автомобиль неподвижен.
Управление PTO
CF75IV, CF85IV, XF105

PTO 1
После нажатия переключателя управления PTO 1 (C750) напряжение подается (после включения зажигания) на контакт C07 BBM. В зависимости от запрограммированных настроек параметров владельца BBM подает напряжение в клапан управления PTO (B245) через контакт A04. Кроме того, на разъем A098 FMS подается сигнал "PTO включен".
Примеры настроек параметров владельца:
- Состояние стояночного тормоза
- Состояние педали тормоза
- Состояние скорости автомобиля
- Состояние сцепления
- Состояние частоты вращения коленчатого вала двигателя
CF75IV, CF85IV, XF105
Данные условия переключения можно изменить с помощью DAVIE. Если PTO включен, включается переключатель управления PTO (F087 или F141), и BBM получает сигнал "массы" на контакте C10. Если возвращаемое сообщение о состоянии (C10) не поступает вовремя или если сообщение информирует, что условия выключения выполнены, выход (A04) будет выключен, и появится предупреждение PTO на DIP (дисплей на щитке приборов). Индикация активного PTO на DIP не загорится до тех пор, пока не будет получено сообщение о состоянии. Если этот индикатор загорается, запускается счетчик часов PTO-1 (установлен в меню DIP).
CF75IV, CF85IV, XF105
PTO двигателя
Автомобиль может быть оборудован PTO двигателя, который можно включить и выключить при работающем двигателе. Муфту данного PTO можно включить под давлением воздуха. Датчик давления PTO (F135) устанавливается для проверки наличия достаточного давления воздуха. Данное реле
подсоединено к точке подключения C05 BBM и является условием включения PTO. При наличии достаточного давления воздуха BBM получает сигнал напряжения на контакте C05.
Если PTO двигателя включен, включается переключатель управления PTO (F141), и BBM получает сигнал "массы" на контакте C10.
PTO двигателя на автомобилях с AS Tronic с неделей спецификации <2010-49 не управляются модулем BBM.
PTO 2
После нажатия переключателя управления PTO 2 (C751) напряжение подается (после включения зажигания) на контакт C08 BBM. В зависимости от запрограммированных настроек параметров владельца BBM подает напряжение в регулирующий клапан PTO (B246) через контакт A01.
Примеры настроек параметров владельца:
- Состояние стояночного тормоза
- Состояние педали тормоза
- Состояние скорости автомобиля
- Состояние сцепления
- Состояние частоты вращения коленчатого вала двигателя
Данные условия переключения можно изменить с помощью DAVIE. Если PTO включен, включается переключатель управления PTO (F088), и BBM получает сигнал "массы" на контакте C11. Если возвращаемое сообщение о состоянии (C11) не поступает вовремя или если сообщение информирует, что условия выключения выполнены, выход (A01) будет выключен, и появится предупреждение PTO на
DIP (дисплей на щитке приборов). Индикация активного PTO на DIP не загорится до тех пор, пока не будет получено сообщение о состоянии.
Если этот индикатор загорается, запускается счетчик часов PTO-2 (установлен в меню DIP).
PTO можно также включить, подав напряжение питания на контакт 11 разъема 4D на перегородке.
Управление PTO-2 может быть включено с помощью проводного сигнала, а также с помощью приложения "BB-CAN".
PTO 1 и PTO 2
Управление PTO в сочетании с дистанционным запуском/остановом двигателя
Если PTO включен и двигатель остановлен с помощью функции дистанционного останова двигателя, PTO выключается. Если снова запустить двигатель с помощью функции дистанционного запуска двигателя, PTO включится автоматически. Данную функцию можно запрограммировать как параметр
владельца с помощью DAVIE XD.
Коробка передач AS Tronic
В случае оснащения автомобиля коробкой передач AS Tronic модуль BBM (D993) отправляет сигнал CAN на коробку передач AS Tronic с информацией о предстоящем включении PTO. При выполнении всех условий для коробки передач AS Tronic с коробки передач на модуль ВВМ уходит сообщение CAN, разрешающее включение PTO. PTO располагает системой защиты, которая отличается в сочетании с
механической коробкой передач.
Можно выбрать одну из двух настроек взаимной блокировки PTO:
Работа PTO на неподвижном автомобиле
Работа PTO на движущемся автомобиле
Работа PTO на неподвижном автомобиле всегда является базовой настройкой.
Работа PTO на движущемся автомобиле активируется с помощью диагностического инструмента (DAVIE XD).
Автоматическая коробка передач AGC-A
Если на автомобиле установлена автоматическая коробка передач, BBM (D993) посылает сигнал напряжения от контакта A01 в электронный блок автоматической коробки передач (D312). Если выполняются условия включения, на реле автоматической коробки передач (G371) подается питание, и PTO 2 (B246) включается. Данный сигнал также поступает на контакт D37 BBM (D993).
Транспортировка опасных грузов
Если включить переключатель PTO 1 или PTO 2, подается напряжение в электронный блок дополнительного обогревателя Hydronic 10 (D979) или электронный блок дополнительного
обогревателя Airtronic (D871) через соединение D02 BBM. Если автомобиль оборудован для
транспортировки опасных грузов, дополнительный обогреватель должен быть выключен во время включения PTO.
Предупреждение
В случае предупреждения PTO 1/PTO 2 или предупреждения о том, что PTO 1/PTO 2 не включен, на контакт D03 BBM подается сигнал напряжения. Сигнал подается на контакт 10 разъема 4D на перегородке.
Подготовка данных CVSG
Интеллектуальные датчики для грузовых автомобилей

В качестве дополнительного оборудования на электронном модуле Body Builder Module (BBM) имеется выход (D11) CVSG. Это шина связи. Шина CVSG представляет собой однопроводную шину связи, идущую от BBM. С помощью шины CVSG можно управлять несколькими датчиками. С помощью приложения BBM CVSG можно передавать, например, сигналы, доступные на шине CAN, в индикаторный датчик на панели управления надстройки.
Например, для приложения CVSG доступны следующие датчики:
- Давление воздуха, контур 1
- Давление воздуха, контур 2
- Давление моторного масла
- Температура охлаждающей жидкости двигателя
- Температура моторного масла
- Температура масла главной трансмиссии
- Уровень топлива #1
Все датчики имеют красный светодиодный индикатор. Красный светодиодный индикатор загорается
при обнаружении каких-либо проблем с данным сигналом. Одновременно с красным сигналом, на главный дисплей DIP выводится индикация.
Напряжение питания датчиков составляет 12 В. Для получения напряжения 12 В внутри кабины
устанавливается дополнительный преобразователь пост. ток/пост. ток.
Питание 12 В подается на разъем 4D в проходной втулке щитка передка.
Также в основание реле кабеля питания, ведущего к CVSG, устанавливается реле с выдержкой
времени. Питание подается в датчики в течение приблизительно 10 секунд после выключения зажигания. За счет этого BBM обнуляет датчики.
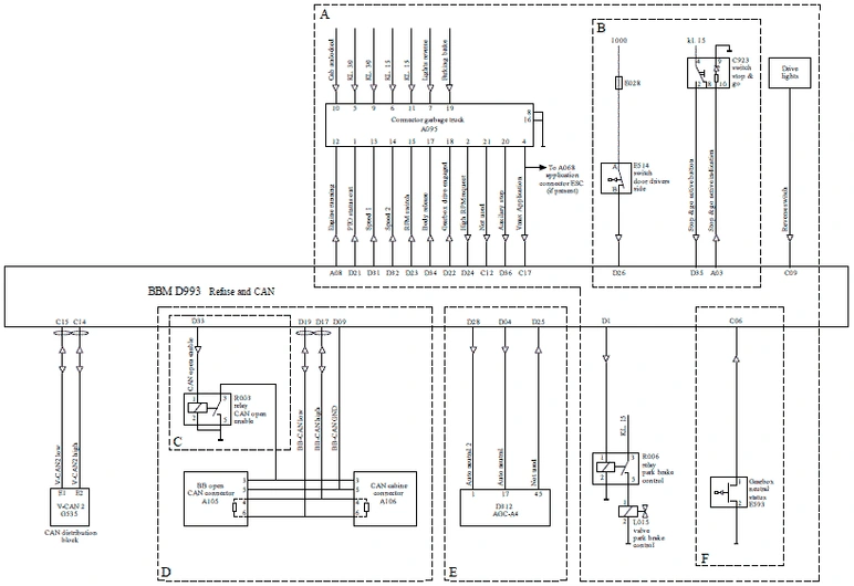
Блок-схема
CF75IV, CF85IV, XF105
Источник электропитания/PTO/разъем системы управления частотой оборотов двигателя
Блок-схема E503029 относится к:
моделям XF105, CF75 IV и CF85 IV
Объяснение блок-схемы
A: При наличии разъема системы управления частотой оборотов двигателя
B: При наличии PTO 1
C: При наличии PTO 2
D: При наличии разъема системы управления частотой оборотов двигателя или BB-CAN
E: При наличии PTO 1 или PTO 2
F: При наличии дополнительного обогревателя ACH-EW или ACH-E в сочетании с PTO 1 или PTO 2
G: При наличии (или подготовке) FMS или телематической системы DAF
H: При наличии PTO, который невозможно включить и выключить во время движения
I: Если PTO двигателя MX можно включить и выключить во время движения
J: Если PTO 2 - это PTO N10, а не PTO AS Tronic
K: Если PTO 2 - это не PTO N10, PTO Allison или PTO AS Tronic
Если Allison в сочетании с подготовкой гидравлической платформы
L: Если PTO 2 - это PTO Allison, и подготовка гидравлической платформы отсутствует
M: При наличии подготовки Meiller PTO N10 в сочетании с AS Tronic - это всегда PTO 1 (без дополнительного переключателя муфты).
PTO N10 в сочетании с механической коробкой передач - это всегда PTO 2 (с дополнительным переключателем муфты, см. схемы).

- A068 Разъем ESC
- A095 Вспомогательный разъем мусоровоза
- A098 разъем FMS, 18-контактный
- B010 Стартер
- B245 Клапан управления PTO 1
- B246 Клапан управления PTO 2
- C750 Переключатель, управление PTO 1
- C751 Переключатель, управление PTO 2
- D312 AGC-A ECU
- D871 ACH-EA ECU
- D979 ECU, ACH-EW
- D993 ECU модуля Body Builder
- E091 Предохранитель, нагревательный элемент,
- PTO, вспомогательный разъем
- E351 Предохранитель, электрические системы
- E390 Предохранитель, электронный модуль
- Body Builder, 1-й
- E396 Предохранитель, электронный модуль Body Builder, 2-й
- E570 Переключатель муфты PTO / N10
- F087 Датчик состояния PTO 1
- F088 Датчик состояния PTO 2
- F135 Датчик давления воздуха PTO двигателя
- F141 Датчик давления воздуха, состояние PTO
- G371 Реле, управление PTO
- G372 Реле, прерывание работы стартера
- G259 Реле, PTO
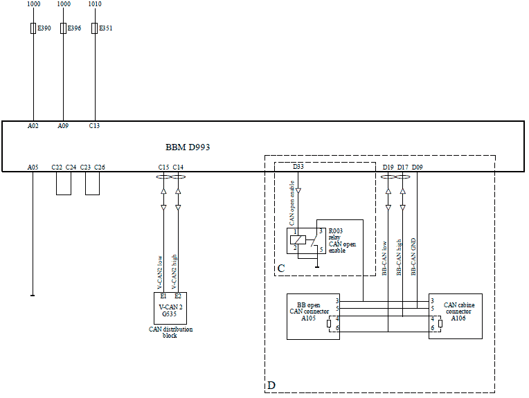
Функция машины для сбора мусора/CAN
Блок-схема E502259 относится к:
моделям XF105, CF75 IV и CF85 IV, неделя спецификации не позднее 32 недели 2007 г.
Объяснение блок-схемы
A: При наличии подготовки машины для сбора мусора
B: При наличии коробки передач Allison
C: Если CAN разомкнута
D: Если BB-CAN или CAN разомкнута
E: При наличии коробки передач Allison
F: При наличии механической коробки передач

- A068 Разъем ESC
- A095 Вспомогательный разъем мусоровоза
- A105 Разъем модуля Body Builder CAN разомкнутый, 7-контактный
- A106 Разъем CAN кабины, 9-контактный
- C923 Переключатель, функция stop & go
- D312 AGC-A ECU
- D993 ECU модуля Body Builder
- E028 Предохранитель, внутренний
- E514 Выключатель замка двери, со стороны водителя
- E593 Переключатель нейтрального положения
- G535 Блок распределения CAN
- L015 Клапан управления стояночным тормозом
- R003 CAN разомкнутый, вкл., реле
- R006 Реле управления стояночным тормозом
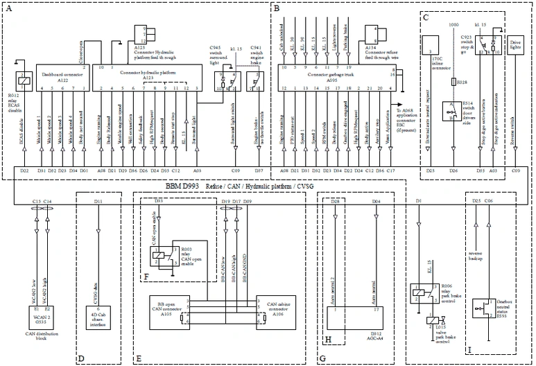
Функция машины для сбора мусора/CAN/гидравлическая платформа/CVSG
Блок-схема E503285 относится к:
моделям XF105, CF75 IV и CF85 IV, неделя спецификации не ранее 33 недели 2007 г.
Объяснение блок-схемы
A: При наличии подготовки гидравлической платформы
B: При наличии подготовки машины для сбора мусора
C: При наличии коробки передач Allison
D: При наличии BB-CAN
E: Если BB-CAN или CAN разомкнута
F: Если CAN разомкнута
G: При наличии коробки передач Allison
H: При отсутствии подготовки гидравлической платформы
I: При наличии механической коробки передач
Разъему A095 противоположен разъем A134. Контакт 4 разъема A134 соединен с "массой".
Разъему A123 противоположен разъем A125. Контакты 7 и 9 разъема A125 соединены с 1010.
В случае с механической коробкой передач провод на D25 не устанавливается на заводе.

- A068 Разъем ESC
- A095 Вспомогательный разъем мусоровоза
- A105 Разъем модуля Body Builder CAN разомкнутый, 7-контактный
- A106 Разъем CAN кабины, 9-контактный
- A122 Разъем гидравлической платформы, 9-контактный
- A123 Разъем гидравлической платформы, 21-контактный
- A125 Разъем подачи гидравлической платформы
- A134 Разъем проводки подачи мусоровоза
- C923 Переключатель, функция stop & go
- C941 Переключатель, тормоз двигателя
- C945 Переключатель, опоясывающие габаритные огни
- D312 AGC-A ECU
- D993 ECU модуля Body Builder
- E028 Предохранитель, внутренний
- E514 Выключатель замка двери, со стороны водителя
- E593 Переключатель нейтрального положения
- G535 Блок распределения CAN
- L015 Клапан управления стояночным тормозом
- R003 CAN разомкнутый, вкл., реле
- R006 Реле управления стояночным тормозом
- R012 Реле выключения ECAS
Информация о расположении, BBM, кабина

Информация о расположении, BBM, шасси
