Система пуска KAMAZ (mercedes)
OM 457/OM 460 мод.ряд 500/900
Стандартное решение
Стандартное решение обеспечивает максимальную доступность двигателя, так как функции аварийного режима двигателя также оценивают активацию стартера (клемма 50). Здесь замком зажигания (A) устанавливается соединение между клеммой 50 и входом блока управления двигателя (MR). Блок управления двигателя (MR) активирует функции контроля вспомогательного реле стартера.
Для 12-вольтных систем в настоящий момент нет стартера, который бы обладал вспомогательным реле стартера с допустимыми характеристиками.

A Замок зажигания
B Стартер
MR Блок управления двигателя
30 Клемма 30
31 Клемма 31
50 Клемма 50
Первое решение
Для активации 12-вольтного стартера используется классическая активация стартера непосредственно от замка зажигания (A). При этом не устанавливается соединение с блоком управления двигателя (MR).
Недостаток: отсутствие функций аварийного режима работы и отсутствие оценки активации стартера.
Здесь обязательно необходима блокировка повторного включения стартера.

A Замок зажигания
B Стартер
MR Блок управления двигателя
30 Клемма 30
50 Клемма 50
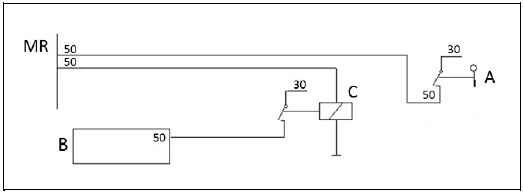
Второе решение
Чтобы обеспечить доступ к функциям аварийного режима и функциям контроля для 12-вольтных систем может быть использовано стандартное решение, однако необходимо промежуточное реле (C), чтобы блок управления двигателя (MR) не вышел из строя.

A Замок зажигания
B Стартер
C Реле
MR Блок управления двигателя
30 Клемма 30
50 Клемма 50
Третье решение
Если прокладка проводки для дополнительного реле невозможна, а аварийные функции аварийного режима при отсутствии функций контроля стартера доступны, возможно еще одно решение: параллельное подключение замка зажигания ко входу блока управления двигателя (MR) и стартеру (B). Для этого в любом случае на вспомогательном реле стартера нужен гасящий диод (D), который бы ограничивал пиковые напряжения. Этот гасящий диод (D) должен иметь соответствующие размеры, чтобы не выйти из строя во всех рабочих состояниях системы. Этот гасящий диод (D) необходимо разместить как можно ближе к реле стартера.
Здесь обязательно необходима блокировка повторного включения стартера.

A Замок зажигания
B Стартер
D Гасящий диод
MR Блок управления двигателя
30 Клемма 30
31 Клемма 31
50 Клемма 50
Замок зажигания
Для возможности передачи на электронные устройства чистых сигналов необходима устойчивая к сотрясениям модель замка зажигания
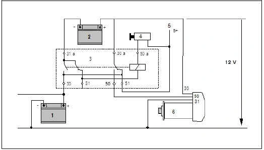
Специальные варианты применения смешанных электросетей
Для возможности использования преимуществ 24-вольтных стартерных систем (доступная мощность, более низкие токи и меньшее сечение проводов) вместе с преимуществами 12-вольтных систем освещения, сигнализации и генератора (доступность и цена), используются смешанные электросети с переключающим реле аккумуляторных батарей.
В таких смешанных электросетях производится параллельная зарядка двух 12-вольтных АКБ и только для активации стартера производится последовательное подключение двух АКБ (24 В).
Схема системы пуска двигателя с переключающим реле АКБ

1 АКБ 12 В
2 АКБ 12 В
3 Переключающее реле АКБ
4 Выключатель стартера
5 Генератор
6 Стартер 24 В