Электросхемы MAN TG с PTM
- Вместо использующегося компьютера FFR внедряется Power Train Manager.
- B начале серийной установки Power Train Manager (PTM) получил те же функции, что и FFR.
- B отличие от FFR, PTM не издаёт звук переключения реле при включении или отключении зажигания.
- Как и FFR, разные PTM устанавливаются в автомобили с автоматизированной (TipMatic) и ручной системой переключения передач.
- В конце страницы даны полные схемы подключения PTM.
Электросхемы в высоком качестве - доступны только пользователям
Первая схема - доступна для увеличения




















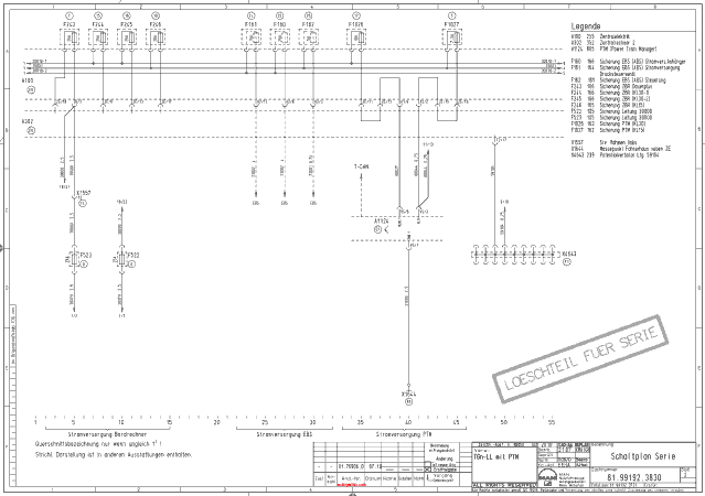
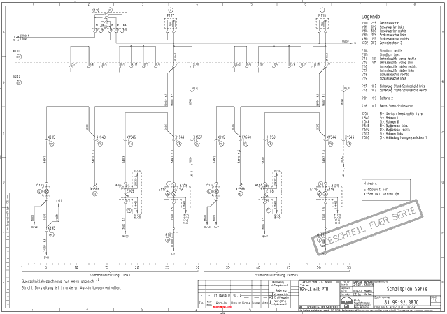
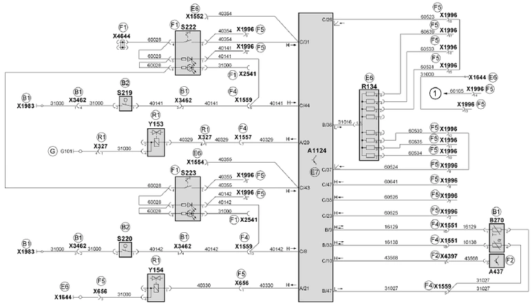
Power Train Manager (TGS или TGX)
Места установки:
- B1 Двигатель
- C Передняя часть автомобиля
- E6 У центральной распределительной установки
- E7 Отделения для блоков управления
- F Панель приборов
- F1 Средняя часть автомобиля
- F2 Вал/Колесо рулевого управления
- F3 Педали
- F4 Внутренняя сторона передней стенки слева
- F5 Внутренняя сторона передней стенки справа
- F8 Средняя панель переключений
- G Ящик батарей
- R1 Передняя часть рамы
- R2 Задняя часть рамы
- H1 Средняя стойка кабины со стороны водителя
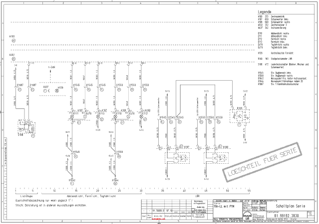
- bl синий
- ge жёлтый
- bl/rt иний/красный
- ws/bl белый/синий
- bl/ws синий/белый
- ws/ge белый/жёлтый

- A100 центральная распределительная установка
- A302 компьютер ZBR
- A410 педаль акселератора
- A477 датчик противоугонного устройства
- A1124 Power Train Manager (PTM)
- B269 датчик температуры наружного воздуха
- B369 переключатель управления стояночным тормозом
- F236 предохранитель схемы управления двигателем (клемма 15)
- F1026 предохранитель PTM (клемма 30)
- F1027 предохранитель PTM (клемма 15)
- F1028 предохранитель PTM (клемма 15) для схемы ZDR
- G101 батарея 2
- K266 реле стояночного тормоза (в устройстве пуска/останова)
- K371 реле фары заднего хода
- K871 реле блокировки стартера в кузове с холодильной установкой
- S284 переключатель FGR/FGB
- S1133 кнопочный переключатель замедлителя
- Q101 замок зажигания
- X669 разъёмное соединение блокировки стартера
- X1544 3-e разъёмное соединение для рамы
- X1547 разъёмное соединение левой двери
- X1559 4-e разъёмное соединение для двигателя/EDC/КПП
- X1644 точка заземляющей шины в кабине у распред. установки
- X1827 обжимное соединение провода 31000
- X1904 болт M6 (в ящике соединений сверху двигателя) для провода 31000
- X1966 разъёмное соединение замка зажигания
- X1971 разъёмное соединение противоугонного устройства
- X1996 разъёмное соединение схемы ZDR (FFR/PTM)
- X2408 разъёмное соединение модуля EVB
- X2541 распределитель потенциала провода 31000
- X3385 разъёмное соединение EVB/моторного тормоза
- X4397 разъёмное соединение многофункционального руля
- X4644 распределитель потенциала провода 60028
- V1022 группа диодов V783, V818, V921, V922
- Y281 магнитный клапан EVB
- Y355 модуль EVB
- 1 блокировка заднего хода

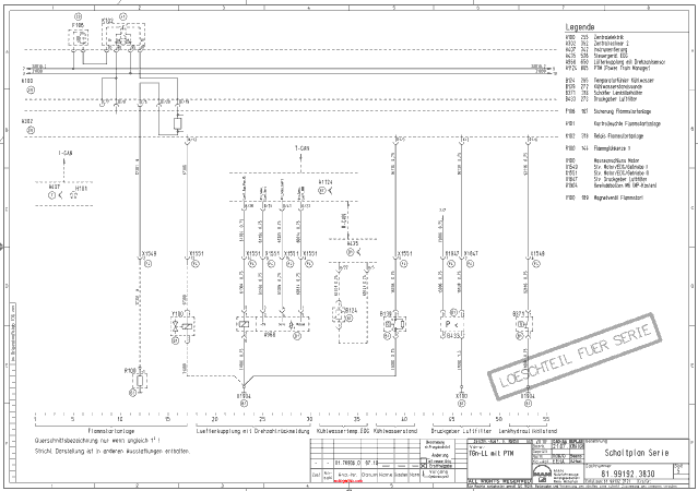
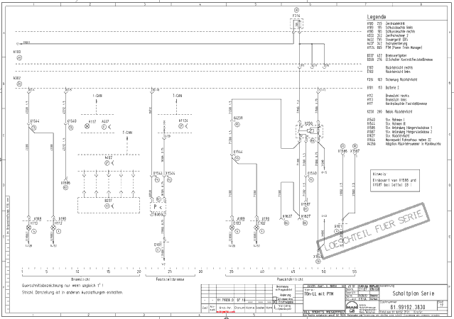
- A143 блок управленпия ECAS/EFR
- A144 блок управления ретардером
- A302 компьютер ZBR
- A312 модуль KSM для внешних устройств управления
- A330 блок управления TipMatic
- A402 блок управления EBS
- A435 блок управления EDC
- A479 блок управления ACC
- A609 блок управления LGS
- A626 блок управления HydroDrive
- A969 муфта вентилятора с датчиком частоты вращения
- A1124 Power Train Manager (PTM)
- B362 датчик перемещения механизма сцепления
- B368 индуктивный датчик частоты на входе коробки передач
- R283 нагрузочный резистор для HD OBD-CAN
- S172 переключатель нейтрального положения передач
- S477 переключатель ручки переключения передач
- X200 гнездо для проверочного оборудования
- X1551 2-e разъёмное соединение двигателя/EDC/КПП
- X1553 3-e разъёмное соединение двигателя/EDC/КПП
- X1559 4-e разъёмное соединение двигателя/EDC/КПП
- X1604 разъёмное соединение переключателя кнопки переключения
- X1904 болт M6 (в ящике соединений сверху двигателя) для провода 31000
- X1948 разъёмное соединение двигателя/EDC/КПП (в ящике соединений сверху двигателя)
- X1972 разъёмное соединение педалей снаружи
- X1983 болт M6 (в ящике соединений сверху двигателя) для провода 31000
- X3934 обжимное соединение провода 185
- X3935 обжимное соединение провода 186
- X4644 распределитель потенциала провода 60028
- Y307 магнитный клапан передач переднего и заднего делителя
- Y308 цилиндр усиления сцепления

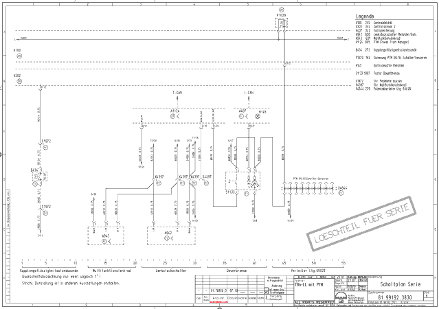
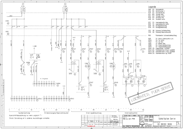
- A437 переключатель замедлителя
- A1124 Power Train Manager (PTM)
- B270 датчик уровня масла
- G101 батарея 2
- R134 группа резисторов EDC
- S219 переключатель указателя работы 1-го отбора мощности
- S220 переключатель указателя работы 2-го отбора мощности
- S222 переключатель 1-го отбора мощности
- S223 переключатель 2-го отбора мощности
- X327 соединение магнитного клапана в раме
- X1551 2-e разъёмное соединение двигателя/EDC/КПП
- X1552 разъёмное соединение 1-го отбора мощности, дополнительного отопителя (ADR)
- X1554 разъёмное соединение 2-го отбора мощности, дополнительного отопителя (ADR)
- X1557 разъёмное соединение рамы слева
- X1559 4-e разъёмное соединение двигателя/EDC/КПП
- X1644 точка заземляющей шины в кабине у распред. установки
- X1983 болт M6 (в ящике соединений сверху двигателя) для провода 31000
- X1996 разъёмное соединение схемы ZDR (FFR/PTM)
- X2541 распределитель потенциала провода 31000
- X3462 разъёмное соединение отбора мощности от двигателя
- X4397 разъёмное соединение многофункционального руля
- X4644 распределитель потенциала провода 60028
- Y153 магнитный клапан 1-го отбора мощности
- Y154 магнитный клапан 2-го отбора мощности
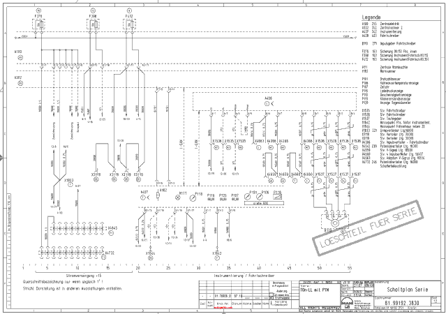
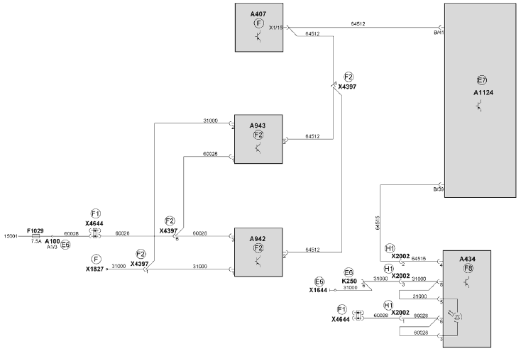
Power Train Manager и шина LIN в автомобиле c многофункциональным рулевым колесом
(TGS или TGX)

- A100 центральная распределительная установка
- A407 приборы управления
- A434 переключатель передач
- A942 ручка переключения ретардера и передач на рулевой колонке
- A943 многофункциональное рулевое колесо
- A1124 Power Train Manager
- F1029 предохранитель PTM (клемма 15) переключателей/датчиков
- 64512 информационный провод шины LIN для связи PTM, рулевого колеса, ручки на рулевой колонке и приборов
- K250 реле фары заднего хода
- X1644 точка заземляющей шины в кабине у распред. установки
- X1827 обжимное соединение провода 31000
- X2002 разъёмное соединение переключателя передач у средней стойки
- X4397 разъёмное соединение многофункционального руля
- X4644 распределитель потенциала провода 60028
- 64515 информационный провод шины LIN для связи PTM и поворотного переключателя передач
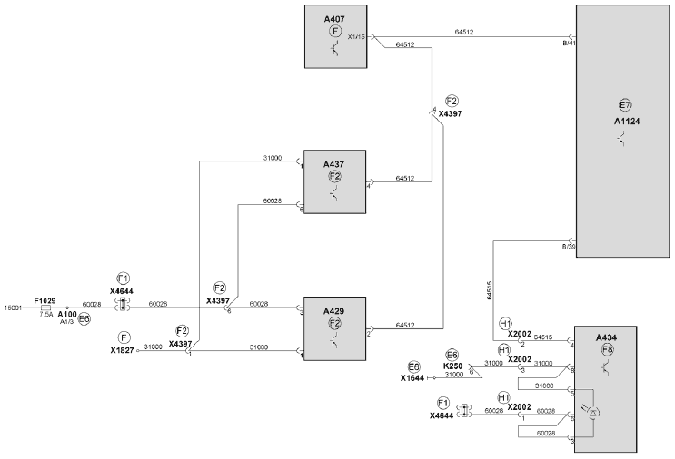
Power Train Manager и шина LIN в автомобиле без многофункционального рулевого колеса (TGS или TGX)

- A100 центральная распределительная установка
- A407 приборы управления
- A429 ручка переключения передач и Tempomat
- A434 поворотный переключатель
- A437 переключатель замедлителя
- A1124 Power Train Manager
- F1029 предохранитель PTM (клемма 15) переключателей/датчиков
- 64512 информационный провод шины LIN для связи PTM, рулевого колеса, ручки на рулевой колонке и приборов
- K250 реле фары заднего хода
- X1644 точка заземляющей шины в кабине у распред. установки
- X1827 обжимное соединение провода 31000
- X2002 разъёмное соединение переключателя передач в средней стойке
- X4397 разъёмное соединение многофункционального руля
- X4644 распределитель потенциала провода 60028
- 64515 информационный провод шины LIN для связи PTM и поворотного переключателя передач
