Элекросхемы блокировки дифференциала заднего моста MAN TG
Снимите разъем с клапана блокировки.

Проверьте идет ли на него напряжение при включении переключателя блокировки.
Если напряжение идет - присоедините разъем и должны будут слышны щелчки срабатывания клапана при его включении. Если щелчков нет - снимите клапан и попробуйте физически его разработать (закисание штока клапана).
Если напряжение на клапане отсутствует - смотрим схемы...
Блокировка межосевого и межколесного дифференциала заднего моста
(при наличии 3 мостов)
А Блокировка межосевого и межколесного дифференциала заднего моста
- А100 Центральная электрическая сеть
- А302 Центральный компьютер 2
- А407 Приборная панель
- G101 Аккумуляторная батарея 2
- Н398 Контрольная лампа блокировки межколесного дифференциала заднего моста
- Н407 Контрольная лампа блокировки межосевого дифференциала заднего моста
- 5185 Выключатель индикации блокировки межколесного дифференциала заднего моста
- 5186 Выключатель индикации блокировки межколесного дифференциала 2-го заднего моста
- 5187 Выключатель блокировки межколесного дифференциала заднего моста
- S212 Выключатель блокировки межосевого дифференциала
- S254 Выключатель индикации блокировки межосевого дифференциала заднего моста
- Х327 Штекерное соединение с электромагнитным клапаном на раме
- Х637 Штекерное соединение Блокировка дифференциала заднего моста
- Х1544 Штекерное соединение Рама III
- Х1557 Штекерное соединение Рама слева
- Х2541 21-контактный распределитель потенциалов провода 31000
- Х4732 Распределитель потенциалов провода 16000 освещения переключателя
- Y145 Электромагнитный клапан блокировки межколесного дифференциала заднего моста
- Y150 Электромагнитный клапан блокировки межосевого дифференциала
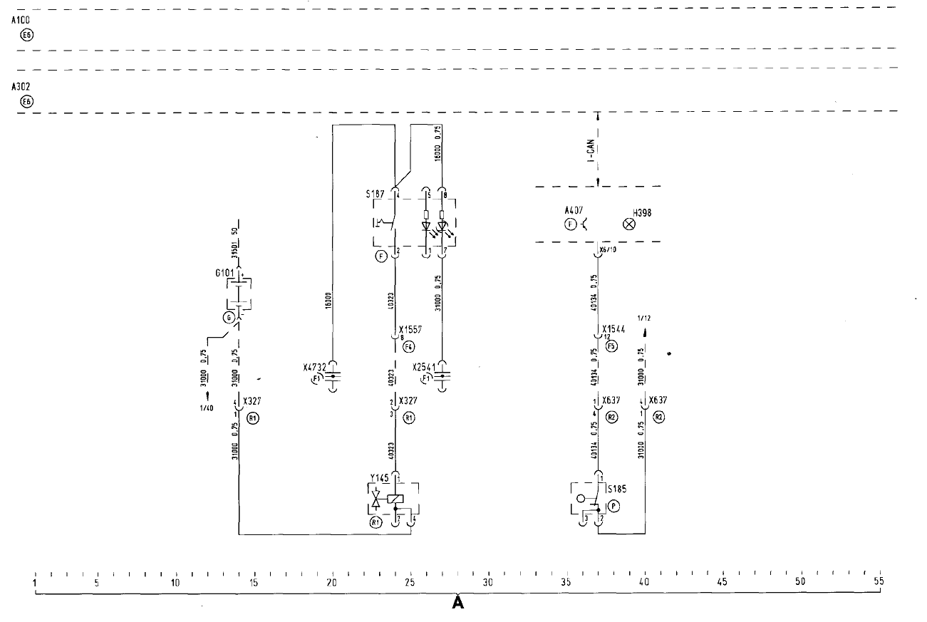
Блокировка межколесного дифференциала заднего моста
(при наличии 2 мостов)
А Блокировка межколесного дифференциала заднего моста
А100 Центральная электрическая сеть
А302 Центральный компьютер 2
А407 Приборная панель
G101 Аккумуляторная батарея 2
Н398 Контрольная лампа блокировки межколесного дифференциала заднего моста
S185 Выключатель индикации блокировки межколесного дифференциала заднего моста
S187 Выключатель блокировки межколесного дифференциала заднего моста
Х327 Штекерное соединение с электромагнитным клапаном на раме
Х637 Штекерное соединение Блокировка дифференциала заднего моста
Х1544 Штекерное соединение Рама III
Х1557 Штекерное соединение Рама слева
Х2541 21-контактный распределитель потенциалов провода 31000
Х4732 Распределитель потенциалов провода 16000 освещения переключателя
Y145 Электромагнитный клапан блокировки межколесного дифференциала заднего моста

