Электросхема EBS5 с 2 мостами (TG)
A Модуль регулировки давления переднего моста слева
B Модуль регулировки давления переднего моста справа
C Модуль регулировки давления заднего моста
A100 Центральная электрическая сеть
A302 Центральный компьютер 2
A402 Блок управления EBS
B119 Датчик частоты вращения переднего моста слева
B120 Датчик частоты вращения переднего моста справа
B121 Датчик частоты вращения ведущего моста слева
B122 Датчик частоты вращения ведущего моста справа
B332 Датчик тормозной накладки переднего моста справа
B333 Датчик тормозной накладки переднего моста слева
B334 Датчик тормозной накладки ведущего моста справа
B335 Датчик тормозной накладки ведущего моста слева
B337 Тормозной датчик
X1548 Штекерное соединение рама IV
X1557 Штекерное соединение левая рама
X3630 Жгут проводов адаптера датчика износа тормозных накладок
Y262 Модуль регулировки давления переднего моста справа
Y263 Модуль регулировки давления переднего моста слева
Y264 Модуль регулировки давления заднего моста
A Розетка прицепа
B Сигнальные лампы
A100 Центральная электрическая сеть
A302 Центральный компьютер 2
A402 Блок управления EBS
A407 Приборная панель
F160 Предохранитель EBS/ABS электропитание прицепа
G101 Аккумуляторная батарея 2
H107 ABS-автомобиль-тягач/прицеп
H140 Контрольная лампа Info антипробуксовочной системы
H151 Контрольная лампа Info ABS прицепа
H415 Контрольная лампа стабильности хода
X317 Розетка прицепа ABS
X1542 Штекерное соединение рама II
X1548 Штекерное соединение рама IV
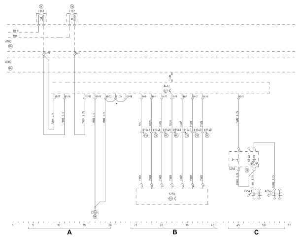
A Электропитание
B Модуль управления прицепом
C Антипробуксовочная система – пороги пробуксовки
A100 Центральная электрическая сеть
A302 Центральный компьютер 2
A402 Блок управления EBS
F161 Предохранитель EBS/ABS электропитание клапана регулировки давления
F162 Предохранитель EBS/ABS управление
S256 Кнопка ASR/ESP повышения порога пробуксовки
X1540 Штекерное соединение рама I
X1548 Штекерное соединение рама IV
X1644 Точка массы кабины рядом с центральной электрической сетью
X2541 Распределитель потенциала, 21-контактный провод 31000
X2542 Распределитель потенциала, 21-контактный провод 58000
Y278 Модуль управления прицепом







