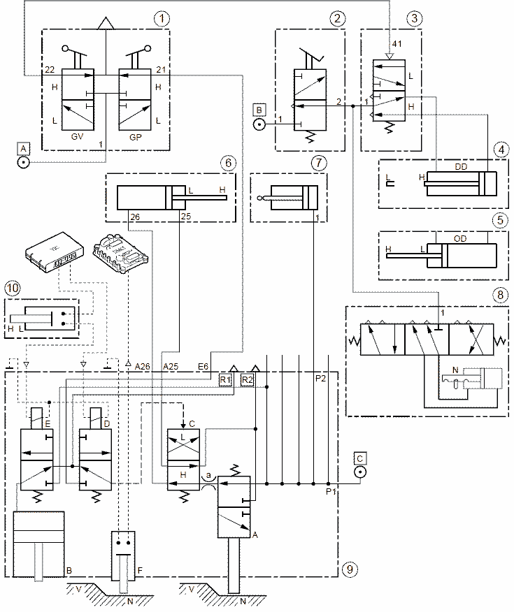
Схема пневматических контуров, механизм переключения передач
ZF 16S DAF XF105


A Подача воздуха рычага переключения передач
B Подача воздуха защитного клапана GV
C Подача воздуха блока распределения воздуха
1 Селекторный клапан рычага переключения передач (выключатель делителя и переключатель
диапазонов)
2 Защитный клапан GV
3 Клапан реле делителя
4 Цилиндр делителя, прямая передача (1)
5 Цилиндр делителя, повышающая передача (1)
6 Цилиндр переключения диапазонов
7 Сервопривод сцепления
8 Цилиндр Servoshift (2)
9 Блок распределения воздуха
9a Отверстие
9A Клапан нейтрального положения
9B Запорный цилиндр защиты кулисы
9C Групповой клапан
9D Защитный клапан понижения передачи (B465)
9E Защитный клапан кулисы (B465)
9F Переключатель нейтрального положения (E593)
10 Переключатель нижнего диапазона (E595)
(VIC)
(DMCI)
(1) Механическое положение цилиндра делителя (низк. "L" и выс. "H") зависит от версии коробки передач: прямая передача или повышающая передача.
(2) Подача воздуха на цилиндр Servoshift различается на коробках передач ZF 8S и 9S.
Принцип действия
Переключение делителя
Данное объяснение основано на коробке передач ZF 16S версии "Direct Drive" (4). Выбрать разделительную муфту (группу делителя) можно с помощью выключателя делителя (1-GV).
Во время работы выключателя делителя (1-GV) сначала продувается точка подключения 22, а затем
точка подключения 41 клапана реле делителя (3).
Клапан реле делителя вдавливается в нижнее положение (L). При полном нажатии педали сцепления
клапан реле делителя подключается к подаче воздуха (B) через соединение 2 защитного клапана GV (2).
Цилиндр делителя (4) переключается в нижнее положение "L".
Выключатель делителя (1-GV) затем переводится обратно в верхнее положение (H).
Соединение 41 клапана реле делителя (3) затем продувается через точку подключения 22 рычага
переключения передач (1). Поскольку давление воздуха в соединении 41 снижается, клапан реле делителя переходит в верхнее положение (H). При работе сцепления защитный клапан GV (2) повторно
подключает подачу воздуха (B) в точку подключения 1 клапана реле делителя (3). Поэтому цилиндр делителя переключается в верхнее положение "H".
Передача переключения диапазонов
Выбор группы диапазона происходит при помощи переключателя диапазонов (1-GP).
Когда переключатель диапазонов (1-GP) переводится в положение "L", подача воздуха (A) подключается к точке подключения E6 защитного клапана понижения передачи (9D - B465). Если скорость достаточно низкая, VIC включает защитный клапан понижения передачи.
Это толкает групповой клапан (9C) в положение "L".
Если вал сцепления проходит через нейтральное положение (N), подача воздуха (C) подключается к
соединению A26 через клапан нейтрального положения (9A), отверстие (9a) и групповой клапан (9C). Цилиндр переключения диапазонов (6) переключается на нижний диапазон.
Если переключатель диапазонов (1-GP) переводится в верхнее положение (H), давление на групповом клапане (9C) стравливается через защитный клапан понижения передачи (9D - B465).
Групповой клапан (9C) переходит в положение "H".
Если вал сцепления проходит через нейтральное положение (N), подача воздуха (C) подключается к
соединению A25 через клапан нейтрального положения (9A), дроссель (9a) и групповой клапан (9C).
Цилиндр переключения диапазонов (6) переключается на верхний диапазон.
Если скорость автомобиля ниже определенного значения, VIC подает электропитание на защитный
клапан понижения передачи (9D - B465). Этот клапан занимает положение, в котором может быть выбран нижний диапазон. При скорости, превышающей запрограммированную, и при нахождении в исходном положении защитный клапан понижения передачи переходит в положение, в котором может быть выбран верхний диапазон. Более подробное объяснение см. в главе "Защитный клапан понижения передачи".