Описание шины CAN RENAULT T
(euro 5,6)
Euro V CAN BUS architecture

Code Title of the function Location
- A03A Main information display C2b
- A07 Radio set B2b/C2a
- A13A Automated manual transmission management control unit B4d
- A14 Engine electronic control unit (EECU) B3d
- A21 Electronic braking system control unit (EBS) B5d
- A26 Driving assist management control unit (DACU) B2c
- A31 Vehicle anti-theft system ECU (AECU) B2c
- A33 Tachograph C2a
- A34B Air conditioning management control unit A2c
- A36 Body builder pre-equipment management control unit (BBM) B2c
- A77 Tyre pressure monitoring control unit B6d
- A125 On-board management system interface control unit B1a
- A132 Vehicle immobiliser alcolock control unit B2c
- A154 Video display B2b
- A160 Cab information management control unit (CIOM) B2c
- A161 Man/machine interface management control unit (HMIIOM) B2c
- A162 Front chassis area information management control unit (FCIOM) A2d
- A163 Central chassis area information management control unit (CCIOM) B6d
- A164 Rear chassis area information management control unit (RCIOM) B8d
- A165L Left-hand door information management control unit (DDM/PDM) C3c
- A165R Right-hand door information management control unit (DDM/PDM) A3c
- A169 Video control unit (VS) B2c
- A174 Exhaust gas after-treatment control module (ACM) B6d
- A175 Additional telematics management control unit (TESP) B2c
- A176 Camera unit plus lane position change and object detection sensors (LPOS) B1a
- A177 Air production management control unit (APM) C5d/B6d
- A187 Main vehicle management control unit (VMCU) B2b
- B96A Nitrogen oxide concentration sensor upstream of catalytic converter A5d
- B238 Object detection and distance radar sensor (FLS) B1d
- X26 Onboard management pre-arrangement (ECU) B2c
- X43 Vehicle diagnostic socket (OBD) C2c
ZA : chassis zone
ZB : ECU bracket on dashboard
ZC : console area
ZD : dashboard zone
ZE : doors zone
Euro VI CAN BUS architecture

Code Title of the function Location
- A03A Main information display C2b
- A07 Radio set B2b/C2a
- A13B Automated manual transmission management control unit B4d
- A14 Engine electronic control unit (EECU) B3d
- A21 Electronic braking system control unit (EBS) B5d
- A26 Driving assist management control unit (DACU) B2c
- A31 Vehicle anti-theft system ECU (AECU) B2c
- A33 Tachograph C2a
- A34B Air conditioning management control unit A2c
- A36 Body builder pre-equipment management control unit (BBM) B2c
- A77 Tyre pressure monitoring control unit B6d
- A125 On-board management system interface control unit B1a
- A132 Vehicle immobiliser alcolock control unit B2c
- A154 Video display B2b
- A160 Cab information management control unit (CIOM) B2c
- A161 Man/machine interface management control unit (HMIIOM) B2c
- A162 Front chassis area information management control unit (FCIOM) A2d
- A163 Central chassis area information management control unit (CCIOM) B6d
- A164 Rear chassis area information management control unit (RCIOM) B8d
- A165L Left-hand door information management control unit (DDM/PDM) C3c
- A165R Right-hand door information management control unit (DDM/PDM) A3c
- A169 Video control unit (VS) B2c
- A174B Exhaust gas after-treatment control module (ACM) B6d
- A175 Additional telematics management control unit (TESP) B2c
- A176 Camera unit plus lane position change and object detection sensors (LPOS) B1a
- A177 Air production management control unit (APM) C5d/B6d
- A187 Main vehicle management control unit (VMCU) B2b
- B96 Nitrogen oxide concentration sensor A5d
- B96B Nitrogen oxide concentration sensor downstream of catalytic converter A5d
- B238 Object detection and distance radar sensor (FLS) B1d
- X26 Onboard management pre-arrangement (ECU) B2c
- X43 Vehicle diagnostic socket (OBD) C2c
ZA : chassis zone
ZB : ECU bracket on dashboard
ZC : console area
ZD : dashboard zone
ZE : doors zone
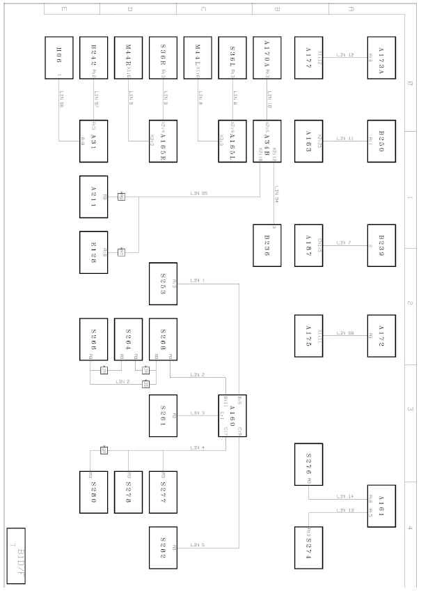
LIN BUS architecture

Code Title of the function Location
- Code Title of the function Location
- A31 Vehicle anti-theft system ECU (AECU) B2c
- A34B Air conditioning management control unit A2c
- A160 Cab information management control unit (CIOM) B2c
- A161 Man/machine interface management control unit (HMIIOM) B2c
- A163 Central chassis area information management control unit (CCIOM) B6d
- A165L Left-hand door information management control unit (DDM/PDM) C3c
- A165R Right-hand door information management control unit (DDM/PDM) A3c
- A170A Cab air conditioning control panel B2b
- A172 Infra-red receiver for interconnection between the keypad and the navigation functions management control unit B2c
- A173A Parking brake electrical control B2b
- A175 Additional telematics management control unit (TESP) B2c
- A177 Air production management control unit (APM) C5d/B6d
- A187 Main vehicle management control unit (VMCU) B2b
- A211 Air/air independent heater C3c
- B236 Mist on windscreen sensor B1b
- B239 Rain and light detection sensor assembly B1b
- B242 Ultrasound decoder for anti-intrusion protection (UIP) B4a
- B250 24 V DC battery charge status sensor C5d
- E128 Air/water independent heater A3c
- H06 Horn - alarm siren A1c
- M44L Left-hand front door window lift motor with anti-pinch system C3c
- M44R Right-hand front door window lift motor with anti-pinch system A3c
- S36L Control for left-hand front window lift motor C3c
- S36R Control for right-hand front window lift motor A3c
- S253 Onboard equipment auxiliaries management remote control (LECM) B4b
- S261 Repositionable control unit (group 5) C2a
- S264 Repositionable control unit (group 1) B2c
- S266 Repositionable control unit (group 2) B2c
- S268 Repositionable control unit (group 3) B2c
- S274 Steering column-mounted controls C2b
- S276 Steering wheel-mounted controls C2b
- S277 External lighting control unit C2b
- S278 Cruise control control assembly B2c
- S280 Cab lighting control B2c
- S282 Air suspension controls assembly C3c
AS : with air/air independent heating
AT : with air/water independent heating
GR : with passenger compartment lighting dimmer control
JA : with repositionable control unit (group 1)
JB : without repositionable control unit (group 1)
Всю информацию смотри в