PETERBILT 387 Model - Electrical Schematics
1) INDEX SYMBOL KEY
2) HARNESS FLOW CHART
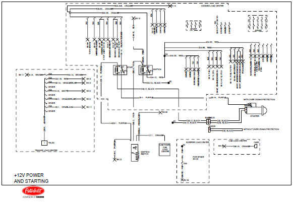
3) +12V POWER DISTRIBUTION
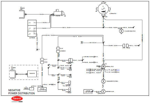
4) NEGATIVE POWER DISTRIBUTION
5) +12V POWER DISTRIBUTION (OPTIONAL DISCONNECT)
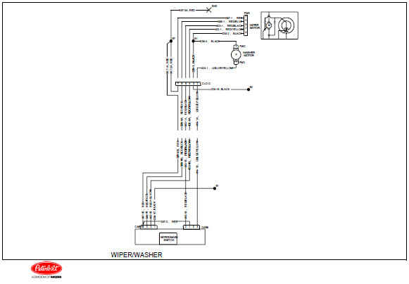
6) WIPER/WASHER
7) HORN
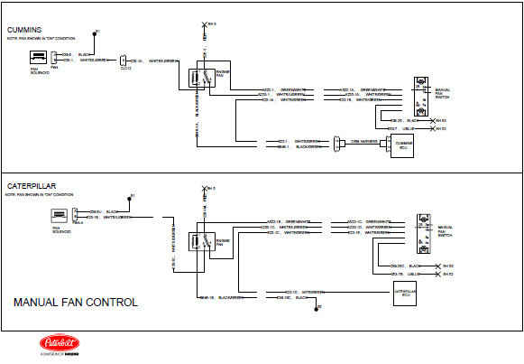
8) MANUAL FAN CONTROL
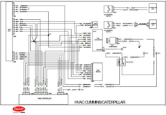
9) HVAC CUMMINS/CATERPILLAR
10) TURN SIGNAL/STOP/HAZARDS/AUX TRAILER
11) REVERSE LAMPS
12) MARKER LAMPS
13) HEAD LAMP/DRL
14) FOGLAMPS
15) FUEL HEATER
16) AIR DRYER
17) INTERFACE MODULE
18) SPOT LAMPS
19) LOAD LAMPS BRACKET MOUNTED/FLUSH MOUNTED/MUTIPLE/COIL 10’
20) FLUORESCENT LAMP SLEEPER
21) FLOOR LAMP
22) ETHER START CATERPILLAR
23) WINDOW LIFT
24) CENTRAL DOOR LOCKS
25) DOOR LAMPS/DOME LAMPS
26) PREMIUM SOUND
27) SLEEPER TOOL BOX LAMPS
28) SLEEPER CLOCK
29) AUX FAN
30) SLEEPER READING LAMPS
31) REFRIGERATOR UNIT REFER
32) SLEEPER POWER ACCESSOUTLETS
33) SLEEPER FLOOR LAMP
34) SLEEPER HVAC
35) DIGITAL MESSAGE CENTER
36) ABS LOW
37) ABS HI
38) CAB CIGAR LIGHTER PWR COMM
39) SPARE SWITCHES
40) TWO SPEED/INTER/FIFTH WHEEL/DIFF LOCK/PTO
41) LOW COOLANT
42) EATON TOP2 TRANSMISSION
43) MIRROR CONTROL/HEATER
44) ENGINE BRAKE/CRUISE CONTROL/DIAGNOSTIC
45) RADIO
46) SPARE POWER/SYSTEM SLEEPER
47) CATERPILLAR CUMMINS ENGINE ECU/TPS/SPEED SENSOR/INTERUPT/WARNING LAMPS
48) SMC SPEEDO MESSAGECENTER
49) DATA LINK
50) CAB SPARE POWER/SYSTEM EXPANSION
51) CB RADIO
52) BACKLIGHTING +12VOLTS
53) NEGATIVE SWITCH LINKS
54) SPLICE LOCATION - DISTRIBUTION
55) SPLICE LOCATION - DISTRIBUTION
56) ASH TRAY
57) CAB/CHASSIS HARNESSLAYOUT
58) SLEEPER HARNESS LAYOUT
59) FUEL HOT LINE









Все схемы в высоком качестве в