Описание топливной системы D12D VOLVO
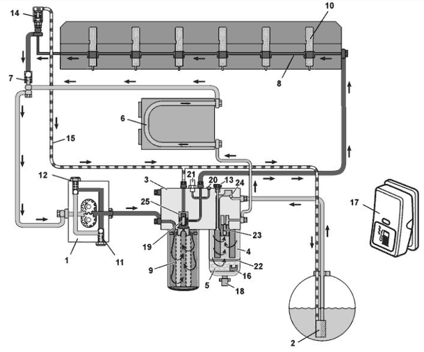
Топливная система D12D — вариант с электрическим топливным насосом, тип 1

При поиске неисправностей важно понимать функцию системы и выполнять последовательность поиска
неисправностей в контрольном списке, чтобы избежать замены исправных деталей.
Схематическое описание подачи топлива при непрерывной работе
Топливо всасывается топливным насосом (1) через сетчатый фильтр (2) на датчике уровня топлива в баке, через электрический топливный насос (3) в корпусе топливного фильтра. Если двигатель оборудован фильтром предварительной очистки (4) и водоотделителем (5), топливо проходит также через них. Топливо затем проходит через охлаждающую спираль блока управления (6) к перепускному клапану (7), где топливо из бака смешивается с обратным потоком топлива из топливного канала головки цилиндров (8) и поступает далее к стороне всасывания топливного насоса.
Топливный насос нагоняет топливо в топливный фильтр через главный фильтр (9) к продольному топливному каналу головки цилиндров. Этот канал обеспечивает каждый насос-форсунку (10) топливом через кольцеобразную канавку вокруг каждого инжектора в головке цилиндров. Перепускной клапан (7) управляет давлением в системе подачи топлива к инжекторам.
Невозвратный клапан (11), расположенный в электрическом топливном насосе (3), предотвращает возврат топлива в бак при выключении двигателя.
Клапаны питающего насоса
В топливном насосе (1) имеется два клапана:
- Предохранительный клапан (12) позволяет топливу течь назад к стороне всасывания в случае слишком высокого давления, например, когда топливный фильтр забит.
- Невозвратный клапан (13) открывается при работе электрического топливного насоса (3).
Работа электрического топливного насоса
Электрический топливный насос (3) используется в двух случаях:
- Выпуск воздуха из топливной системы, например, после замены топливных фильтров.
- Слив воды из водного сепаратора.
Электрический насос активируется в обоих случаях с помощью выключателя (14) на панели приборов.
Выпуск воздуха из топливной системы
При нажатии выключателя (14) электрический топливный насос включается и работает около 5 минут. Выпуск воздуха начинается при заполнении топливной системы и увеличении давления. При этом воздух выталкивается через топливную линию (15) и воздушный вентиляционный клапан (16) вниз к топливному баку через обратную линию (17).
Слив воды
Для слива воды из водного сепаратора необходимо выполнение следующих условий:
- Датчик (18) в водном сепараторе показывает высокий уровень воды
- Автомобиль неподвижен
- Двигатель остановлен
- Ключ зажигания в положении езда
- Используется стояночный тормоз
топливный насос для того, чтобы выгнать воду и воспрепятствовать попаданию воздуха в топливную систему.
Слив воды занимает примерно 20 секунд.
Другое
Сливной ниппель (20) расположен на корпусе топливного фильтра. Ниппель используется при сливе топлива из системы, например, при замене насоса-форсунки.
На корпусе топливного фильтра находится также датчик давления (21) для измерения давления подачи после топливного фильтра. Код неисправности отображается на инструментальной панели, если давление подачи меньше, чем значение, приведенное в перечне кодов неисправностей.
В качестве дополнительной принадлежности может присутствовать подогреватель топлива (22). Он установлен в нижней части водного сепаратора.
Топливная система D12D — вариант с ручным насосом. Вода сливается нажатием кнопки на приборной панели, тип 2.

При поиске неисправностей важно понимать функцию системы и выполнять последовательность поиска
неисправностей в контрольном списке, чтобы избежать замены исправных деталей.
Схематическое описание подачи топлива при непрерывной работе
Топливо всасывается топливным насосом (1) через сетчатый фильтр (2) в баке и в корпус топливного фильтра (3). Если двигатель оборудован фильтром предварительной очистки (4) и водоотделителем (5), топливо проходит также через них. Топливо затем проходит через охлаждающую спираль блока управления (6) к перепускному клапану (7), где топливо из бака смешивается с обратным потоком топлива из топливного канала головки цилиндров (8) и поступает далее к стороне всасывания топливного насоса.
Топливный насос (1) подает топливо в корпус топливного фильтра (3) через главный фильтр (9) и далее к продольному топливному каналу головки цилиндров (8). Этот канал обеспечивает каждый насос-форсунку (10) топливом через кольцеобразную канавку вокруг каждого инжектора в головке цилиндров. Перепускной клапан (7) управляет давлением в системе подачи топлива к инжекторам.
Клапаны питающего насоса
В топливном насосе (1) имеется два клапана:
- Предохранительный клапан (11) позволяет топливу течь назад к стороне всасывания в случае слишком высокого давления, например, когда топливный фильтр забит.
- Невозвратный клапан (12) открывается при работе ручного насоса (13).
Автоматический выпуск воздуха
При попадании воздуха в систему он автоматически выводится при запуске двигателя. При этом воздух
выталкивается через перепускной клапан (14) и обратную линию (15) вниз к топливному баку. Выпуск воздуха из фильтра после его замены контролируется клапанами (19), (14) и (25).
Слив воды
Для слива воды из водного сепаратора (5) необходимо выполнение следующих условий:
- Датчик (16) в водном сепараторе показывает высокий уровень воды
- Автомобиль неподвижен
- Двигатель остановлен
- Ключ зажигания в положении езда
- Используется стояночный тормоз
При нажатии выключателя (17) сливной клапан (18) открывается на 15 секунд и выпускает воду.
При необходимости в дополнительном сливе перед повтором нужно подождать 6 минут, поскольку эта функция имеет таймер.
Ручной насос
Ручной насос (13) расположен на корпусе топливного фильтра и используется для подкачки топлива (при неработающем двигателе) после слива всей топливной системы. Невозвратный клапан (24) ручного насоса также находится в корпусе топливного фильтра.
Внимание: Ручной насос нельзя использовать при работающем двигателе.
Другое
Новый корпус топливного фильтра устраняет необходимость в сливе топлива перед заменой фильтра. Нагели клапанов (19) и (23) закрываются при отвинчивании топливного фильтра. Больше не нужно выпускать воздух из системы после замены фильтра, поскольку это происходит автоматически при запуске двигателя и его работе в течение 2 минут.
Закрытый выход (20) расположен на корпусе топливного фильтра. Он используется при необходимости
подсоединения внешнего датчика при измерении давления подачи.
На корпусе топливного фильтра находится также датчик давления (21) для измерения давления подачи после топливного фильтра. Код неисправности отображается на инструментальной панели, если давление подачи меньше, чем значение, приведенное в перечне кодов неисправностей.
В качестве дополнительной принадлежности может присутствовать подогреватель топлива (22). Он установлен в нижней части водного сепаратора.
Топливная система D12D — вариант с ручным насосом. Вода сливается с помощью рукоятки на руле, тип 3.

При поиске неисправностей важно понимать функцию системы и выполнять последовательность поиска
неисправностей в контрольном списке, чтобы избежать замены исправных деталей.
Схематическое описание
подачи топлива при непрерывной работе
Топливо всасывается топливным насосом (1) через сетчатый фильтр (2) в баке и в корпус топливного фильтра (3). Если двигатель оборудован фильтром предварительной очистки (4) и водоотделителем (5), топливо проходит также через них. Топливо затем проходит через охлаждающую спираль блока управления (6) к перепускному клапану (7), где топливо из бака смешивается с обратным потоком топлива из топливного канала головки цилиндров (8) и поступает далее к стороне всасывания топливного насоса.
Топливный насос (1) подает топливо в корпус топливного фильтра (3) через главный фильтр (9) и далее к продольному топливному каналу головки цилиндров (8). Этот канал обеспечивает каждый насос-форсунку (10) топливом через кольцеобразную канавку вокруг каждого инжектора в головке цилиндров. Перепускной клапан (7) управляет давлением в системе подачи топлива к инжекторам.
Клапаны питающего насоса
В топливном насосе (1) имеется два клапана:
Предохранительный клапан (11) позволяет топливу течь назад к стороне всасывания в случае слишком
высокого давления, например, когда топливный фильтр забит.
Невозвратный клапан (12) открывается при работе ручного насоса (13).
Автоматический выпуск воздуха
При попадании воздуха в систему он автоматически выводится при запуске двигателя. При этом воздух
выталкивается через перепускной клапан (14) и обратную линию (15) вниз к топливному баку. Выпуск воздуха из фильтра после его замены контролируется клапанами (19), (14) и (25).
Слив воды
Запрос на слив происходит через меню Настройки автомобиля на дисплее.
Для слива воды из водоотделителя (5) необходимо выполнение следующих условий:
- Датчик (16) в водном сепараторе показывает высокий уровень воды
- Автомобиль неподвижен
- Двигатель остановлен
- Ключ зажигания в положении езда
- Используется стояночный тормоз
Когда водитель с помощью выключателя на рукоятке (17) отмечает вариант Слив/выпуск воздуха и нажимает кнопку ENTER, сливной клапан (18) открывается примерно на 15 секунд и выпускает воду. Если какое-либо из упомянутых выше условий не выполнено, вместо этого появляется сообщение: Слив/выпуск воздуха не допускается.
Когда начинается слив, на дисплее показывается текст в рамке: Слив/выпуск воздуха запрошен вместе с
символом процесса слива в левом нижнем углу. По завершении слива символ исчезает. До повторного запроса слива требуется задержка на шесть минут.
Ручной насос
Ручной насос (13) расположен на корпусе топливного фильтра и используется для подкачки топлива (при неработающем двигателе) после слива всей топливной системы. Невозвратный клапан (24) ручного насоса также находится в корпусе топливного фильтра.
Внимание: Ручной насос нельзя использовать при работающем двигателе.
Другое
Новый корпус топливного фильтра устраняет необходимость в сливе топлива перед заменой фильтра. Нагели клапанов (19) и (23) закрываются при отвинчивании топливного фильтра. Больше не нужно выпускать воздух из системы после замены фильтра, поскольку это происходит автоматически при запуске двигателя и его работе в течение 2 минут.
Закрытый выход (20) расположен на корпусе топливного фильтра. Он используется при необходимости
подсоединения внешнего датчика при измерении давления подачи.
На корпусе топливного фильтра находится также датчик давления (21) для измерения давления подачи после топливного фильтра. Код неисправности отображается на инструментальной панели, если давление подачи меньше, чем значение, приведенное в перечне кодов неисправностей.
В качестве дополнительной принадлежности может присутствовать подогреватель топлива (22). Он установлен в нижней части водного сепаратора.