Подогреватель жидкостный Spheros
DBW 160, DBW 230, DBW 300, DBW 350
Подогреватели DBW 160, 230, 300 и 350 в сочетании с штатной системой отопления транспортных средств служат для:
• обогрева салона транспортного средства,
• оттаивания стекол,
• предварительного прогрева двигателя водяного охлаждения.
Подогреватель работает независимо от двигателя транспортного средства и подключается к системе охлаждения двигателя, системе топливоснабжения и электрической системе транспортного средства.
Подогреватель работает согласно принципу теплообмена, в прерывистом режиме и управляется температурным датчиком.
В целом подогреватель состоит из:
• нагнетателя воздуха для горения,
• топливного насоса,
• теплообменника,
• камеры сгорания,
• катушки зажигания и электродов зажигания.
В зависимости от варианта исполнения подогревателя он может быть оборудован подогревателем форсунки.
Для управления и контроля применяются:
• блок управления,
• датчик пламени, расположенные в подогревателе.
В зависимости от варианта исполнения подогревателя блок управления может быть расположен сзади сбоку или сверху.
В зависимости от варианта исполнения подогревателя
• температурный ограничитель,
• температурный предохранитель,
• термостат вентилятора, монтируются на подогревателе.
Дополнительно в транспортном средстве монтируются циркуляционный насос.

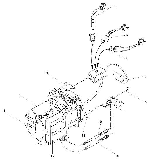
Подогреватель DBW 160
1. Головка горелки
2. Катушка зажигания
3. Выход охлаждающей жидкости
4. Регулирующий термостат
5. Температурный предохранитель
6. Температурный ограничитель
7. Термостат вентилятора
8. Теплообменник
9. Выход выхлопных газов
10. Блок управления

Подогреватель DBW 230, DBW 300 и DBW 350
1. Головка горелки
2. Катушка зажигания
3. Вход охлаждающей жидкости
4. Температурный предохранитель*
5. Регулирующий термостат*
6. Температурный ограничитель*
7. Выход охлаждающей жидкости
8. Теплообменник
9. Топливная обратная магистраль
10. Топливная подающая магистраль
11. Выход выхлопных газов
12. Блок управления
* для смонтированных узлов, соответствующих варианту исполнения подогревателя
Воздушный нагнетатель
Вентилятор нагнетает необходимый для горения воздух через заборное отверстие в камеру сгорания.
В подогревателях применяются следующие виды вентиляторов:
- DBW 160 вентилятор с боковым каналом
- DBW 230/300 радиальный вентилятор
- DBW 350 двухступенчатый радиальный вентилятор
Мотор
Мотор через муфту приводит в движение нагнетатель воздуха для горения, а через зубчатую передачу - топливный насос.


Топливный насос
Топливный насос (одноступенчатый шестеренчатый насос) подает горючее от топливного бака к подогревателю, повышает его давление до 10 бар (DBW160 11,5 бар) и распыляет топливо через форсунку. Магнитный клапан управляет подачей топлива к форсунке.

Подогрев форсунки
С помощью подогрева форсунки производится нагрев подающегося к форсунке топлива.
При крайне низких температурах могут возникать функциональные нарушения в работе. При температуре меньше 0 С термостат включает нагревательный патрон в держателе форсунки. Время нагрева зависит от отраженной теплоты в камере сгорания и отключается при температуре +80С термостата.
Если подогреватель не оснащен подогревом форсунки, то можно провести его дооснащение.
Необходимые детали смотри в каталоге запасных частей.

Теплообменник
В теплообменнике произведенное за счет сгорания топлива тепло передается в контур охлаждающей жидкости.

Камера сгорания
Воздушно-топливная смесь распределяется в камере сгорания и там сжигается. При этом нагревается теплообменник.

Блок управления
Блок управления является центральным узлом и обеспечивает функционирование подогревателя и контроль процесса горения.

Датчик пламени
Датчиком пламени контролируется во время всего процесса горения состояние пламени.
Датчик пламени представляет собой фоторезистор в варианте не сенсорики, или фототранзистор в варианте сенсорика, которые реагируют на светосилу пламени.
Сигнал передается в блок управления и там обрабатывается.

Датчик пламени для блока управления 1553
Катушка зажигания и электроды зажигания
В катушке зажигания производится высокое напряжение для воспламенения топливновоздушной
смеси. Воспламение происходит за счет образования высоковольтной искры между электродами зажигания.

Температурный ограничитель / температурный предохранитель
Температурный ограничитель
(биметаллический) защищает подогреватель от недопустимо высоких рабочих температур.
Температурный ограничитель срабатывает при температуре выше 1070С или 1170С и отключает
подогреватель. Температурный ограничитель - возвратного типа или самовозвращающийся.
Температурный предохранитель
Температурный предохранитель защищает подогреватель от недопустимо высоких рабочих
температур. В температурном предохранителе находится плавкий предохранитель, который
срабатывает при превышении допустимой температуры и отключает подогреватель.
Вместо температурного предохранителя подогреватель может оснащаться температурным ограничителем.

Регулирующий термостат
Регулирующий термостат берет на себя управление подогревателем после достижения рабочей температуры. Путем чередующихся включений / выключений подогревателя температура охлаждающей жидкости поддерживается на постоянном уровне.
Термостат замыкается при 63 ± 50С и размыкается при 70 ± 30С.
Внешний регулирующий термостат
Управление работой подогревателя может производиться внешнеустановленным регулирующим термостатом.
Регулирующий термостат берет на себя управление подогревателем после достижения рабочей температуры. Путем чередующихся включений / выключений подогревателя температура охлаждающей жидкости поддерживается на постоянном уровне.
Термостат замыкается при 71 ± 20С и размыкается при 78 ± 20С, альтернативно при 62 ± 20С и размыкается при 70 ± 20С.
У подогревателей с экономичным режимом (режим сохранения тепла) может быть установлен термостат, который замыкается при 35 ± 20С и размыкается при 42 ± 20С.

Регулирующий термостат на подогревателе

Термостат вентилятора
Термостат вентилятора включает штатный вентилятор транспортного средства, или если температура охлаждающей жидкости находится между 300С и 400С. Термостат замыкается при 40 ± 30С и размыкается при 30 ± 50С.

Циркуляционный насосы
Устанавливаемый отдельно циркуляционный насос обеспечивает движение охлаждающей жидкости в контуре транспортного средства и подогревателя. Насос включается блоком управления и работает в течение всего времени работы подогревателя. Подогреватели могут функционировать с циркуляционными насосами U4810 (только DBW 160), U4814, U4851, U4854, U4855 или U4856.


Поиск и устранение неисправностей
Распознание неисправностей ограничивается, как правило, определением того, какие компоненты вышли из строя. Нижеследующие причины неисправностей не упоминаются потому, что подогреватели необходимо всегда проверять на наличие этих причин, или, соответственно, нужно быть уверенным, что неисправность произошла не по одной из них.
• коррозия штекера
• плохой электрический контакт
• деформация в результате усадки штекера
• коррозия проводов и предохранителей
• коррозия клемм аккумулятора
После устранения каждой неисправности, сборки и установки подогревателя на автомобиль (если его демонтировали) необходимо проверить правильность функционирования подогревателя.
В таблице на рис. ниже приведен перечень наиболее вероятных причин неисправности и
соответствующих способов устранения.


Поиск неисправностей - быстрая диагностика
Тип подогревателя:
• все подогреватели

Проверка отдельных узлов и деталей
Сопротивления датчика пламени
УКАЗАНИЕ
Очистите при наличии загрязнений стеклянную часть датчика пламени и смотровое окно 1 пластины (см. рис.). При повреждении или недостижении заданных значений датчиком пламени замените его.
Проверка, датчик пламени с блоком управления 1553
• подключите омметр к датчику пламени
• хорошо затемните датчик пламени. Для этого натяните кусок черного изолирующего шланга и стяните его на концах.
• через прибл. 20с сопротивление должно вырасти до > 100к0м
• светом спички на расстоянии прибл. 1см осветите датчик пламени. При этом сопротивление должно снизиться до прибл. 3000м.

Проверка и регулировка электродов зажигания
УКАЗАНИЕ
• Изоляторы электродов зажигания не должны иметь повреждений. Неисправные электроды или электроды с расстоянием вне допуска должны быть отрегулированы или заменены.
• Электроды могут быть отрегулированы с помощью шаблона. Для этого передняя кромка шаблона одевается на форсунку, а острия электродов размещаются в обоих вырезах.
Проверка
• проверить изоляторы на наличие повреждений
ВНИМАНИЕ
Чтобы не ухудшить распыление топлива, во время измерения зазоров электродов не касайтесь отверстия форсунки.
• установить зазоры по шаблону согласно рис. и проверить состояние электродов.
Регулировка
Установите зазоры электродов и проверьте шаблоном согласно рис.

Проверка катушки зажигания
ОСТОРОЖНО
Высокое напряжение! На электродах зажигания появляется напряжение до 8000В.
ВНИМАНИЕ
Не включать катушку зажигания без подключенных электродов зажигания.
Проверка
УКАЗАНИЕ
Подключите постоянное напряжение « + » на черном проводе, и « - » на коричневом проводе.
- подайте постоянное напряжение 12В или 24В - заданное состояние: проскакивание искры на
электродах зажигания.
Проверка топливного насоса
УКАЗАНИЕ
Проверка топливного насоса производится в собранном состоянии. Допустима регулировка давления.
Для проверки необходим измерительный прибор. Данный прибор (диапазон измерений 0 - 15бар) может быть заказан у компании Spheros.
ВНИМАНИЕ
Демонтируйте катушку зажигания.
Проверка
- демонтируйте катушку зажигания,
- демонтируйте форсунку,
- вверните измерительный прибор,
- закройте датчик пламени,
- включите подогреватель,
- через прибл. 15с появится давление на насосе,
- выключите подогреватель,
- выкрутите измерительный прибор.
ВНИМАНИЕ
Не повредите отверстие форсунки.
- Вверните форсунку и затяните с моментом 20Нм,
- Смонтируйте катушку зажигания.

Проверка мотора нагнетателя
УКАЗАНИЕ
Проверка мотора производится в собранном состоянии. Если расчетные значения не достигаются, то мотор необходимо заменить.
Проверка
- проверить мотор нагнетателя на состояние подшипников (на затруднение вращения),
- измерить входное напряжение на подогревателе,
- включить подогреватель,
- измерить число оборотов вращения (скорость вращения должна находиться внутри указанного
диапазона) заданная скорость вращения при 24В 5800 ± 580 об. мин)
DBW 160 4050 - 4950
DBW 230 5220 - 6380
DBW 300 5220 - 6380
DBW 350 5040 - 6160
Проверка магнитного клапана
УКАЗАНИЕ
Негерметичность седла магнитного клапана проявляется в длительном дымлении подогревателя во время продувки. В этом случае топливо капает из форсунки.
Короткое дымление является нормой. Это происходит за счет слива топлива из пространства между магнитным клапаном и отверстием форсунки.
Проверка
ВНИМАНИЕ
Отключите разъем магнитного клапана от блока управления. Невыполнение этого может привести к повреждению блока управления.
- Проверьте электрическое функционирование на 12В подогревателях согласно нижеслед. данных:
• напряжение при размыкании 8,5В
• рабочее напряжение 9,6...14,4В
• потребляемая мощность при номинальном напряжении и 200С 10Вт
• номинальный ток 0,83А
- Проверьте электрическое функционирование на 24В подогревателях согласно нижеслед. данных:
• напряжение при размыкании 17,0В
• рабочее напряжение 19,2.28,8В
• потребляемая мощность при номинальном напряжении и 200С 10Вт
• номинальный ток 0,42А
Проверка подогрева форсунки
УКАЗАНИЕ
Нагревательный патрон включается термостатом при температуре <00С. Время нагрева зависит от отраженной теплоты в камере сгорания и отключается термостатом при +80С. Потребляемая мощность составляет 130±13Вт при 12В или 24В.
Проверка
- откиньте или снимите головку горелки,
- отсоедините разъем от держателя форсунки,
- подключите омметр к разъему,
- охладите замораживающим аэрозолем термостат, или шунтируйте его,
- величина сопротивления (макс. 4,5Ом).
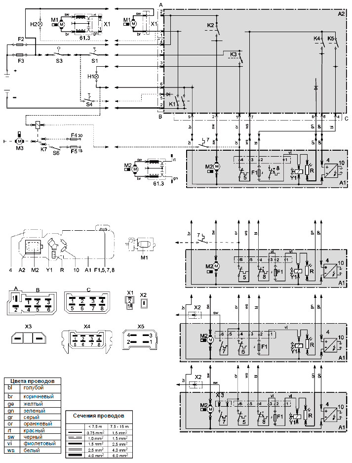
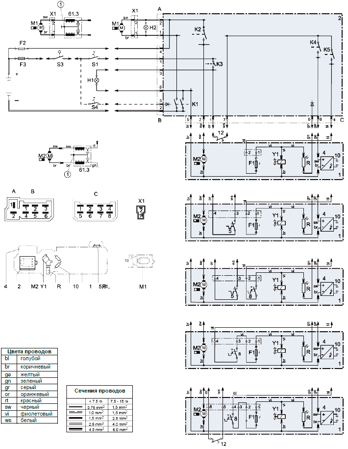
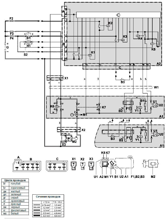
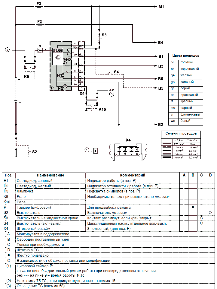
Схемы подключения
Схемы подключения или примеры применения показывают возможные подключения подогревателей DBW 160, 230 (2020), 300 и 350.

DBW 160 с блоком управления 1553 и выключателем, варианты
подогревателей и распиновка разъемов

DBW 160 с блоком управления 1553 и выключателем, варианты
подогревателей и распиновка разъемов

DBW 230/300 с блоком управления 1553, 24В

DBW 230/300 с блоком управления 1553, 24В

DBW 300/350 с блоком управления 1553, 24В

DBW 300/350 с блоком управления 1553, 24В

Пример применения DBW160/230/300, 12В и 24В, работа с таймером и выключателем «массы»