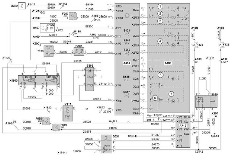
Краткий обзор кондиционера (с автономным кондиционером) TGA
A100 Центральная электрическая сеть
A302 Центральный компьютер 2
A407 Приборная панель
A474 Блок управления обогрева кабины водителя с/без кондиционера
A480 Кондиционер Комплект поставки фирмы BEHR
A713 Блок управления в распределительном блоке
B203 Реле высокого/низкого давления бака хладагента (кондиционер)
B393 Датчик температуры Внутренний воздух (кондиционер)
F125 Предохранитель подсветки приборов, переключателей и вспомогательного освещения
F376 Предохранитель внутри кабины (клемма 15)
F397 Предохранитель Вентилятор отопителя/кондиционер
F649 Предохранитель Кондиционер
F650 Предохранитель Вентилятор Кондиционер
K718 Реле датчика температуры Внутренний воздух (кондиционер)
R106 Потенциометр Подсветка приборов
K1009 Реле Датчик температуры Кондиционер
S123 Переключатель Свежий воздух/рециркуляция
S544 Переключатель AC-ВКЛ
S545 Переключатель REHEAT
S546 Поворотный выключатель Температура в кабине
S547 Поворотная ручка Вентилятор
S890 Кнопка в(ы)ключения автономного кондиционера
S891 Выключатель аккумулятора холода автономного кондиционера
X200 Разъем диагностики (MAN-cats)
X1560 Цоколь реле K718, K...
X1644 Точка массы кабины рядом с центральной электрической сетью
X1754 Обжимное соединение провода 59104
X1822 Штекерное соединение - Кондиционер
X1823 Штекерное соединение Кондиционер, клемма 15
X200 Диагностическая розетка
X2542 Распределитель потенциалов 21-контактного провода 58000
X2544 Распределитель потенциала 21-жильный К-кабель
X3382 Штекерное соединение Автономный кондиционер/бортовая электрическая сеть
Y114 Электромагнитное сцепление Компрессор
Y117 Электромагнитный клапан переднего кондиционера
1 Датчик испарителя
2 Датчик наружной температуры
3 Датчик теплообменника
4 Перепускная заслонка отопителя
5 Свежий воздух/рециркуляция
6 Регулятор такта
7 Вентилятор
