См. также:
Описание топливной системы (с электро насосом) VOLVO

При поиске неисправностей важно понимать функцию системы и выполнять последовательность поиска
неисправностей в контрольном списке, чтобы избежать замены исправных деталей.
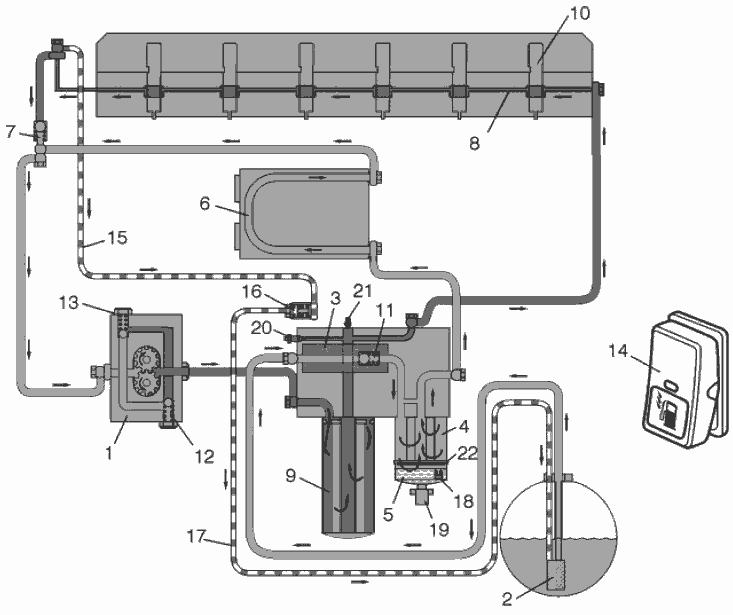
Схематическое описание
подачи топлива при непрерывной работе
Топливо всасывается топливным насосом (1) через сетчатый фильтр (2) на датчике уровня топлива в баке, через электрический топливный насос (3) в корпусе топливного фильтра. Если двигатель оборудован фильтром предварительной очистки (4) и водоотделителем (5), топливо проходит также через них. Топливо затем проходит через охлаждающую спираль блока управления (6) к перепускному клапану (7), где топливо из бака смешивается с обратным потоком топлива из топливного канала головки цилиндров (8) и поступает далее к стороне всасывания топливного насоса.
Топливный насос нагоняет топливо в топливный фильтр через главный фильтр (9) к продольному топливному каналу головки цилиндров. Этот канал обеспечивает каждый насос-форсунку (10) топливом через
кольцеобразную канавку вокруг каждого инжектора в головке цилиндров. Перепускной клапан (7) управляет давлением в системе подачи топлива к инжекторам.
Невозвратный клапан (11), расположенный в электрическом топливном насосе (3), предотвращает возврат топлива в бак при выключении двигателя.
Клапаны питающего насоса
В топливном насосе (1) имеется два клапана:
Предохранительный клапан (12) позволяет топливу течь назад к стороне всасывания в случае слишком
высокого давления, например, когда топливный фильтр забит.
Невозвратный клапан (13) открывается при работе электрического топливного насоса (3).
Работа электрического топливного насоса
Электрический топливный насос (3) используется в двух случаях:
Выпуск воздуха из топливной системы, например, после замены топливных фильтров.
Слив воды из водного сепаратора.
Электрический насос активируется в обоих случаях с помощью выключателя (14) на панели приборов.
Выпуск воздуха из топливной системы При нажатии выключателя (14) электрический топливный насос включается и работает около 5 минут. Выпуск воздуха начинается при заполнении топливной системы и увеличении давления. При этом воздух выталкивается через топливную линию (15) и воздушный вентиляционный клапан (16) вниз к топливному баку через обратную линию (17).
Слив воды:
Для слива воды из водного сепаратора необходимо выполнение следующих условий:
- Датчик (18) в водном сепараторе показывает высокий уровень воды
- Автомобиль неподвижен
- Двигатель остановлен
- Ключ зажигания в положении езда
- Используется стояночный тормоз
При нажатии выключателя (14) сливной клапан (19) открывается и выпускает воду. В то же время включается топливный насос для того, чтобы выгнать воду и воспрепятствовать попаданию воздуха в топливную систему.
Слив воды занимает примерно 20 секунд.
Другое
Сливной ниппель (20) расположен на корпусе топливного фильтра. Ниппель используется при сливе топлива из системы, например, при замене насоса-форсунки.
На корпусе топливного фильтра находится также датчик давления (21) для измерения давления подачи после топливного фильтра. Код неисправности отображается на инструментальной панели, если давление подачи меньше, чем значение, приведенное в перечне кодов неисправностей.
В качестве дополнительной принадлежности может присутствовать подогреватель топлива (22). Он установлен в нижней части водного сепаратора.