Гидравлическая схема Manitou MT - MLT
(MT 732, MT 932, MLT 630, MLT 634, MLT 731)
- MT 732 Серия B-E2
- MT 932 Серия B-E2
- MLT 630 Turbo Серия B-E2
- MLT 630 120 LSU Серия B-E2
- MLT 634 Turbo LSU Серия B-E2
- MLT 634 120 LSU Серия B-E2
- MLT 634 120 LSU POWERSHIFT Серия B-E2
- MLT 731 Turbo Серия B-E2
- MLT 731 Turbo LSU Серия B-E2
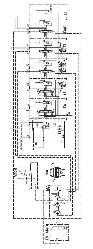
ГИДРАВЛИЧЕСКАЯ СХЕМА MLT 634 / 731 Turbo LSU Серия B-E2



BA Блок питания + аккумулятор
CA Сетчатый фильтр на всасывающей линии
CR(O) Буксирный крюк (Опция)
CSP Управляемый предохранительный клапан
D Клапанная группа 4 или 5 секций
- EA Секция навесных устройств
- EA(O) Секция навесных устройств (Опция)
- EE Впускная секция
- EI Секция сгибания
- EL Секция подъема
- ES Выпускная секция
- ET Телескопическая секция
D3 Клапанная группа управления 3-позиционная
- Положение 1: Короткий поворот
- Положение 2: Управление переднего колеса
- Положение 3: Положение угла сноса
EVHAR(O) Задний гидравлический электроклапан (Опция)
EVTF(O) Электроклапан головки стрелы (Опция)
FDAV Тормоз переднего диска
FDAR Тормоз заднего диска
FR Фильтр возврата
M Двигатель внутреннего сгорания
MA Джойстик
- G Втягивание/Выдвижение раздвижной части
- B Навесное устройство
MC Главный цилиндр
N Уровень
P Гидравлический насос
PAAV Фитинг переднего навесного устройства
PAAV(O) Фитинг переднего навесного устройства (Опция)
PAAR(O) Фитинг заднего навесного устройства (Опция)
PD Насос рулевого управления
PFR(O) Тормозной фитинг трейлера (Опция)
PP Точка давления
PRF(O) Сливной фитинг (Опция)
R Гидравлический резервуар
RLF Резервуар масла тормозной системы
SC Переключатель цепей
SCFR(O) Переключатель тормозных цепей трейлера (Опция)
SCHAR(O) Задний гидравлический переключатель цепей (Опция)
S2F Переключатель 2-позиционный
- 1 Выдвижение
- 2 Навесное устройство
S3F Переключатель 3-позиционный
- 1 Выдвижение
- 2 Навесное устройство
- 3 Навесное устройство (Опция)
VACM(O) Отсекающий клапан движения (Опция)
VACR Холостой контрольный клапан
VAI Изолирующий клапан
VAFR(O) Тормозной клапан трейлера (Опция)
VC Компенсационный цилиндр DE 100x50 C310
VDAR Задний рулевой цилиндр DE 90x45 C80x2
VDAV Передний рулевой цилиндр DE 90x45 C80x2
VI Цилиндр сгибания DE 120x60 C445 (MLT 6)
DE 130x65 C380 (MLT 7)
VL Подъемный цилиндр DE 130x70 C720 (MLT 6)
DE 140x70 C720 (MLT 7)
VT Телескопический цилиндр DE 70x50 C2100 (MLT 6)
DE 70x50 C2750 (MLT 7)
VVT(O) Блокирующий цилиндр суппорта DE 60x45 C183 (Опция)
ПРИМЕЧАНИЕ:
1 - Давление главного перепускного клапана на впускных секциях дается для макси-мальной мощности двигателя.
2 - Давление вторичного клапана дается для 1000 об/мин двигателя.
3 - Контроль перепускного клапана давления должен осуществляться при температуре масла 50°C.
Все схемы в высоком качестве смотри в