См. также:
Топливная система Common Rail Canter EURO 4 (для России)
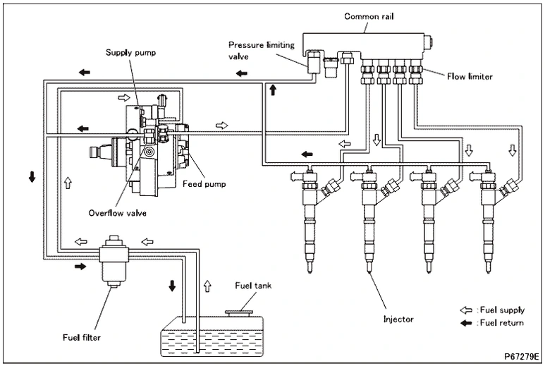
Топливная система (Подача топлива)

• Насос питания, который приводится распределительным валом внутри насоса снабжения, забирает
топливо из топливного бака и подает его через топливный фильтр, где топливо очищается от пыли и других загрязнений.
• Отфильтрованное топливо затем отправляется в насос снабжения, где оно сжимается. Сжатое топливо собирается некоторое время в системе Common rail, затем впрыскивается через распылительные наконечники в камеру внутреннего сгорания.
• Если топливо стекает из топливопровода в соединение труб, включается ограничитель потока,
закрывающий топливный канал, предотвращая затекание топлива в другие места.
• Излишки топлива из форсунок возвращаются в топливный бак через шланг возврата топлива.
• Когда внутреннее давление топлива в системе Common rail превышает ограничение, открывается клапан ограничения давления, чтобы позволить части топлива вернуться в топливный бак.
• Когда внутреннее давление топлива насоса снабжения превышает ограничение, открывается клапан
слива избытка, чтобы позволить части топлива вернуться в топливный бак.
Управление акселератора

• Двигатель управляется устройством электроуправления (ECU).
• В зависимости от воздействия на педаль акселератора и поступления данных на датчик позиции
акселератора, устройство электроуправления двигателя задает оптимальное впрыскивание топлива
форсункам.
УСТРОЙСТВО И ФУНКЦИИ
Введение
• В системе Сommon rail устройство электроуправления отображает различные характеристики двигателя (скорость двигателя, открытие регулирования расхода, температура охлаждающей жидкости и т. д.), используя данные из датчиков. Согласно этим данным, устройство электроуправления осуществляет контроль над количеством впрыска топлива, регулированием впрыска топлива и давлением впрыска топлива, чтобы оптимизировать работу двигателя.
• Устройство электроуправления имеет функцию диагностирования, что позволяет ему распознавать неисправности основных компонентов системы Сommon rail и предупредить о них водителя.
• Система Сommon rail состоит в основном из насоса снабжения с электроуправлением; форсунок; common rail; устройства электроуправления и датчиков, используемых для управления остальными компонентами.

• Когда двигатель проворачивается посредством включения стартера, насос питания (который находится внутри насоса снабжения) одновременно забирает топливо из топливного бака и доставляет его через топливный фильтр в MPROP (клапан контроля давления). Количество топлива, определяемое MPROP, доставляется через впускные клапаны в камеры плунжера.
• Топливо в камерах плунжера сжимается. Затем открываются выпускные клапаны и топливо под давлением доставляется в common rail.
• Сжатое топливо некоторое время пребывает в common rail, а затем в однородной форме доставляется к форсункам.
• Согласно сигналам устройства электроуправления двигателя магнитный клапан каждой форсунки
контролирует впрыскивание топлива в камеру внутреннего сгорания в оптимальное время - в
оптимальном количестве.

Насос снабжения


• Убедитесь, что подсоединили разъем MPROP (клапан контроля давления) к кабелю двигателя до начала запуска двигателя. Если двигатель был заведен без подсоединения разъема MPROP, управление насосом снабжения не будет осуществляться устройством электроуправления, а это может привести к неисправности.
• Насос снабжения прессует топливо и подает его в спрессованном состоянии.
• Топливо, забранное насосом питания из бака, не подается прямиком в плунжеры. Сначала оно подается в MPROP (клапан контроля давления), которое контролирует количество доставляемого в плунжеры топлива.
• Если давление топлива превышает определенный уровень, клапан слива избытка возвращает топливо во впускную часть механизма насоса питания. Данная операция сохраняет давление топлива,
доставляемого в MPROP, постоянным.
• Вращение эксцентричного вала привода осуществляет (посредством кулаков) движение плунжеров
вверх-вниз. Благодаря этому процессу топливо в камерах плунжеров прессуется.
MPROP (клапан контроля давления)
• MPROP получает топливо из насоса питания и подает его в плунжеры насоса снабжения в необходимом количестве так, что давление топлива (давление common rail) соответствует заданному устройством электроуправления двигателя значению.
• Когда MPROP не действует, т. е. ему не подается электропитание, топливо подается с максимальной
величиной. При подаче электропитания поршень в MPROP нажимается до такой степени, что топливо не доставляется в плунжеры.
• время подачи электропитания контролируется устройством электроуправления двигателя (количество нагрузки).

Регулятор нулевой подачи
• Некоторое количество топлива может вытечь через MPROP (клапан контроля давления) в плунжер даже при ограничении MPROP полного потока топлива. Для прекращения подачи топлива в плунжер включается регулятор нулевой подачи для возврата топлива в насос питания, что приводит к отсутствию подачи топлива в плунжер.

Перепускной клапан
• Перепускной клапан открывается, когда давление топлива, подаваемого из насоса питания превышает заданный уровень для возврата излишнего топлива в сторону впуска насоса питания. Топливо, оказавшееся излишним, втекает в камеру вала эксцентриковой передачи для смазки деталей в камере.

Клапан контроля потока
• Клапан контроля потока отводит излишнее топливо, подаваемое из насоса питания в камеру вала
эксцентриковой передачи для смазки деталей.


• Сommon rail распределяет спрессованное топливо, поступившее из насоса снабжения, между
форсунками.
• Каждый ограничитель подачи предотвращает избыток подачи топлива, блокируя проход топлива в случае утечки топлива из трубок впрыскивания или чрезмерного впрыскивания топлива из форсунок.
• Датчик давленияcommon rail используется для контроля возврата топлива. Он распознает давление
топлива внутри common rail и подает соответствующий сигнал устройству электроуправления.
• Если давление в common rail exceeds превышает определенный установленный уровень, плунжер
толкателя клапана ограничения давления толкает и сжимает пружину так, чтобы топливо могло оттечь.
Таким образом клапан ограничения давления предотвращает повышение давления топлива сверх нормы.
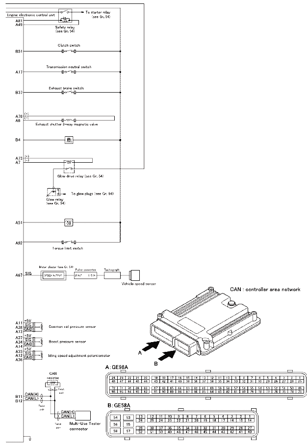
Схема подсоединения устройства электроуправления

