Элеметы защиты трансмиссии грузового автомобиля DAF XF105

Защита кулисы коробки передач 8S, 9S, 16S
Защита кулисы помогает предотвратить переключение с третьей или четвертой передачи (кулиса 3-4) на первую или вторую передачу (кулиса 1-2), если скорость автомобиля слишком высока. Эта ошибка
переключения происходит, если водитель забывает нажать переключатель диапазонов, расположенный в передней части рычага переключения передач, чтобы переключиться в верхний диапазон, прежде чем повысить передачу с четвертой на пятую.

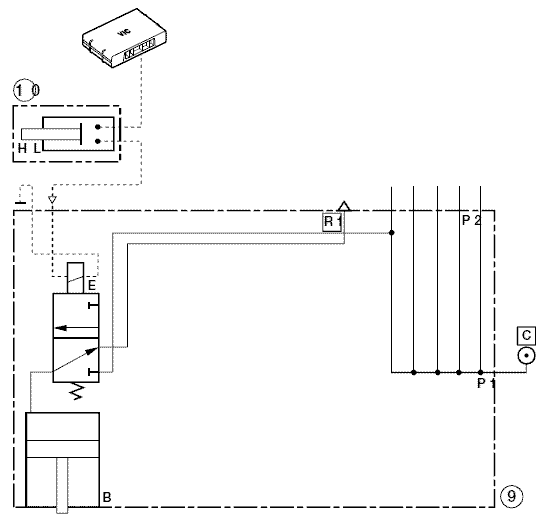
9 Блок распределения воздуха
9B Запорный цилиндр защиты кулисы
9E Клапан, защита коробки передач (B465)
10 Переключатель, группа диапазона, нижний (E595)
Защита кулисы работает только в нижнем диапазоне и при превышении определенной запрограммированной скорости автомобиля в блоке VIC. Выбор нижнего диапазона определяется по
переключателю нижнего диапазона (10 - E595).
Питание на защитный клапан кулисы (9E - B465) подается при выполнении следующих условий:
- Скорость автомобиля выше запрограммированного значения и
- Переключатель нижнего диапазона (10 - E595) замкнут (коробка передач переведена в нижний диапазон).
Осуществляется подача давления через защитный клапан кулисы (9E - B465) на запорный цилиндр (9B). Таким образом, кулиса 1-2 не может быть задействована.
Однако если выбран верхний диапазон, защитный клапан кулисы (9E - B465) не может получить питание, поскольку переключатель нижнего диапазона (10 - E595) разомкнут. Кулиса 5-6 (1-2) может снова быть задействована.
В целях безопасности понижение передачи всегда должно быть возможным. Поэтому, прилагая
дополнительное усилие переключения, можно войти в кулису 1-2, преодолевая сопротивления давления в запорном цилиндре (9B).
Защита сцепления
При трогании с места на слишком высокой передаче сцепление испытывает чрезмерную нагрузку. Защита сцепления осложняет трогание с места на слишком высокой передаче. Защита сцепления предотвращает трогание с места на 3-й и более высоких передачах. Если при трогании все же включается более высокая передача, нажатие педалей сцепления и акселератора включает предупреждение желтого цвета на DIP (слишком высокая передача) с акустическим сигналом. Сигнал педали акселератора игнорируется, и ускорение становится невозможным.
Для того чтобы тронуться с места выберите передачу ниже 3ей. Переключатели кулис 3/4 (1) и переключатель нижнего диапазона (2) расположены на коробке передач.

1. Переключатель определения кулисы 3/4 (F120)
2. Группа переключателя нижнего диапазона (E595)
Блок VIC получает и передает сигналы защиты сцепления.
Защита сцепления включается при выполнении следующих условий:
- Скорость автомобиля ниже 5 км/ч
- Коробка передач переведена в положение кулисы 3/4 или в верхний диапазон.
- Педаль сцепления отпускается.
- Нажата педаль акселератора.
Защитный клапан понижения передачи
Защита понижения передачи не позволяет понизить передачу из верхнего диапазона коробки передач в нижний диапазон, когда скорость автомобиля слишком высока.
Понижение передачи из верхнего диапазона в нижний при слишком высокой скорости автомобиля может вызвать серьезное повреждение диска сцепления, коробки передач и двигателя вследствие понижения крутящего момента в переключателе диапазонов.
Эта защита включается автоматически, когда скорость автомобиля превышает определенное предварительно запрограммированное значение. Эта скорость автомобиля (сигнал скорости) запрограммирована в блок VIC.

1 Селекторный клапан рычага переключения передач
6 Цилиндр переключения диапазонов
9 Блок распределения воздуха
9a Дроссель
9A Клапан нейтрального положения
9C Групповой клапан
9D Защитный клапан понижения передачи (B465)
Если переключатель диапазонов (1-GP) на рычаге переключения передач переводится на нижний диапазон "L", то в точку подключения 21 подается давление воздуха. Это давление воздуха затем поступает на точку подключения E6 блока распределения воздуха (9). Воздух в блоке распределения воздуха подается на защитный клапан понижения передачи (9D - B465).
Если скорость автомобиля превышает определенное значение, тогда блок VIC не будет осуществлять
управление защитным клапаном понижения передачи (9D - B465). Тогда давление воздуха не сможет вдавить групповой клапан (9C) в положение нижнего диапазона через защитный клапан понижения передачи (9D - B465).
Несмотря на команду пневмосистемы, поступающую с переключателя диапазонов (1-GP), невозможно
переключить подачу давления воздуха через точку подключения A26 блока распределения воздуха на
соединение 26 цилиндра зацепления передачи верхнего/нижнего диапазона (6) и, таким образом, на нижний диапазон.
Только при снижении скорости автомобиля ниже определенного запрограммированного значения защитный клапан понижения передачи (9D - B465) сработает. Используя управляющее давление с переключателя диапазонов (1-GP), давление воздуха теперь может поступить через защитный клапан понижения передачи (9D - B465) на групповой клапан (9C). Групповой клапан (9C) теперь вдавливается в положение нижнего диапазона.
Подача воздуха на групповой клапан (9C) осуществляется, только если клапан нейтрального положения (9A) находится в нейтральном положении "N".
Индикатор износа сцепления

5 Поршень пневматического цилиндра
11 Штифт индикатора износа
12 Стопорная шайба
Индикатор износа состоит из штифта (11), который выступает из картера сервопривода сцепления. Часть штифта, находящаяся внутри сервопривода сцепления, примыкает к пневматическому поршню (5), но не крепится к нему. На внешней части штифта находится разрезное кольцо (12).
Это разрезное кольцо должно быть прижато к сервоприводу сцепления во время первой сервисной проверки после испытательного заезда. Запрещается снимать разрезное кольцо или двигать его
по штифту. Это может стать причиной неточности показаний.
Когда диск сцепления будет изношен примерно на 80%, поршень пневматического цилиндра (5) вытолкнет штифт (11) наружу. Это вызывается тем, что узел сцепления с автоматической регулировкой больше не может регулироваться, когда диск сцепления изношен на 80%. Помимо прочего, положение поршня пневматического цилиндра (5) и, соответственно, штифта (11) меняется. Разрезное кольцо (12) на штифте (11) больше не будет прилегать к корпусу сервопривода сцепления. Разрезное кольцо
(индикатора) (12) может перемещаться примерно на 10 мм.