Система (управление КП (А5)) TCM
Mercedes Actros euro 6
А1 (блок управления комбинации приборов = (ICUC))

А5 (блок управления КП (ТСМ))

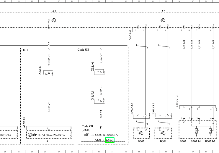
А62 (распределитель импульсов)

А62а (распределитель импульсов)

А7 (блок управления блока обработки сигналов и управления кабины водителя (SCA))

А7а (блок управления одинарного модуля бработки сигналов и управления (SSAM))

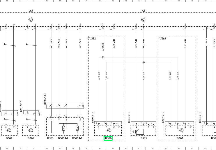
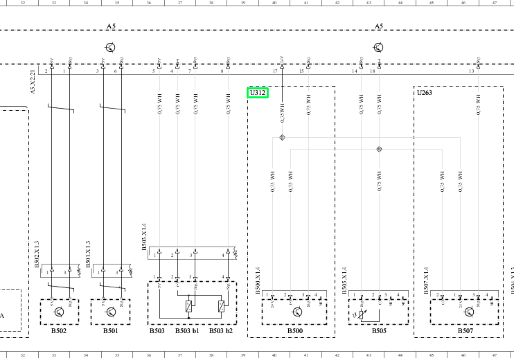
В500 (датчик числа оборотов выходного вала)

В501 (датчик числа оборотов вторичного вала)

В502 (датчик частоты вращения промежуточного вала)

В503 (датчик перемещения сцепления)

8503 b1 (датчик перемещения сцепления, сигнал 1)

В503 Ь2 (датчик перемещения сцепления, сигнал 2)

В504 (датчик перемещения группы диапазонов)

8505 (датчик температуры масла КП)

В507 (датчик числа оборотов NMV)

CAN 4 (шина данных CAN силовой передачи)

Код J9E (подготовка для установки регистрирующего устройства LSVA)

Код Z3L (Single-SAM вместо SAM-Cabin и SAM-Chassis)

Р1 (тахограф (ТСО))

U11 (действительно для а/м без тахографа)

U263 (действительно для а/м с NMV)

U3 (действительно для тахографа)

U312 (действительно в случае 2-ступенчатой раздаточной коробки)

U834 (SAM-Cabin и SAM-Chassis вместо Single-SAM)

Х112.18 (электрическое штекерное соединение крыши со стороны переднего пассажира)

Х159.6 (электрическое штекерное соединение распределителя импульсов)

Х32.40 (электрическое штекерное соединение кабина водителя - шасси на двигателе)

Y502 (модуль переключения NMV)

Y502 b1 (датчик перемещения NMV)

Y502 у1 (электромагнитный клапан NMV выдвинуть)

Y502 у2 (электромагнитный клапан NMV задвинуть)

Y900 (сервомотор КП)

Y900 b1 (датчик перемещения группы делителя)

Y900 Ь2 (датчик перемещения цилиндра включения передач)

Y900 ЬЗ (датчик перемещения цилиндра переключения коридоров передач)

Y900 у1 (электромагнитный клапан сцепления, медленное замыкание)

Y900 у10 (электромагнитный клапан цилиндра переключени коридоров передач, выдвигание)

Y900 у11 (электромагнитный клапан цилиндра переключения коридоров передач, задвигание)

Y900 у12 (электромагнитный клапан группы диапазонов, задвигание)

Y900 у13 (электромагнитный клапан группы диапазонов, выдвигание)

Y900 у2 (электромагнитный клапан сцепления, медленное размыкание)

Y900 уЗ (электромагнитный клапан сцепления, быстрое замыкание)

Y900 у4 (электромагнитный клапан сцепления, быстрое размыкание)

Y900 у5 (электромагнитный клапан тормоза промежуточного вала)

Y900 у6 (электромагнитный клапан группы делителя, выдвигание)

Y900 у7 (электромагнитный клапан группы делителя, задвигание)

Y900 у8 (электромагнитный клапан цилиндра включения передач, выдвигание)

Y900 у9 (электромагнитный клапан цилиндра включения передач, задвигание)

Z4 (точка звезды шины данных CAN привода)

Места установки

А5 (блок управления КП (ТСМ))
В501 (датчик числа оборотов вторичного вала)
В502 (датчик частоты вращения промежуточного вала)
В503 (датчик перемещения сцепления)
8504 (датчик перемещения группы диапазонов)
В505 (датчик температуры масла КП)
Y900 (сервомотор КП)
Группа делителя
1 ВЫДВИНУТЬ
2 ЗАДВИНУТЬ
3 Группа делителя
4 Задействование конструктивного узла 'Y900 b1 (датчик перемещения группы делителя)'

Группа диапазонов
1 ВЫДВИНУТЬ ( БЫСТРО )
2 ЗАДВИНУТЬ ( МЕДЛЕННО )
3 Группа диапазонов
4 В504 (датчик перемещения группы диапазонов)
