Электросхемы автоматической КП AGN Atego II
Электропитание AGN

- А49: Блок управления Allison
- X3: Штекерное соединение 32-контактное
- X13: К-провод для диагностики
- X62: Штекерное соединение 'Автоматическая КП Allison'
- W2: Точка массы в пространстве для ног переднего пассажира кабины водителя
Датчик температуры охлаждающей жидкости 'Тормоз-замедлитель (ретардер)1

- А49: Блок управления AGN
- В85: Датчик температуры охлаждающей жидкости 'Тормоз-замедлитель (ретардер)'
- Х2.2: Штекерное соединение 'Кабина водителя - шасси', 18-контактное
- ХЗ: Серое штекерное соединение (32-контактное)
- X62: Штекерное соединение 'Автоматическая КП Allison'
- 362: Механизм управления 'КП'
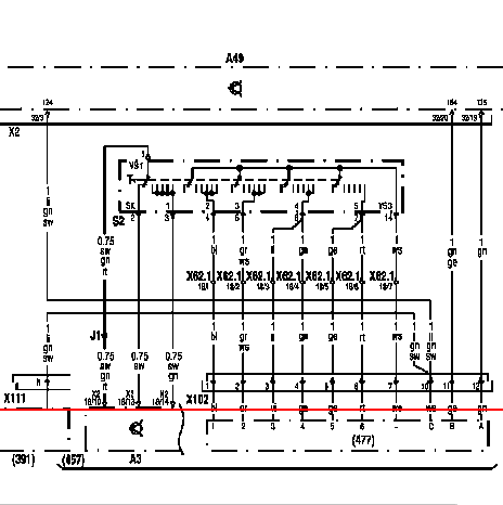
Рычаг задействования 'Управление двигателем/тормозом-замедлителем'

- А49: Блок управления AGN
- S2: Рычаг задействования 'Управление двигателем/тормозом-замедлителем'
- 391: Переключатель выбора передач
- Х62.1: Штекерное соединение 'Кабина водителя - шасси', 18-контактное Allison
- Х111: Штекерное соединение 'Переключатель выбора передачи'
Клапан наполнения ресивера

- А49: Блок управления AGN
- 383: Механизм управления 'Тормоза-замедлителя (ретардера)'
- Y59: Клапан наполнения ресивера
- X1: Синее штекерное соединение (32-контактное)
- Х61: Штекерное соединение 'Кабина водителя - шасси', 18-контактное
- Х109: Штекерное соединение 'Система датчиков КП'
Датчик давления СЗ

- А49: Блок управления AGN
- 362: Механизм управления 'КП'
- 365: Датчик давления СЗ
- X1: Синее штекерное соединение (32-контактное)
- Х60: Штекерное соединение 'Кабина водителя - шасси', 18-контактное
- Х110: Штекерное соединение 'КП Allison' (31-контактное)
Датчик числа оборотов турбины

- А49: Блок управления AGN
- 362: Механизм управления 'КП'
- 363: Датчик числа оборотов турбины
- X1: Синее штекерное соединение (32-контактное)
- Х60: Штекерное соединение 'Кабина водителя - шасси', 18-контактное
- Х110: Штекерное соединение 'КП Allison' (31-контактное)
Датчик температуры масла

- А49: Блок управления AGN
- 362: Механизм управления 'КП'
- 372: Датчик температуры масла
- X1: Синее штекерное соединение (32-контактное)
- Х60: Штекерное соединение 'Кабина водителя - шасси', 18-контактное
- Х110: Штекерное соединение 'КП Allison' (31-контактное)
Двухпозиционный датчик уровня масла

- А49: Блок управления AGN
- 362: Механизм управления 'КП'
- 373: Двухпозиционный датчик уровня масла
- X1: Синее штекерное соединение (32-контактное)
- Х60: Штекерное соединение 'Кабина водителя - шасси', 18-контактное
- Х110: Штекерное соединение 'КП Allison' (31-контактное)
Датчик температуры масла тормоза-замедлителя (ретардера)

- А49: Блок управления AGN
- 383: Механизм управления 'Тормоза-замедлителя (ретардера)'
- 384: Датчик температуры масла тормоза-замедлителя (ретардера)
- X1: Синее штекерное соединение (32-контактное)
- Х61: Штекерное соединение 'Кабина водителя - шасси', 18-контактное
- Х109: Штекерное соединение 'Система датчиков КП'
Датчик выходного числа оборотов

- А49: Блок управления AGN
- 383: Механизм управления 'Тормоза-замедлителя (ретардера)'
- 385: Датчик выходного числа оборотов
- X1: Синее штекерное соединение (32-контактное)
- Х61: Штекерное соединение 'Кабина водителя - шасси', 18-контактное
- Х109: Штекерное соединение 'Система датчиков КП'
Электромагнитный клапан 'Тормоз-замедлитель (ретардер)1

- А49: Блок управления AGN
- 383: Механизм управления 'Тормоза-замедлителя (ретардера)'
- 386: Электромагнитный клапан 'Тормоз-замедлитель (ретардер)'
- X1: Синее штекерное соединение (32-контактное)
- Х61: Штекерное соединение 'Кабина водителя - шасси', 18-контактное
- Х109: Штекерное соединение 'Система датчиков КП'
Датчик числа оборотов Двигатель

- А49: Блок управления AGN
- 383: Механизм управления 'Тормоза-замедлителя (ретардера)'
- 387: Датчик числа оборотов Двигатель
- X1: Синее штекерное соединение (32-контактное)
- Х61: Штекерное соединение 'Кабина водителя - шасси', 18-контактное
- Х109: Штекерное соединение 'Система датчиков КП'
Переключатель выбора передач

- А49: Блок управления AGN
- 1: Клемма 58
- Х2: Штекерное соединение 32-контактное
- Х62.1: Штекерное соединение 'Кабина водителя - шасси', 18-контактное Allison
- Х111: Штекерное соединение 'Переключатель выбора передачи'
- W2: Точка массы в пространстве для ног переднего пассажира кабины водителя
Электромагнитный клапан А - G

- А49: Блок управления AGN
- XI: Синее штекерное соединение (32-контактное)
- Х110: Штекерное соединение 'КП Allison' (31-контактное)
- 362: Механизм управления 'КП'
- 371: Электромагнитный клапан А
- 369: Электромагнитный клапан В
- 367: Электромагнитный клапан С
- 370: Электромагнитный клапан D
- 368: Электромагнитный клапан Е
- 364: Электромагнитный клапан F
- 366: Электромагнитный клапан G
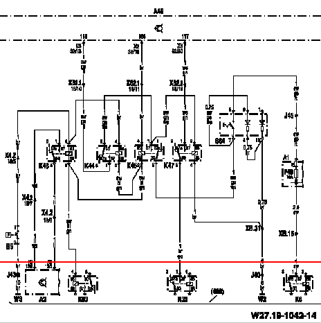
Вход 117

- АЗ: Блок управления FR
- А49: Блок управления AGN
- К8: Реле 'Клемма 15'
- К32: Реле "кикдаун" в случае автоматической КП Allison
- К44: Реле 'Стояночный тормоз'
- К45: Реле 'Распознавание передачи'
- К46: Реле 'Стояночный тормоз' (FR)
- К47: Реле Нейтраль
- КбЗ: Реле 'Состояние тормоза-замедлителя (ретардера)'
- S64: Выключатель 'Механизм отбора мощности 1'
- Х2.1: Штекерное соединение 'Кабина водителя - шасси', 18-контактное
- Х2.2: Штекерное соединение 'Кабина водителя - шасси', 18-контактное
- Х2: Штекерное соединение 32-контактное
- ХЗ: Серое штекерное соединение (32-контактное)
- X62: Штекерное соединение 'Автоматическая КП Allison'
Вход 118

- АЗ: Блок управления FR
- А49: Блок управления AGN
- К8: Реле 'Клемма 15'
- К44: Реле 'Стояночный тормоз'
- К45: Реле 'Распознавание передачи'
- К46: Реле 'Стояночный тормоз' (FR)
- КбЗ: Реле 'Состояние тормоза-замедлителя (ретардера)'
- S119: Ножной выключатель 'Разблокировка блокиратора режима движения'
- S120: Выключатель 'Разблокировка блокиратора режима движения'
- Х2: Штекерное соединение 32-контактное
- ХЗ: Серое штекерное соединение (32-контактное)
- Х4.2: Штекерное соединение 'Кабина водителя - шасси', 18-контактное
- X62: Штекерное соединение 'Автоматическая КП Allison'
Вход 119

- АЗ: Блок управления FR
- А49: Блок управления AGN
- Х2.1: Штекерное соединение 'Кабина водителя - шасси', 18-контактное
- Х2.2: Штекерное соединение 'Кабина водителя - шасси', 18-контактное
- Х2: Штекерное соединение 32-контактное
- ХЗ: Серое штекерное соединение (32-контактное)
- X62: Штекерное соединение 'Автоматическая КП Allison'
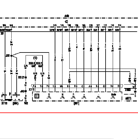
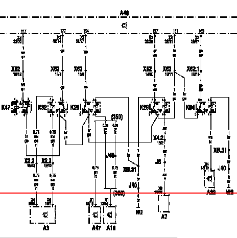
Вход 137

- АЗ: Блок управления FR система управления движением (FMR)
- А7: Базовый модуль
- А22: блок управления PSM
- А47 / А10: Блок управления ABS антиблокировочная система
- А49: Блок управления AGN
- К28: Реле ABS 'Автоматическая КП'
- К29: Реле 'Стоп-сигнал'
- К32: Реле "кикдаун" в случае автоматической КП Allison
- К47: Реле 'Нейтральное положение или положение сцепления'
- К64: Реле 'Отключение тормоза-замедлителя (ретардера)'
- Х2.2: Штекерное соединение 'Кабина водителя - шасси', 18-контактное
- ХЗ: Серое штекерное соединение (32-контактное)
- Х62: Штекерное соединение 'Кабина водителя - шасси', 18-контактное
- Х62.1: Штекерное соединение 'Кабина водителя - шасси', 18-контактное
- X112: Штекерное соединение PSM параметрируемый спецмодуль
- W2: Точка массы в пространстве для ног переднего пассажира кабины водителя
Вход 154

- АЗ: Блок управления FR система управления движением (FMR)
- А7: Базовый модуль
- А22: блок управления PSM
- А47 / А10: Блок управления ABS антиблокировочная система
- А49: Блок управления AGN
- К28: Реле ABS 'Автоматическая КП'
- К29: Реле 'Стоп-сигнал'
- К32: Реле "кикдаун" в случае автоматической КП Allison
- К47: Реле 'Нейтральное положение или положение сцепления'
- К64: Реле 'Отключение тормоза-замедлителя (ретардера)'
- Х2.2: Штекерное соединение 'Кабина водителя - шасси', 18-контактное
- ХЗ: Серое штекерное соединение (32-контактное)
- Х62: Штекерное соединение 'Кабина водителя - шасси', 18-контактное
- Х62.1: Штекерное соединение 'Кабина водителя - шасси', 18-контактное
- X112: Штекерное соединение PSM параметрируемый спецмодуль
- W2: Точка массы в пространстве для ног переднего пассажира кабины водителя
Вход 163

- АЗ: Блок управления FR система управления движением (FMR)
- А7: Базовый модуль
- А22: блок управления PSM
- А47 / А10: Блок управления ABS антиблокировочная система
- А49: Блок управления AGN
- К28: Реле ABS 'Автоматическая КП'
- К29: Реле 'Стоп-сигнал'
- К32: Реле "кикдаун" в случае автоматической КП Allison
- К47: Реле 'Нейтральное положение или положение сцепления'
- К64: Реле 'Отключение тормоза-замедлителя (ретардера)'
- Х2.2: Штекерное соединение 'Кабина водителя - шасси', 18-контактное
- ХЗ: Серое штекерное соединение (32-контактное)
- Х62: Штекерное соединение 'Кабина водителя - шасси', 18-контактное
- Х62.1: Штекерное соединение 'Кабина водителя - шасси', 18-контактное
- X112: Штекерное соединение PSM параметрируемый спецмодуль
- W2: Точка массы в пространстве для ног переднего пассажира кабины водителя
Вход 177

- АЗ: Блок управления FR система управления движением (FMR)
- А7: Базовый модуль
- А22: блок управления PSM
- А47 / А10: Блок управления ABS антиблокировочная система
- А49: Блок управления AGN
- К28: Реле ABS 'Автоматическая КП'
- К29: Реле 'Стоп-сигнал'
- К32: Реле "кикдаун" в случае автоматической КП Allison
- К47: Реле 'Нейтральное положение или положение сцепления'
- К64: Реле 'Отключение тормоза-замедлителя (ретардера)'
- Х2.2: Штекерное соединение 'Кабина водителя - шасси', 18-контактное
- ХЗ: Серое штекерное соединение (32-контактное)
- Х62: Штекерное соединение 'Кабина водителя - шасси', 18-контактное
- Х62.1: Штекерное соединение 'Кабина водителя - шасси', 18-контактное
- X112: Штекерное соединение PSM параметрируемый спецмодуль
- W2: Точка массы в пространстве для ног переднего пассажира кабины водителя
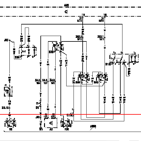
Выход 112

- А22: блок управления PSM
- А7: Базовый модуль
- А49: Блок управления AGN
- К8: Реле 'Клемма 15'
- К47: Реле Нейтраль
- S64: Выключатель 'Механизм отбора мощности 1'
- Y65: Электромагнитный клапан 'Механизм отбора мощности Автоматическая КП Allison'
- Х2.2: Штекерное соединение 'Кабина водителя - шасси', 18-контактное
- ХЗ: Серое штекерное соединение (32-контактное)
- Х62.1: Штекерное соединение 'Кабина водителя - шасси', 18-контактное
- Х112: Штекерное соединение PSM параметрируемый спецмодуль
- W2: Точка массы в пространстве для ног переднего пассажира кабины водителя
- W3: Точка массы для двигателя (на раме позади электромагнитного клапана ABS 'Передний мост справа')
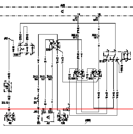
Выход 166

- АЗ: Блок управления FR
- А49: Блок управления AGN
- К8: Реле 'Клемма 15'
- К44: Реле 'Стояночный тормоз'
- К45: Реле 'Распознавание передачи'
- К46: Реле 'Стояночный тормоз' (FR)
- КбЗ: Реле 'Состояние тормоза-замедлителя (ретардера)'
- S119: Ножной выключатель 'Разблокировка блокиратора режима движения'
- S120: Выключатель 'Разблокировка блокиратора режима движения'
- Х2: Штекерное соединение 32-контактное
- ХЗ: Серое штекерное соединение (32-контактное)
- Х4.2: Штекерное соединение 'Кабина водителя - шасси', 18-контактное
- X 62: Штекерное соединение 'Автоматическая КП Allison'