Электросхемы автобусов B7R, B9L, B9R, B9S, B9TL, B12B, B12M VOLVO
Содержание
- Перечень материалов/Список компонентов
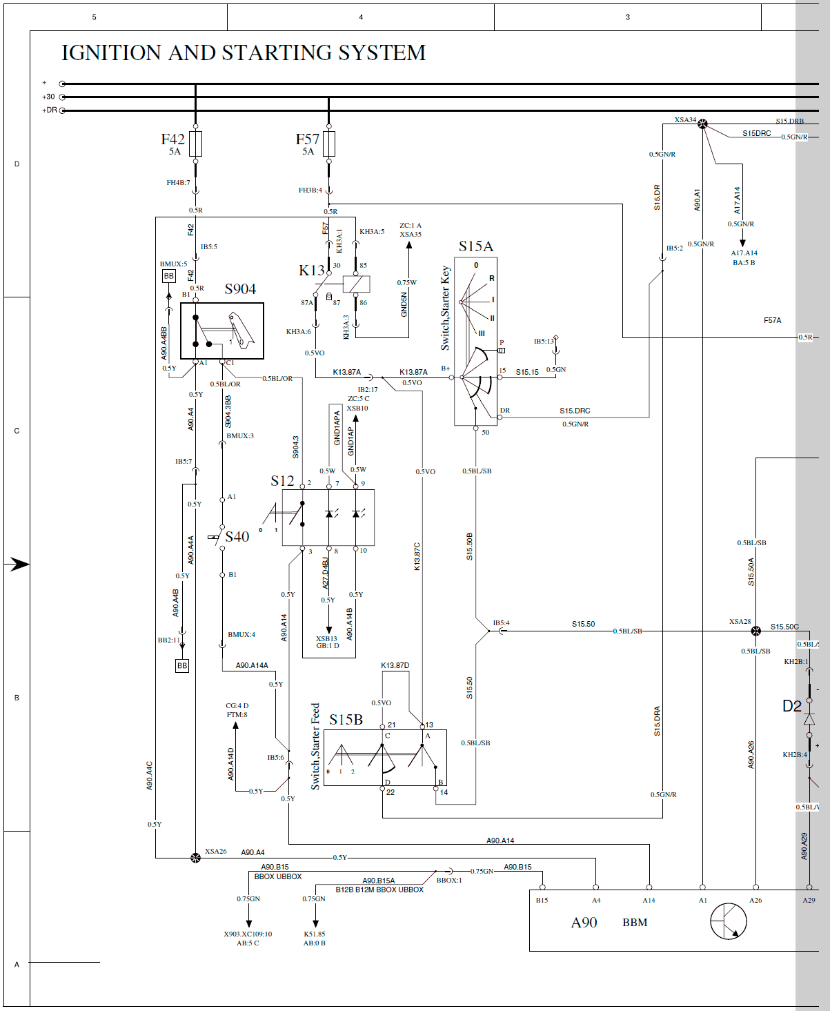
- AA Система зажигания и пуска
- AB Электропитание
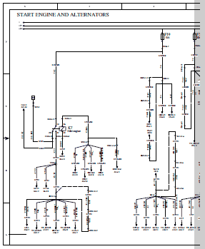
- AC Пуск двигателя и генераторы
- AD Стартер и генераторы для MD7
- AE Стартер и генераторы для B9L, B9TL, B9R
- AF Стартер и генераторы для MD12
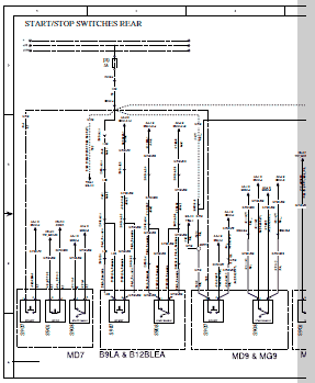
- AG Переключатели «пуск/стоп» задние
- AH Стартер и генератор для B9S
- BA VECU
- BB BBM
- BC BBM
- BD Пожарная сигнализация
- CA EECU D9B
- CB EECU G9A
- CC EECU D12D
- CG FTM
- CL BIO
- CM EECU DH12E
- CN EECU D7E
- CO Насос Oilmaster
- CP BIC
- CU DNOX2
- CV UDS
- DA G8-EGS
- DB ECOMAT4 ZF
- DC Voith DIWA5
- DD ECOLIFE ZF
- DM Тормоз-замедлитель
- DN I-shift
- DO Voith DIWA5 сочлен.
- EO EBS
- EP EBS
- EX Реле стояночного тормоза
- FA Пневматическая подвеска ECS
- FB Пневматическая подвеска ECS
- FC AMECU
- FO Мост с электронным управлением
- GA LCM
- GB LCM
- GC LCM
- GD LCM
- GE LCM
- GF LCM, двусочлененный, фонари
- GM Стеклоочиститель и омыватель
- GN LCM, ксеноновые фары
- IS Звуковой сигнал, SWM
- IU Аудиоблок
- LA ECU Hubner, 1-я поворотная площадка
- LB ECU Hubner, 2-я поворотная площадка
- NA Приборная панель автобуса BIC2
- NB Тахограф
- NC Dynafl eet
- ND FM 200
- NE Шлюз FMS
- XC CAN SAE 1939
- XD CAN SAE 1587
- XE CAN SAE 1587 UDS
- ZC Заземление
A90 BBM
D2 Диод
F42 «Выключатель бортового электропитания, 5А»
F57 «Клавишный выключатель, 5А»
K11 Предотвращение пуска двигателя
K17 Зажигание +15
S12 Выключатель бортового электропитания
S15A «Выключатель, ключ зажигания»
S15B «Выключатель, питание стартера»
S40 «Выключатель бортового электропитания от аккумуляторных батарей»
S904 «Выключатель аварийного останова»
BB2:11 Аварийный выключатель
BMUX:3 Внешний выключатель бортового электропитания
BMUX:4 Внешний выключатель бортового электропитания






И еще 72 схемы в высоком качестве - в 66 обновлении

