Комментарии к кодам неисправностей Mercedes Axor 940-944
Все коды неисправостей доступны нашим подписчикам
в 65 обновлении
здесь выложены полные комментарии только к системе TCO, к остальным системам - только перечьни ошибок
- кликните на нужную систему
TCO
![]() - PI: МТСО модульный тахограф - Р2: INS комбинация приборов - А7: Базовый модуль - А40: SRS система удержания пассажиров - Х124.1: Штекерное соединение 'Крыша' со стороны водителя - Х4.1: Штекерное соединение 'Кабина водителя-шасси' - XD.31.2: Место спайки проводов 'кл. 31' - U36: Только на а/м GGVS Возможные причины неисправности: - Неплотный контакт электропитания - Пониженное напряжение аккумуляторной батареи Указание: - Проверить провода и штекерные соединения между Базовый модуль(А7) и блоком управления МТСО модульный тахограф на предмет коррозии/ неплотного контакта и повреждения. - Проверить провод массы.
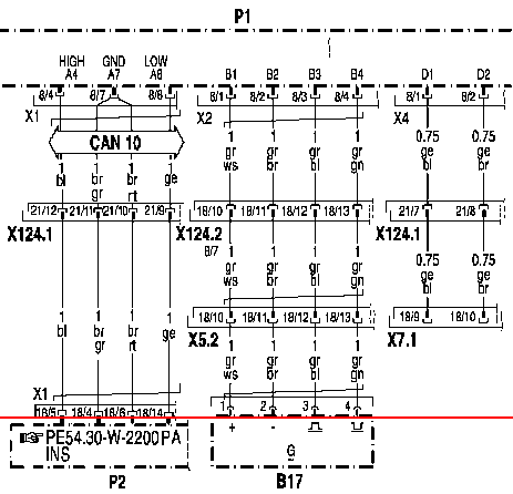
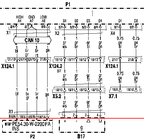
![]() - Р1: МТСО модульный тахограф - Р2: INS комбинация приборов Возможные причины неисправности: - Провода между Р1 и Р2 имеют обрыв или замыкаие на массу или плюс - Неисправна комбинация приборов. Указание: - Проверить соединение по CAN между блоками управления МТСО модульный тахограф и INS комбинация приборов. Указание: - После замены блока управления или датчика скорости необходимо обучить датчик скорости.
![]() - Р1: МТСО модульный тахограф - Р2: INS комбинация приборов Возможные причины неисправности: - Провода между Р1 и Р2 имеют обрыв или замыкаие на массу или плюс - Неисправна комбинация приборов. Указание: - Проверить соединение по CAN между блоками управления МТСО модульный тахограф и INS комбинация приборов. Указание: - После замены блока управления или датчика скорости необходимо обучить датчик скорости.
- Заменить блок управления МТСО модульный тахограф. Указание: - После замены блока управления или датчика скорости необходимо обучить датчик скорости.
- Провести проверку. Указание: - После замены блока управления или датчика скорости необходимо обучить датчик скорости.
![]() - 2, 4, б, 7: Клавиша тахографа Kienzle -11, 13, 14, 15, 16: Клавиша тахографа TVI Указание: - Проверить визуально клавишу на предмет блокировки. - Если блокировка клавиш не обнаружена и не требует устранения, заменить блок управления МТСО модульный тахограф. Указание: - После замены блока управления или датчика скорости необходимо обучить датчик скорости.
- Заменить блок управления МТСО модульный тахограф. Указание: - Дисплей неисправен или нарушен. - После замены блока управления или датчика скорости необходимо обучить датчик скорости.
![]() - Р1: МТСО модульный тахограф - Р2: INS комбинация приборов Возможные причины неисправности: - Провода между Р1 и Р2 имеют обрыв или замыкаие на массу или плюс - Неисправна комбинация приборов. Указание: - Проверить соединение по CAN между блоками управления МТСО модульный тахограф и INS комбинация приборов. - Провести поиск неисправности комбинации приборов (INS). Указание: - После замены блока управления или датчика скорости необходимо обучить датчик скорости.
![]() - Р1: МТСО модульный тахограф - Р2: INS комбинация приборов - В17: Датчик скорости Возможные причины неисправности: - Один из проводов к конструктивному узлу В17 имеет обрыв - Датчик скорости неисправен. - Датчик скорости не активирован. Указание: - Штекер и провода к датчику скорости проверить на обрыв при необходимости, отремонтировать или заменить. - Инициализировать (обучить) датчик скорости. - Проверить и, при необходимости, заменить датчик скорости В17. Указание : - После замены блока управления или датчика скорости необходимо обучить датчик скорости.
![]() - Р1: МТСО модульный тахограф - Р2: INS комбинация приборов - В17: Датчик скорости Возможные причины неисправности: - Один из проводов к конструктивному узлу В17 имеет обрыв - Датчик скорости неисправен. - Датчик скорости не обучен. Указание: - Штекер и провода к датчику скорости проверить на обрыв при необходимости, отремонтировать или заменить. - Проверить и, при необходимости, заменить датчик скорости В17.
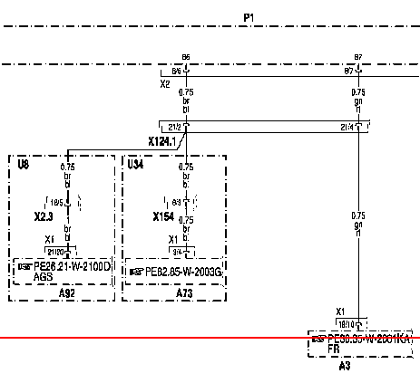
![]() - Р1: МТСО модульный тахограф - АЗ: FR система управления движением - А73: Распределитель импульсов - А92: Модуль переключения передач - U8: Действительно только для а/м со спецоборудованием 'AGS система автоматического управления переключением передач ' - U34: Швейцарский вариант - Х124.1: Штекерное соединение 'Крыша1 со стороны водителя
![]() - 2, 4, б, 7: Клавиша тахографа Kienzle -11, 13, 14, 15, 16: Клавиша тахографа TVI Указание: - Вставить тахограмму.
![]() - Вставить тахограмму для водителя 1.
![]() - Вставить тахограмму для водителя 2.
- Открыть выдвижное отделение и вынуть тахограммы. - Вставить новые тахограммы. - Закрыть выдвижное отделение. - Синхронизация происходит автоматически после закрытия выдвижного отделения. - Выполнить функциональную проверку. Указание: - После замены блока управления или датчика скорости необходимо обучить датчик скорости.
- Механическое заедание выдвижного отделения - Электромотор выдвижного отделения не включается. Указание: - Проверить блок управления МТСО на предмет механического заклинивания в раме для установки. Указание: - После замены блока управления или датчика скорости необходимо обучить датчик скорости.
- Заменить блок управления МТСО модульный тахограф. Указание: - Неправильная работа записывается на тахограмме. - После замены блока управления или датчика скорости необходимо обучить датчик скорости.
- Заменить блок управления МТСО модульный тахограф. Указание: - Неправильная работа записывается на тахограмме. - После замены блока управления или датчика скорости необходимо обучить датчик скорости.
- Привод приёмника тахограммы неисправен. Указание: - Провести синхронизацию. - Открыть выдвижное и снова закрыть. - Синхронизация происходит автоматически после закрытия выдвижного отделения. - Выполнить функциональную проверку. Указание: - После замены блока управления или датчика скорости необходимо обучить датчик скорости. |
ABS
|
ABS GLOBAL
|
BS
|
FLA
|
FR
|
GS
|
MR
|
PSM
|
WS
|
INS
|
NR
|
RS
|
SRS
|
ZHE (eber)
|
ZHE (webasto 2000)
|










