SHACMAN (SHAANXI) - не заводится двигатель
Прежде всего уточните обстоятельства возникновения неисправности, проанализируйте общее состояние автомобиля.
Проверьте, что автомобиль заправлен топливом и маслом надлежащего качества? Не устанавливалось ли дополнительное оборудование, которое не получило одобрение производителя автомобиля?
Прежде чем приступить к детальному анализу неисправности, проведите визуальный осмотр по следующему плану.
- 1. Основная электрическая цепь: состояние разъемов и надежность их соединения, наличие разрывов и скруток.
- 2. Цепь питания блока управления двигателем - ECU. В первую очередь необходимо убедится, что к этой цепи не подключено постороннее оборудование.
- 3. Заземление ECU: чистота контактов, надежность крепления клем к корпусу автомобиля.
- 4. Топливопровод: наличие перегибов и заломов, надежность и правильность соединений, отсутствие подтеков.
- 5. Основные узлы и агрегаты двигателя: общий осмотр, отсутствие внешних повреждений.
Наиболее частые причины неисправности
- 1. Аккумуляторы (недостаточный заряд).
- 2. Стартер (обрыв цепи стартера, неисправность реле, предохранитель).
- 3. Цепь системы управления двигателем (обрыв цепи питания ECU, неисправность датчика нейтрали, неисправность основного реле).
- 4. Датчик положения коленчатого вала и датчик положения распределительного вала (неисправность датчиков, обрыв цепей датчиков, несинхронность сигналов датчиков из-за нарушения работы шестерни распредвала).
- 5. Топливо (недостаточное количество, большое количество грязи или воды, неправильный тип).
- 6. Топливопровод (наличие перегибов или заломов, негерметичность).
- 7. Система подачи топлива (подсос воздуха).
- 8. Топливный инжектор (загрязнение, не полное срабатывание).
- 9. Топливный насос высокого давления (не обеспечивает требуемого давления).
- 10. Топливная рампа и система контроля давления в ней (неисправность клапана).
- 11. Блок управления двигателем - ECU.
- 12. Настройки двигателя.
Порядок действий при поиске неисправностей
- 1. Проведите общую проверку оборудования.
Внимание: Не разъединяйте топливопровод высокого давления на работающем двигателе.
При необходимости разъединения топливопровода низкого давления используйте емкость для сбора вытекающего топлива.
- 2. Включите стартер двигателя.
Внимание: Во избежание перегрева стартера, время его работы не должно быть продолжительным.
- Если стартер не заработал, проведите проверку систему запуска двигателя.
- Убедитесь, что переключатель КПП находится в положении нейтрали. Проверьте исправность датчика нейтрали путем включения стартера в резервном режиме: если стартер начнет работать - неисправен датчик нейтрали или цепь его подключения.
- Также тщательно осмотрите замок зажигания и подключаемые к нему цепи.
- 3. Подключите диагностический компьютер.
- Проведите сеанс диагностики.
- Найдите в результатах сеанса диагностики код неисправности и выясните её причину по таблице кодов.
- Если сеанс диагностики провести не удается, определите причину по сообщениям диагностического компьютера.
- 4. Проверьте топливо.
- Откройте крышку топливного бака. Проверьте количество топлива, наличие в нём грязи и воды.
- При необходимости добавьте топлива или замените его.
- 5. Осмотрите фильтры грубой и тонкой очистки топлива.
Последовательно отсоедините фильтры грубой и тонкой очистки топлива, проверьте их состояние. В случае сильно загрязнения проведите замену фильтрующих элементов.
- 6. Проверьте герметичность топливопровода низкого давления.
- На ручной помпе ослабьте болт, через который стравливают воздух (обозначен стрелкой на рисунке). Прокачайте помпой трубопровод так, чтобы образовался поток топлива через болт.
- Проверьте наличие пузырьков воздуха в потоке топлива.

В случае наличия воздуха в топливопроводе переходите к шагу 7, в противном случае - к шагу 8.
- 7. Удалите воздух из топливопровода низкого давления.
- Прокачивайте помпой трубопровод до тех пор, пока пузырьки воздуха не исчезнут. Затяните болт и еще раз прокачайте трубопровод.
- Проверьте наличие воздуха в поступающем топливе, ослабив соответствующий болт (отмечен стрелкой на рисунке).

Если поступление воздуха не прекращается, проверьте состояние соединений топливопровода и восстановите его герметичность
- 8. Удалите воздух из топливопровода высокого давления.
- Ослабьте крепления (штуцер) топливопровода на инжекторе одного из цилиндров (обозначено стрелкой на рисунке).
- Включите стартер, чтобы получить непрерывный поток топлива из топливопровода.
- Затяните крепление трубопровода.
- Запустите двигатель. Если двигатель не заработал переходите к следующему шагу.

- Вместо крепления (штуцера) топливопровода на инжекторе цилиндра можно ослабить крепление (штуцер) на топливном насосе высокого давления (обозначено стрелкой на рисунке).
Внимание. Не рекомендуется часто разбирать топливопровод высокого давления.

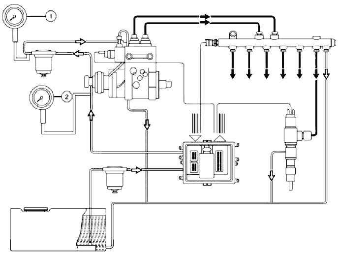
- 9. Проверьте работу топливного насоса высокого давления (ТНВД).
- Установите манометры ф и ф в трубопровод низкого давления согласно приведенной схеме.
Внимание: После установки манометров удалите воздух из топливопровода способом, описанным на шаге 7.

- Включите стартер и проследите за показаниями манометров. При исправном ТНВД давление на манометре ф должно быть больше, чем на манометре ф. В противном случае - неисправен ТНВД.
- 10. Проверьте состояние топливопровода низкого давления.
Включите стартер и проследите за показанием манометра ф. Давление не должно опускаться ниже 70 КПа. Давление ниже 70 КПа означает неисправность топливопровода, наличие засоров или прегибов.
- 11. Проверьте давление в топливной рампе.
- Подключите диагностический компьютер и включите стартер.
- Узнайте значение параметра «Actual fuel rail pressure». Оно должно быть не менее 16 МПа. При нормальном значении давления в топливной рампе переходите к Шагу 15.
- 12. Осмотрите топливный насос высокого давления.
- Отсоедините от ТНВД два топливопровода, соединяющие его с топливной рампой (штуцеры обозначены двумя стрелками на рисунке).
- Включите стартер двигателя.
- Оцените высоту фонтанчиков топлива из ТНВД. При частоте вращения 200-250 об/мин фонтанчики должны иметь высоту 4-5 см.
Высота фонтанчиков менее 4 см означает неисправность ТНВД.

- 13. Осмотрите топливную раму и клапан обратного топливопровода.
- Отсоедините обратный топливопровод от клапана (обозначен стрелкой на рисунке).
- Включите стартер двигателя и осмотрите клапан.
- Выход топлива через клапан означат неисправность клапана.

- 14. Осмотрите обратные топливопроводы инжекторов.
- Поочередно отсоедините обратные топливопроводы от инжекторов.
- Включите стартер двигателя и осмотрите инжектор.
- Выход топлива через отвод для обратного топливопровода означает неисправность инжектора.

- Аналогичным образом проведите проверку клапана обратного топливопровода топливного насоса высокого давления (обозначен стрелкой на рисунке).
