См. также:
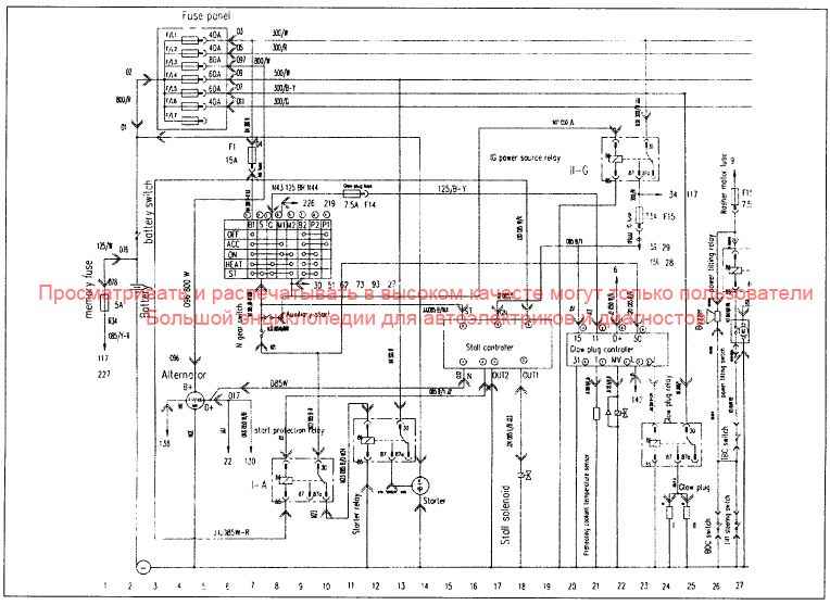
Электросхема автомобиля FOTON AUMAN в комплектации «Люкс»
Цифра перед наименованием показывает место расположения компонента на электросхеме.
- 1. Предохранитель
- 2. Аккумуляторная батарея
- 2. Выключатель аккумуляторной батареи
- 5. Панель предохранителей
- 5. Генератор
- 7. Датчик нейтрального положения КПП
- 9. Дополнительный старт
- 8-10. Реле защиты стартера
- 12. Реле стартера
- 14. Стартер
- 16. Контроллер
- 18. Электроклапан
- 20-24. Блок управления свечами предварительного прогрева
- 21. Датчик температуры системы предварительного прогрева
- 24. Реле свечей предварительного прогрева
- 24-25. Свечи предварительного прогрева
- 26. Выключатель
- 26. Звуковой сигнализатор (зуммер)
- 26. Реле подъема
- 27. Предохранитель мотора стеклоомывателя
- 28. Осушитель
- 28. Комбинированный переключатель
- 31. Датчик педали сцепления
- 31. Предохранитель выхода раздатки
- 32. Реле тормоза на выхлопе
- 32. Датчик положения акселератора
- 33. Электроклапан
- 35. Электроклапан
- 35. Колесная блокировка
- 35. Предохранитель блокировки дифференциала
- 39. Межосевая блокировка
- 40. Электроклапан нейтрального положения
- 41. Выключатель раздатки
- 43. Электроклапан включения раздатки
- 43. Электроклапан подъема
- 44. Электроклапан опускания
- 44. Реле включения раздатки
- 45. Предохранитель стоп-сигнала
- 46. Левая лампа стоп-сигнала
- 47. Выключатель стоп-сигнала
- 47. Лампа габарита
- 48. Реле стоп-сигнала
- 48. Правая лампа стоп-сигнала
- 50. Габаритный свет
- 50. Выключатель света заднего хода
- 52. Звуковой сигнал движения задним ходом
- 53. Левая лампа заднего хода
- 54. Правая лампа заднего хода
- 54. Комбинированный переключатель клаксона
- 54. Реле включения огней заднего хода
- 54. Предохранитель огней заднего хода
- 55. Реле клаксона
- 56-57. Клаксон
- 59. Мотор стеклоомывателя
- 63. Комбинированный переключатель
- 67. Мотор стеклоочистителя
- 67. Предохранитель стеклоочистителя
- 69. Модуль выключателей двери
- 71. Мотор стеклоподъемника
- 71. Предохранитель стеклоподъемника правый
- 72. Предохранитель центрального замка
- 74. Предохранитель стеклоподъемника левый
- 76. Мотор стеклоподъемника
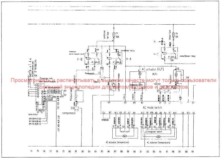
- 80. Датчик давления
- 81. Компрессор
- 85-100. Блок управления кондиционера
- 96. Мотор вентилятора кондиционера
- 96. Предохранитель радио
- 96. Реле радио
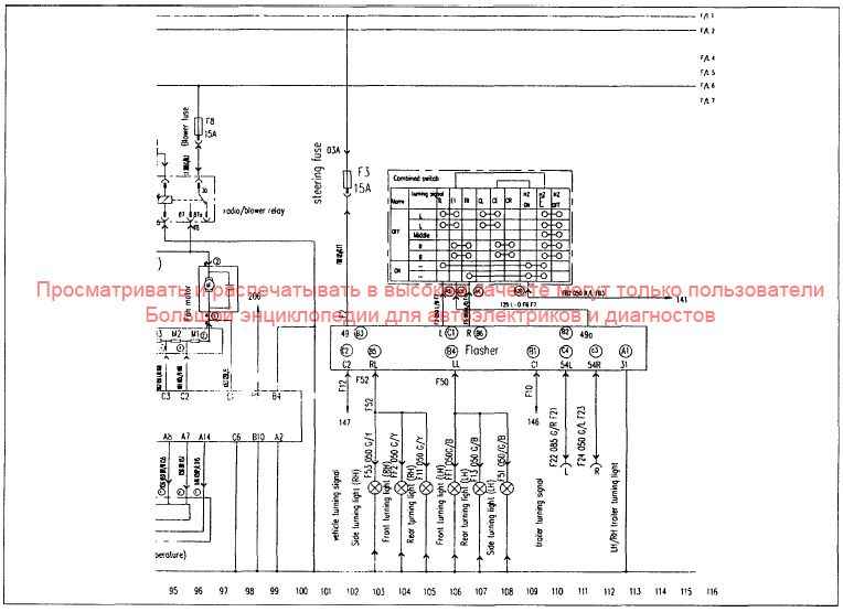
- 101. Предохранитель
- 101. Сигнал поворота
- 103. Боковой поворотник, правый
- 104. Передний поворотник, правый
- 105. Задний поворотник, правый
- 106. Передний поворотник, левый
- 107. Задний поворотник, левый
- 108. Боковой поворотник, левый
- 104-111. Комбинированный выключатель сигналов поворотов
- 109. Сигнал поворотов прицепа
- 113. Сигнал поворотов прицепа левый и правый
- 119. Индикатор безопасности
- 120. Сигнальный индикатор АБП
- 121. Сигнальный индикатор защелки кабины
- 122. Сигнальный индикатор пониженной передачи
- 122. Сигнальный индикатор сцепления
- 122. Сигнальный индикатор центральной смазки
- 123. Сигнальный индикатор закупорки воздушного фильтра
- 124. Сигнальный индикатор уровня жидкости рулевого управления
- 125. Сигнальный индикатор ручного тормоза
- 125. Сигнальный индикатор сигнализации
- 126. Сигнальный индикатор неисправности тормозов
- 128. Сигнальный индикатор блокировки осевого дифференциала
- 129. Сигнальный индикатор блокировки колесного дифференциала
- 129. Сигнальный индикатор включения раздатки
- 131. Сигнальный индикатор зарядки батареи
- 133-140. Микропроцессор
- 134. Датчик уровня топлива
- 135. Датчик температуры охлаждающей жидкости
- 136. Датчик уровня охлаждающей жидкости
- 137. Подсветка приборной панели
- 139. Тахометр
- 141. Индикатор безопасности
- 142. Индикатор включения свечей подогрева
- 144. Индикатор включения тормоза на выхлопе
- 145. Индикатор включения дальнего света фар
- 146. Индикатор включения ближнего света фар
- 147. Индикатор включения поворотов прицепа
- 148. Индикатор включения поворотов автомобиля
- 149. Индикатор включения передних противотуманных фар
- 150. Индикатор включения задних противотуманных фар
- 151. Датчик давления масла
- 152. Датчик давления воздуха в переднем мосту
- 152. Датчик давления воздуха в заднем мосту
- 157-166. Реле показания скорости
- 165. Датчик скорости движения
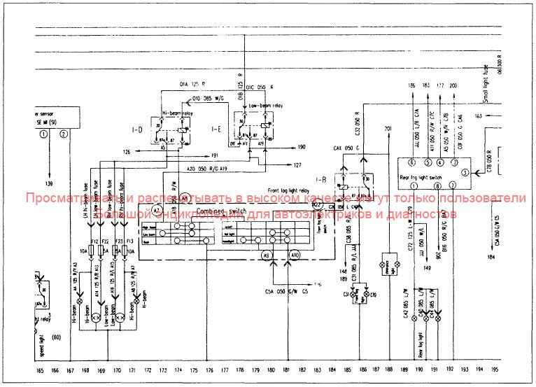
- 168. Лампа дальнего света
- 168. Предохранитель дальнего света, левая сторона
- 168. Лампа ближнего света, левая сторона
- 168. Предохранитель ближнего света, левая сторона
- 170. Лампа ближнего света, правая сторона
- 170. Предохранитель ближнего света, правая сторона
- 171. Лампа дальнего света
- 171. Предохранитель дальнего света, правая сторона
- 174. Реле дальнего света фар
- 178. Реле ближнего света фар
- 172-184. Комбинированный переключатель
- 181. Реле передних противотуманных фар
- 188-192. Выключатель задних противотуманных фар
- 190-191. Лампы задних противотуманных фар
- 197. Лампа левого верхнего габарита
- 199. Лампа левого габарита кабины
- 199. Лампа правого габарита кабины
- 200. Левый передний малый фонарь
- 201. Правый передний угловой фонарь
- 202. Левый передний габарит
- 202. Правый передний габарит
- 203. Левый задний малый фонарь
- 204. Правый задний малый фонарь
- 205. Левый задний габарит
- 206. Правый задний угловой фонарь
- 206. Левый средний габарит
- 207. Правый средний габарит
- 208. Лампа правого верхнего габарита
- 209-218. Освещение кабины
- 211. Дверной выключатель на стороне пассажира
- 217-218. Подсветка ступенек
- 220. Подсветка прикуривателя
- 225. Прикуриватель
- 229. Предохранитель магнитолы
- 227. Динамики левые
- 229. Динамики правые









