Подписчикам
"Большой энциклопедии
для автоэлектриков
и диагностов"
доступно 52 гиг. информации
по спецтехнике
KOMATSU
Электросхемы и коды неисправностей дробилки Komatsu BR380JG
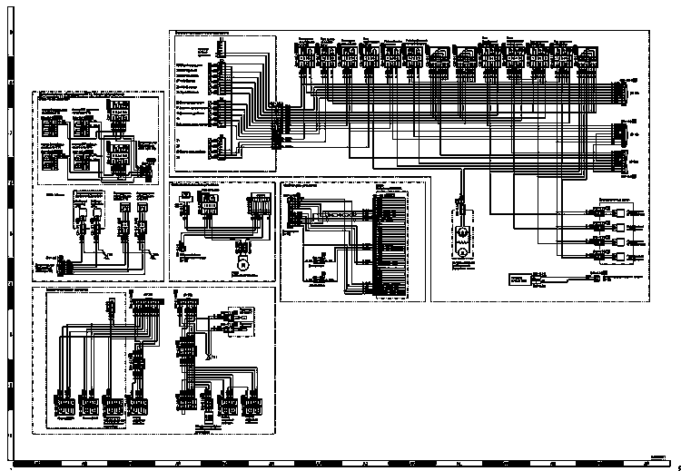
Принципиальная электрическая схема (1/3)
Принципиальная электрическая схема (2/3)
Принципиальная электрическая схема (3/3)
Электрическая схема системы контрольной панели (схема М)
Данная электрическая схема получена в результате выделения из общей электрической схемы системы контрольной панели, системы предпускового подогрева двигателя/запуска двигателя/зарядки аккумуляторной батареи и системы ночного освещения
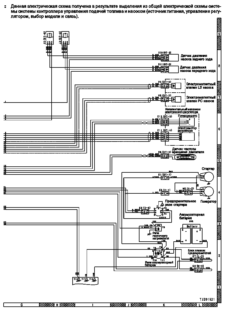
Электрическая схема системы управления регулятором подачи топлива (контроллер насоса и управления подачей топлива) (схема G)
Данная электрическая схема получена в результате выделения из общей электрической схемы системы системы контроллера управления подачей топлива и насосом (источник питания, управление регулятором, выбор модели и связь)
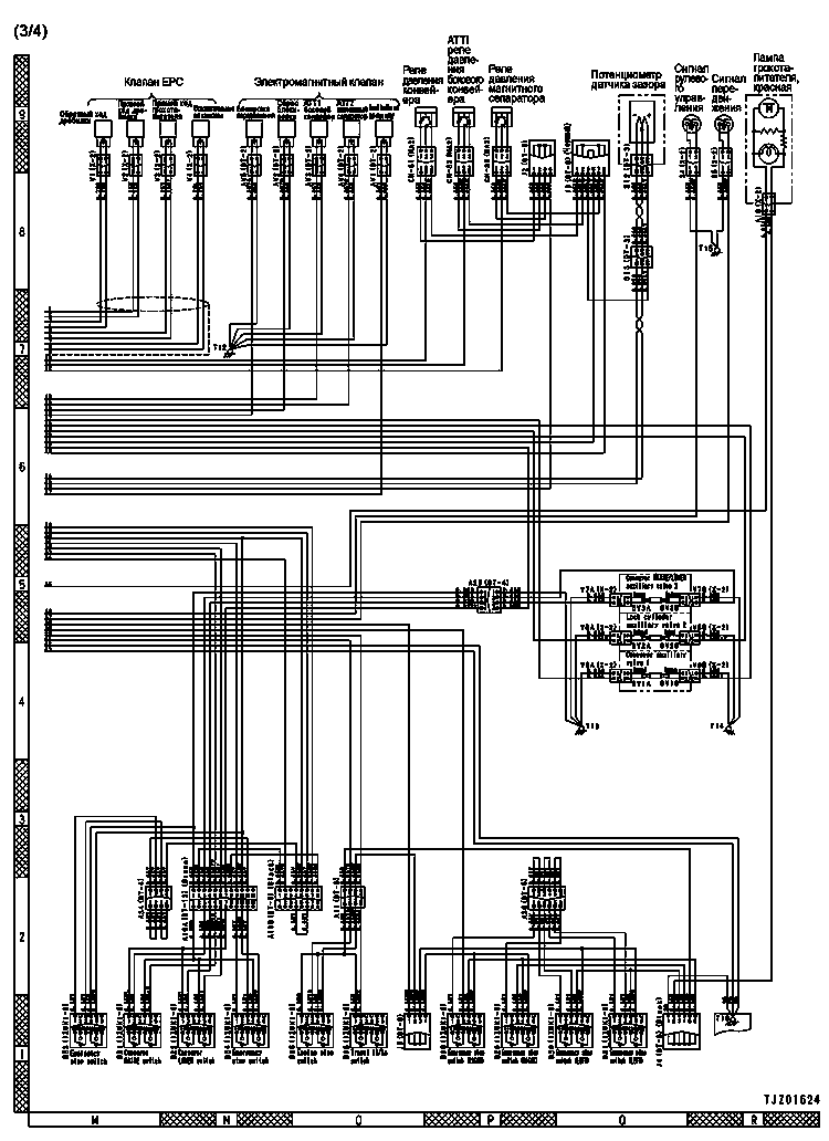
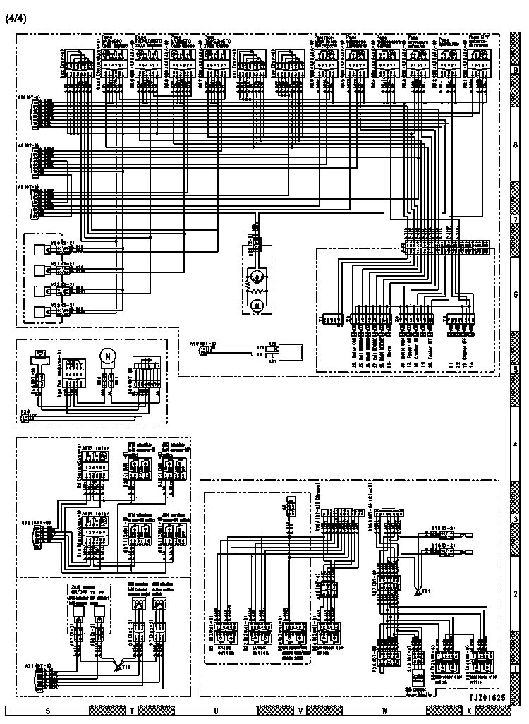
Электрическая схема системы управления рабочим оборудованием (контроллер насоса и управления подачей топлива) (схема W)
(1 /4 )
Данная электрическая схема получена в результате выделения из общей электрической схемы системы контроллера насоса и управления подачей топлива
(управление рабочим оборудованием)
(2/4)
(3/4)
(4/4)
Коды неисправностей
ДИАГНОСТИКА НЕИСПРАВНОСТЕЙ ПРИ ИНДИКАЦИИ КОДА ОШИБКИ
ЭЛЕКТРООБОРУДОВАНИЯ И КОДА НЕИСПРАВНОСТИ МЕХАНИЧЕСКОЙ СИСТЕМЫ
- E201 Обрыв в цепи электромагнитного клапана прямого хода основного ленточного конвейера
- E202 Короткое замыкание в электромагнитном клапане прямого хода основного конвейера
- E203 Обрыв в цепи электромагнитного клапана EPC прямого хода дробилки
- E204 Короткое замыкание в электромагнитном клапане EPC прямого хода дробилки
- E205 Обрыв в цепи электромагнитного клапана EPC обратного хода дробилки
- E206 Короткое замыкание в электромагнитном клапане EPC обратного хода дробилки
- E207 Обрыв в цепи электромагнитного клапана EPC прямого хода грохота-питателя
- E208 Короткое замыкание в электромагнитном клапане EPC прямого хода грохота-питателя
- E211 Короткое замыкание в реле электронагревателя впускного воздуха
- E212 Обрыв в цепи реле обнаружения непредусмотренного давления
- E213 Обрыв в цепи электромагнитного клапана EPC привода вспомогательных механизмов
- E214 Короткое замыкание в электромагнитном клапане EPC привода вспомогательных механизмов
- E217 Обрыв цепи, короткое замыкание или непредусмотренный входной сигнал в цепи выбора модели
- E218 Обрыв цепи в сигнальной линии S-NET
- E222 Короткое замыкание в электромагнитном клапане LS-EPC
- E223 Короткое замыкание в электромагнитном клапане LS-EPC
- E224 Неисправность в датчике давления насоса переднего хода
- E225 Неисправность в датчике давления насоса заднего хода
- E226 Неисправность в источнике питания датчика давления
- E227 Неисправность датчика частоты вращения двигателя
- E232 Короткое замыкание в электромагнитном клапане PC-EPC
- E233 Обрыв в цепи электромагнитного клапана PC-EPC
- E234 Короткое замыкание в бесконтактном реле проблескового маячка
- E235 Короткое замыкание в реле звукового сигнала
- E240 Короткое замыкание в реле обнаружения непредусмотренного давления
- E241 Обрыв в цепи электромагнитного клапана обратного хода основного ленточного конвейера
- E242 Короткое замыкание в электромагнитном клапане обратного хода основного конвейера
- E243 Обрыв в цепи электромагнитного клапана возврата в исходное состояние блокировочного цилиндра
- E244 Короткое замыкание в электромагнитном клапане возврата в исходное состояние блокировочного цилиндра
- E246 Короткое замыкание в реле выдвижения блокировочного цилиндра
- E247 Обрыв в цепи электромагнитного клапана втягивания штока блокировочного цилиндра
- E248 Короткое замыкание в электромагнитном клапане втягивания штока блокировочного цилиндра
- E249 Обрыв в цепи реле магнитного сепаратора
- E250 Короткое замыкание в реле магнитного сепаратора
- E301 Обрыв в цепи кнопки остановки двигателя
- E302 Короткое замыкание в цепи кнопки включения основного ленточного конвейера
- E303 Обрыв в цепи кнопки выключения основного ленточного конвейера
- E304 Короткое замыкание в цепи кнопки включения дробилки
- E305 Обрыв в цепи кнопки выключения дробилки
- E306 Неисправность потенциометра регулятора
- E308 Неисправность дискового регулятора подачи топлива
- E315 Короткое замыкание в выходной цепи реле аккумуляторной батареи
- E316 Сбой в работе электромотора регулятора
- E317 Обрыв фаз A и B электромотора регулятора
- E318 Короткое замыкание фаз A и B электромотора регулятора
- E320 Короткое замыкание в цепи кнопки включения грохота-питателя
- E321 Обрыв в цепи кнопки выключения грохота-питателя
- E322 Короткое замыкание в цепи кнопки ПОДЪЕМА конвейера
- E323 Короткое замыкание в цепи кнопки ОПУСКАНИЯ конвейера
- E331 Неисправность потенциометра датчика зазора
- E332 Короткое замыкание в цепи кнопки включения рабочего оборудования
- E333 Обрыв в цепи кнопки включения рабочего оборудования
- E334 Короткое замыкание в цепи кнопки включения магнитного сепаратора
- E335 Обрыв в цепи кнопки выключения магнитного сепаратора
- A000N1 Непредусмотренное значение частоты вращения двигателя на высоких холостых оборотах
- A000N2 Непредусмотренное значение частоты вращения двигателя на низких холостых оборотах
- AA10NX Засорение воздухоочистителя
- AB00KE Очень низкое зарядное напряжение
- B@BAZG Очень низкое давление масла в двигателе
- B@BAZK Очень низкий уровень масла в двигателе
- B@BCNS Перегрев охлаждающей жидкости двигателя
- B@BCZK Очень низкий уровень охлаждающей жидкости в радиаторе
- B@HANS Перегрев масла гидросистемы
ДИАГНОСТИКА НЕИСПРАВНОСТЕЙ ЭЛЕКТРООБОРУДОВАНИЯ (РАЗДЕЛ E)
- Е-1 Двигатель не запускается (двигатель не проворачивается)
- Е-2 Двигатель останавливается во время работы
- Е-3 Нестабильная скорость двигателя (неустойчивые обороты двигателя)
- Е-4 Двигатель не останавливается
- Е-5 Все рабочее оборудование внезапно останавливается
- Е-6 Не работает устройство автоматического подогрева двигателя
- Е-7 Не работает предпусковой подогреватель
- Е-8 Сразу после запуска двигателя загорается красный индикатор аварийной остановки
- Е-9 На контрольной панели нет никакой индикации
- Е-10 На контрольной панели не воспроизводятся некоторые индикаторы
- Е-11 Во время работы контрольная лампа уровня топлива горит красным цветом
- Е-12 Неправильные показания указателя температуры охлаждающей жидкости двигателя
- Е-13 Неправильные показания указателя уровня топлива
- Е-14 Неправильные показания указателя температуры масла гидросистемы
- Е-15 Не выполняется переключение режимов работы (передвижения, эксплуатации и проверки)
- Е-16 Не переключаются режимы регулировки зазора дробилки
- Е-17 Не изменяется направление вращения щек дробилки
- Е-18 Управление передвижением не может выполняться с пульта дистанционного управления
- Е-19 Грохот-питатель не включается и не выключается с пульта дистанционного управления
- Е-20 Дробилка не может включаться и выключаться с пульта дистанционного управления
- Е-21 Не работают кнопки контрольной панели
- Е-22 Не выполняется управление работой дробилки с помощью ручного переключателя ПРЯМОГО/ОБРАТНОГО НАПРАВЛЕНИЯ, расположенного на контрольной панели
- Е-23 Не выполняется управление работой конвейера с помощью расположенного на контрольной панели ручного переключателя ПЕРЕДНИЙ ХОД/ОБРАТНЫЙ ХОД
ДИАГНОСТИКА НЕИСПРАВНОСТЕЙ ГИДРАВЛИЧЕСКОЙ
И МЕХАНИЧЕСКОЙ СИСТЕМ (РАЗДЕЛ H)
- Н-1 Низкая скорость или мощность рабочего оборудования и медленное передвижение
- Н-2 Частота вращения двигателя значительно снижается или двигатель глохнет
- Н-3 Не действуют системы рабочего оборудования и передвижения
- Н-4 Гидравлический насос издает необычные звуки
- Н-5 Неудовлетворительная работа или замедленный отклик системы точного управления
- Н-6 Не работает ленточный конвейер
- Н-7 Низкая скорость или низкая мощность конвейера
- Н-8 Не работает дробилка
- Н-9 Низкая скорость или низкая мощность дробилки
- Н-10 Не работает грохот-питатель
- Н-11 Грохот-питатель подает неравномерно (низкая частота вибрации)
- Н-12 Не работает магнитный сепаратор
- Н-13 Низкая скорость ленты магнитного сепаратора
- Н-14 Не работает боковой конвейер
- Н-15 Низкая скорость или низкая мощность бокового конвейера
- Н-16 Основной конвейер и боковой конвейер не перемещаются вверх и вниз
- Н-17 Во время передвижения машина отклоняется от прямого курса
- Н-18 Низкая скорость передвижения
- Н-19 Машина плохо управляется или низкая мощность гидроусилителя рулевого управления
- Н-20 Не работает гидромотор передвижения (только с одной стороны)
- Н-21 При нажатии кнопки передвижения на пульте дистанционного управления машина не передвигается
- Н-22 Не выполняется регулировка зазора дробилки
ДИАГНОСТИКА НЕИСПРАВНОСТЕЙ ДВИГАТЕЛЯ
(РАЗДЕЛ S)
- S-1 Плохой запуск (запуск всегда занимает много времени)
- S-2 Двигатель не запускается
1) Двигатель не проворачивается
2) Двигатель проворачивается, однако выхлопные газы не выходят (нет впрыска топлива)
3) Выхлопные газы выходят, но двигатель не запускается (при наличии впрыска топлива)
- S-3 Двигатель развивает обороты неравномерно (плохо развивает обороты)
- S-4 Двигатель останавливается во время работы.
- S-5 Двигатель работает неравномерно (неустойчивые обороты)
- S-6 Недостаточная выходная мощность двигателя (отсутствие мощности)
- S-7 Выхлопные газы имеют черный цвет (неполное сгорание топлива)
- S-8 Повышенный расход масла (или выхлопные газы голубого цвета)
- S-9 Масло быстро загрязняется
- S-10 Чрезмерный расход топлива
- S-11 Масло в охлаждающей жидкости или охлаждающая жидкость расплескивается, или ее уровень снижается
- S-12 Загорается контрольная лампа давления масла (падение давления масла)
- S-13 Возрастает уровень масла (в масле обнаруживается охлаждающая жидкость, топливо)
- S-14 Температура охлаждающей жидкости становится очень высокой (перегрев)
- S-15 Раздается посторонний шум
- S-16 Чрезмерная вибрация
Полную информацию о дробилке, а также полную
расшифровку по кодам неисправностей -
вы можете прочитать в нашей










