См. также:
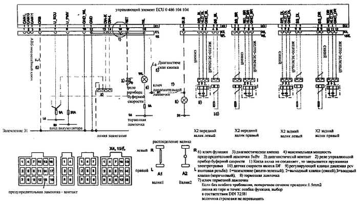
Тормозная система ABS HOWO
ABS (Anti-lock braking system) является электронной регулированной системой контроля и управление скоростью во время торможении. Его задача: обеспечения плавного торможения, особенно на скользкой догоге, а также поддерживания поперечного тягового усилия.
ABS через обычную тормозную систему может повысить действительную безопасность при вождении.
Принцип системы ABS: Кольца зубов маховика и датчик преобразуют наведенный сигнал в напряжения и передают этот сигнал в блок электронного управления ECU. ECU получает и обработывает сигналы от датчиков и передает сигнал электромагнитному клапану, который управляет тормозными камерами.
Датчик передней оси

Датчик задней оси

WABCO
KNORR
Проверка системы ABS производится при экстренном торможении на скорости больше 40 км\час.
Если при торможении вы увидели тяговой след или следы торможения - то ABS на этом колесе или колесах - не работает. Об этом еще и извещает лампочка на щитке приборов.


