Заводские установки Eberspächer на Mercedes Benz
D1LP compact / D3LP compact Mercedes Benz Actros
25 1961 05 00 00, 25 1977 01 00 00, 25 1962 05 00 00, 25 1981 01 00 00
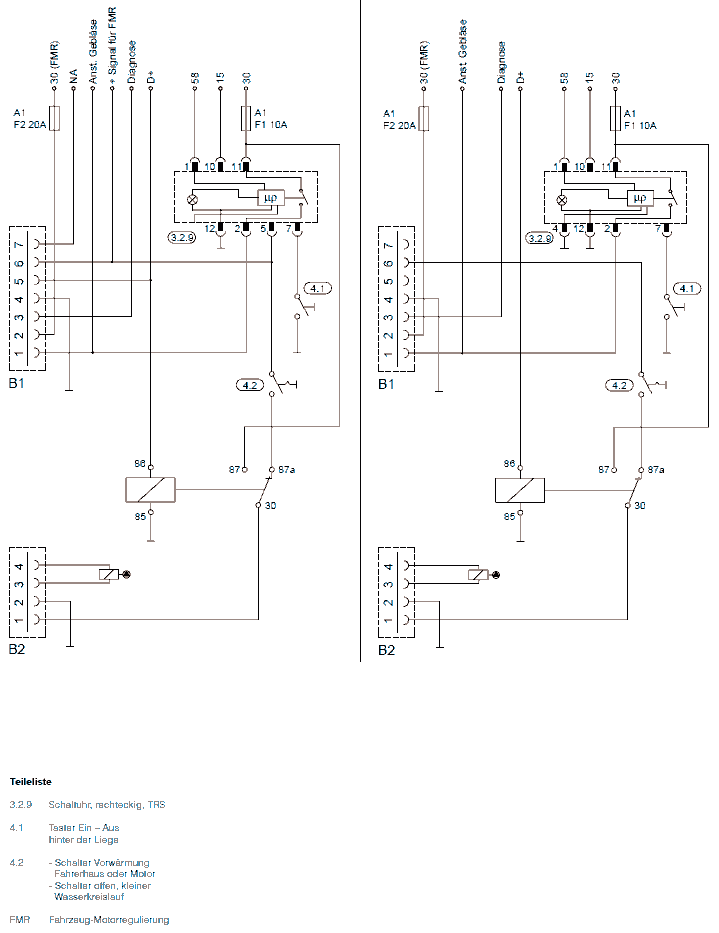
25 1961 05
25 1962 05

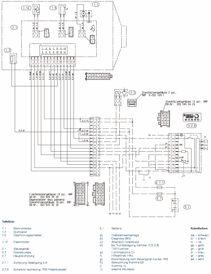
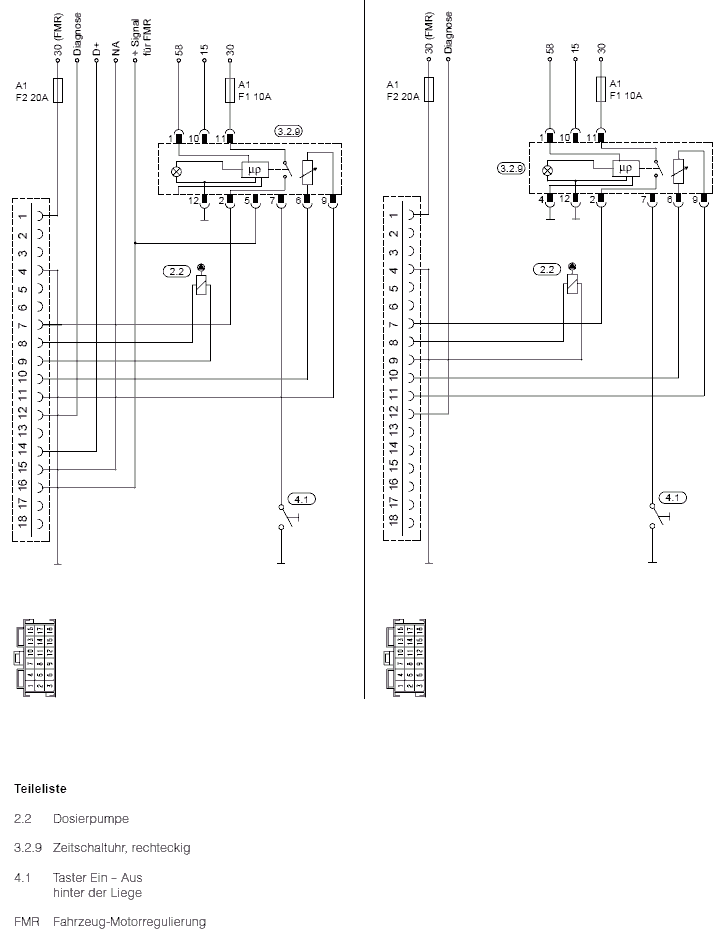
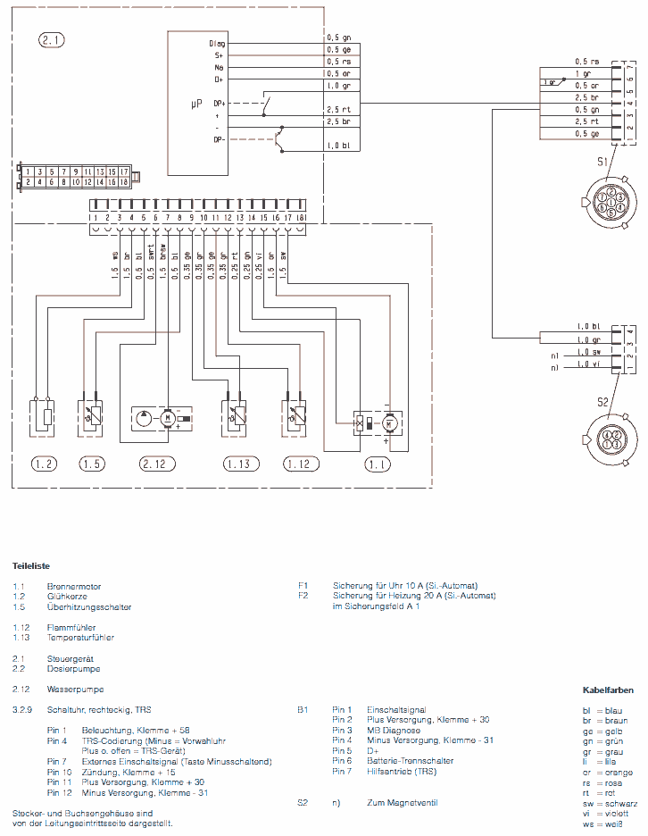
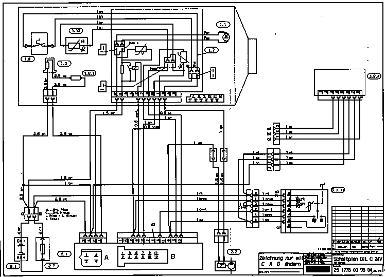
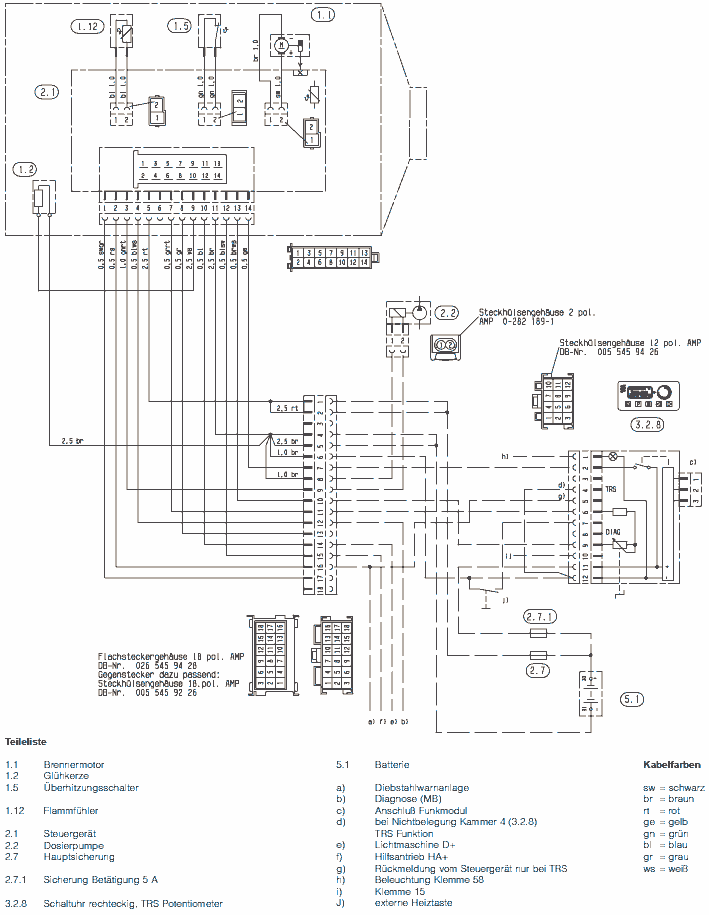
Schaltplan für TRS-Fahrzeuge Schaltplan für Fahrzeuge ohne TRS

D9W Mercedes Benz Actros
25 1963 05 00 00, 25 1964 05 00 00, 25 1963 01 00 00, 25 2016 05 00 00, 25 2017 05 00 00, 25 2016 01 00 00
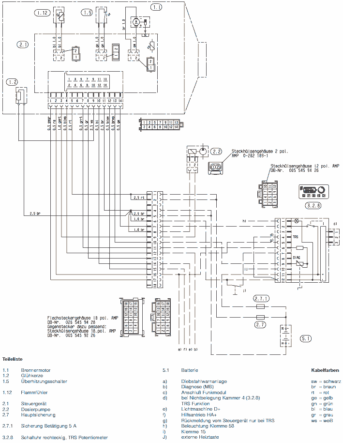
25 2016 05
25 2017 05

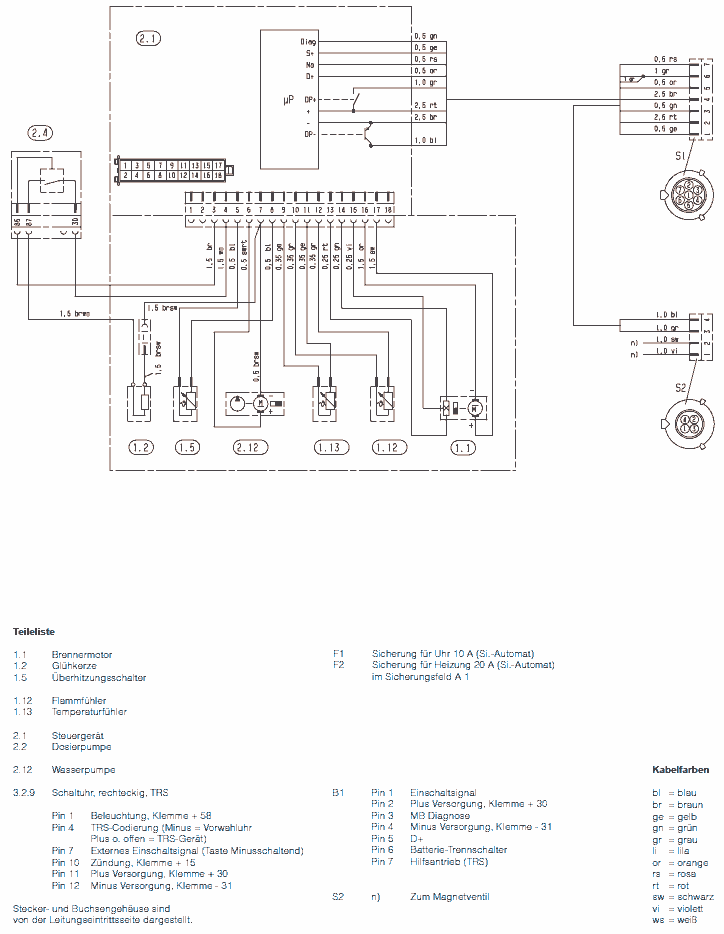
Schaltplan für TRS-Fahrzeuge Schaltplan für Fahrzeuge ohne TRS

25 1963 05
25 1964 05

Schaltplan für TRS-Fahrzeuge Schaltplan für Fahrzeuge ohne TRS

D1LP compact Mercedes Benz ATEGO
25 1961 05 00 00, 25 1977 01 00 00
25 1961 05 00 00

Schaltplan für Fahrzeuge ohne TRS

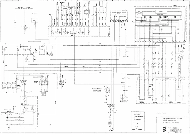
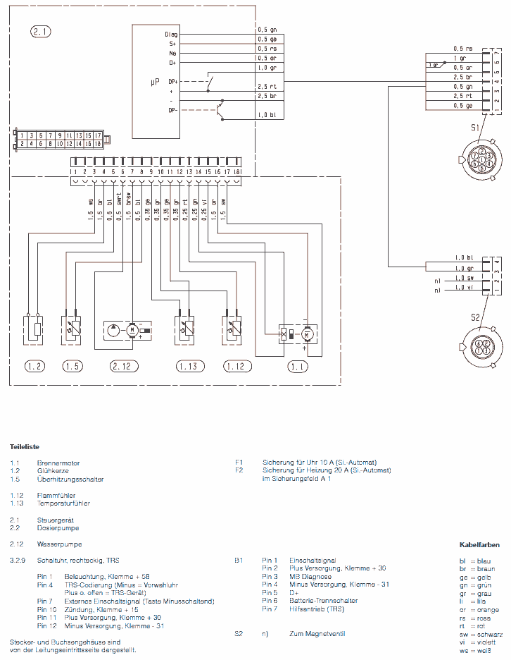
D5W Mercedes SK, MK
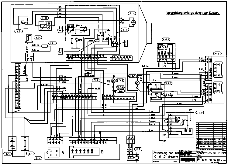
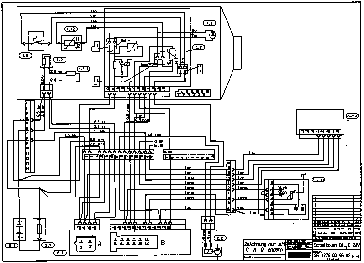
251776009602
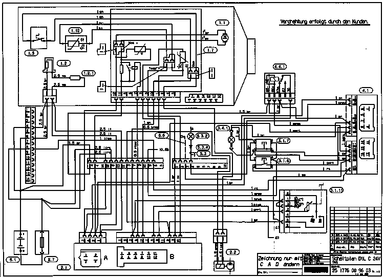
251776009603
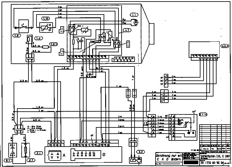
251776009604



