Схемы Signal, warning and operating displays автобусов MB Tourismo Е5
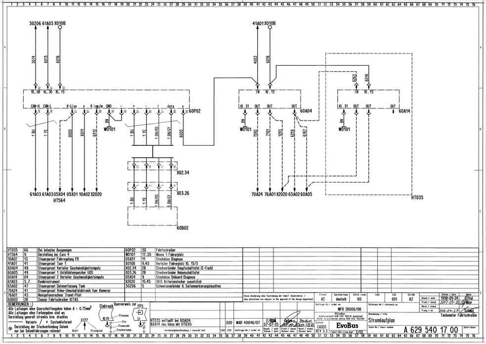
Circuit diagram, speedometer, tachograph MTCO

05X01 Diagnostic socket
05X04 Onboard diagnosis socket
10A02 Drive control FR control unit
30Z06 Side-marker lamps weld joint 6
41A01 Control unit door 1
60A04 Speed pulse distributor control unit
60A05 Accident data memory (UDS) control unit 1
60A14 No match found
60B02 KITAS tachograph sensor
60P02 Tachograph display instrument
61A03 Instrument cluster
65A02 Tank data registration control unit
70A24 Video switchover electronics control module for cameras
76A01 Travel - Pilot navigation computer
HT035 Valid for assigned outputs
HT564 Display for Euro 4 vehicles
W0101 Ground 1 driver position
X010B Driver position tml. 15/3 distributor
X02.3 No match found
X03.2 No match found
X2020 Additional IBIS criteria connector
Все схемы в высоком качестве доступны в Update 117
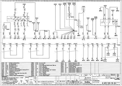
Circuit diagram, combination cluster

Circuit diagram for switchable reversing signal

Circuit diagram for displays and instruments
