Схемы двигателя и трансмиссии автобусов MB Tourismo Е5
ELECTROTECHNICAL CIRCUIT DIAGRAM / MOTOR

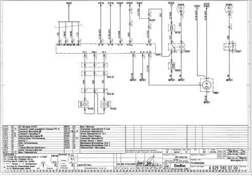
10A01 Engine control MR control unit
10B06 Engine oil pan oil level sensor
10B08 Engine coolant temperature sensor
10B13 Fuel temperature sensor
10B14 Crankshaft position sensor
10B15 Cylinder 1 TDC sensor
10B16 Oil pressure/temperature sensor
10B17 Charge-air pressure/temperature sensor
10Y11 Cylinder 1 plug-in pump
10Y12 Cylinder 2 plug-in pump
10Y13 Cylinder 3 plug-in pump
10Y14 Cylinder 4 plug-in pump
10Y15 Cylinder 5 plug-in pump
10Y16 Cylinder 6 plug-in pump
10Z08 Engine control weld joint
310Z09 Engine control weld joint
410Z10 Engine control weld joint
510Z11 Engine control weld joint
610Z12 Engine control weld joint
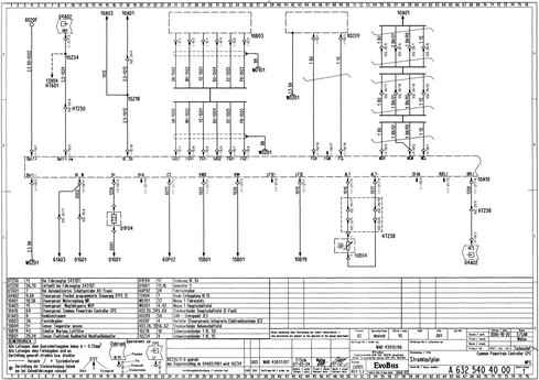
717R05 SCR metering unit diffusor heater resistor
17Y03 SCR exhaust aftertreatment AdBlue metering valve
17Z04 SCR exhaust aftertreatment weld joint
417Z05 SCR exhaust aftertreatment weld joint
570B05 Loudspeaker 5 Right
70B06 Loudspeaker 6 Right
70B07 Jump seat microphone
X0514 Start/stop in engine compartment connector
X521 No match found
Все схемы в высоком качестве доступны в Update 117
ELECTROTECHNICAL CIRCUIT DIAGRAM / START

Circuit diagram, FMR

Circuit diagram, PLD

Circuit diagram for FR drive control

Circuit diagram for heating system fuel filter

Circuit diagram for heating system heating oil filter

STROMLAUFPLAN CPC (MPS) BL.0,1-2

STROMLAUFPLAN MOTORREGELUNG MR

STROMLAUFPLAN MOTORSENS. KUEHLWASSER LUF

STROMLAUFPLAN STARTSPERRE HECKKLAPPE

STROMLAUFPLAN MOTORKUEHLANLAGE

Driving regulator (FR) wiring diagram

Exhaust gas treatment system SCR frame module wiring diagram

MR-2 engine controller wiring diagram

AdBlue pipeline heater wiring diagram

ELECTROTECHNICAL CIRCUIT DIAGRAM TRANSM
