Тренинг персонала по топливной системе EDC7 MAN

Содержание
EDC7, общая информация
EDC7, нейтрализация ОГ
- Система Common Rail EDC 7
- Структура системы Common Rail
- Техника безопасности
- Соблюдение чистоты при работе с системами впрыскивания CR
- Схема подачи топлива двигателя D2066 (Евро3)
- Схема подачи топлива двигателей D0834/D0836 (Евро3/4)
- Схема подачи топлива двигателя D2876 (Евро3)
- Схема подачи топлива двигателей D20 / D26 (Евро 4/5)
- Топливный центр Kraftstoff-Service-Center (KSC)
- Компоненты в контуре низкого давления
- Насос высокого давления
- Демонтаж насоса высокого давления
- Установка насоса высокого давления
- Дозирующий элемент ZME Y332 28
- Энергоаккумулятор высокого давления (Rail)
- Двухступенчатый редукционный клапан (DBV)
- Датчик давления в Rail B487
- Инжектор от Y341 до Y346
- Демонтаж инжектора
- Установка инжектора
- Датчики частоты вращения коленчатого вала
- Датчик давления наддувочного воздуха B125
- Датчик давления масла B104
- Датчик давления топлива B377
- Термодатчик охлаждающей жидкости B124
- Термодатчик наддувочного воздуха B123
- Пропорциональный клапан с двухступенчатым наддувом Y340
- Электронный блок
- Система рециркуляции ОГ
- Система AGR без регулирования (Euro3)
- Система AGR с регулированием (Euro4)
- EVB-EC
- OBD
- PM-Kat (PM= Particulate Matter = тонкая пыль)
- Датчик температуры ОГ (B561)
- Датчик относительного давления ОГ B683
- ДИАГНОСТИКА ЭЛЕКТРИКИ
- Клеммная коробка
- Описание системы/руководство по осуществлению ремонтных работ T18
- Указание к программе поиска неполадок SPN 3752
- Запоминающее устройство неполадок, код неполадок (SPN)
- Список кодов неполадок SPN
- ДИАГНОСТИКА С ПОМОЩЬЮ MAN-CATS® II
- Меню MAN-cats® II
- Мониторинг Температуры
- Мониторинг Давление
- Мониторинг частоты вращения двигателя
- Monitoring Motorwerte (Мониторинг Значения двигателя)
- Мониторинг цилиндров, регулирование плавности хода
- Мониторинг Статус инжекторов
- Мониторинг Информация о статусе
- Мониторинг Команды и сообщения процессора FFR
- Свободный мониторинг
- Проверка компрессии
- Тест разгона
- ПОИСК НЕПОЛАДКИ EDC7 COMMON-RAIL, ПРАКТИЧЕСКАЯ ЧАСТЬ
- Основная информация
- Каталог вопросов в случае возникновения проблем
- Действия при определенных записях о неполадках EDC 7
- Самые распространенные неполадки и указания по их устранению
- Запись в память запоминающего устройства SPN190 55
- Действия в случае, если двигатель плохо заводится („Motor startet schlecht“)
- Действия в случае, если двигатель не заводится („Motor startet nicht“)
- Действия при избыточном давлении в топливном баке - „Überdruck im Kraftstofftank“
- Действия при жалобах на то, что при работе мотора образуется белый дым - "Motor raucht weiß"
- Действия при жалобах на то, что при работе мотора образуется черный дым - "Motor raucht schwarz"
- Действия при жалобах на наличие детонационного стука двигателя - "Motor nagelt"
- Действия при жалобах на наличие стука в двигателе -"Motor klopft"
- Действия при жалобах на неравномерный ход двигателя - "Unrunder Motorlauf"
- Common Rail – неполадки дросселя Rail
- Масло в жгуте проводов инжектора
- ПОИСК НЕПОЛАДОК В СИСТЕМЕ ПОНИЖЕННОГО ДАВЛЕНИЯ
- Гидравлические проверки EDC7 Common Rail
- Общая схема подачи топлива ТНВД высокого давления со смазкой маслом
- Общая схема подачи топлива Насос высокого давления, смазываемый топливом
- Проверка цикла пониженного давления
- Проверка перепускного клапана
- Действия при установке насоса высокого давления, смазываемого маслом
- Действия при установке ТНВД, смазываемого топливом
- Как уже было указано, в двигателях начиная с EURO 4 устанавливается ТНВД с топливной смазкой. Эти насосы обладают внутренним частичным горячим контуром. Поэтому проверка перепускного клапана на подключении „OUT», как описано выше, не возможна.
- Проверка клапана поддержания напора
- Поиск неполадки в системе высокого давления
- Проверка величины утечки
- Замеры общей величины утечки
- Последовательность действий при проверке D28 CR
- Последовательность действий при проверке D20 CR
- Последовательность действий при проверке двигателя D08 CR
- Замеры и их анализ для всех типов двигателей
- Проверить герметичность клапана ограничения давления
- Замеры величины утечки топлива по отдельным инжекторам D20 /D08
- Замеры величины утечки отдельных цилиндров D28
- Замеры объема подачи насоса высокого давления
- ВЫСОКИЙ РАСХОД ТОПЛИВА, НЕДОСТАТОЧНАЯ МОЩНОСТЬ
- Основное
- Действия в случае рекламации
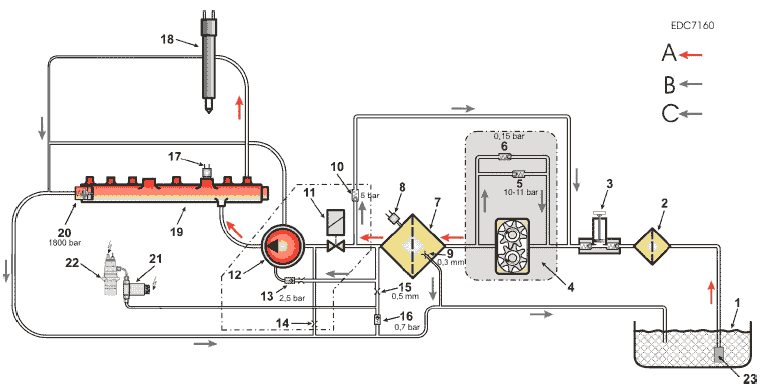
Система Common Rail EDC 7

Система Common Rail является системой впрыскивания с аккумулированием объема. В сравнении с прежней системой впрыскивания дизельного топлива процесс нагнетания давления и впрыскивание не зависят друг от друга. Таким образом, система Common Rail обеспечивает большую гибкость при
впрыскивании. На этой основе удалось разработать динамичные и экономичные двигатели с ровным ходом.
Внимание:
Для двигателей CR разрешается использовать только топливо согласно Европейскому нормативу EN 590! Использование альтернативного топлива или добавок к нему запрещено! В исключительных случаях после переговоров с ответственным специализированным отделом разрешается использование
топлива FAME.
Структура системы Common Rail
Из топливного бака топливо подается через сепарфильтр на фильтр грубой очистки, а с топливоподающего шестеренчатого насоса и главного фильтра - к насосу высокого давления с регулированием расхода, где нагнетается давление, необходимое для впрыскивания.
Для этого дозирующий элемент „MProp“ (количественный пропорциональный клапан) ограничивает количество топлива, подаваемого на насос высокого давления, и за счет этого производительность насоса увеличивается.
В насосе высокого давления осуществляется подача дизельного топлива в Rail (аккумулятор давления) в таком количестве, пока не будет достигнуто желаемое давление топлива. В насосе топливо постоянно находится под необходимым для впрыскивания давлением, величина которого согласована с рабочим состоянием двигателя (максимум 1600 бар).
В будущем давление в системе будет достигать до 1800 бар.
По трубопроводам высокого давления, Rail, аккумулятор давления, связан с инжекторами, управляемыми магнитными клапанами, впрыскивающими определенное количество топлива в камеру сгорания двигателя в соответствии с величиной, задаваемой водителем.
Значение, задаваемое водителем, передается на процессор управления автомобилем с помощью датчика хода педали акселератора. Благодаря этому электронный блок EDC получает данные по M-CAN и регистрирует данное рабочее состояние, производит расчет необходимого количества топлива на
основе универсальных характеристик, давление топлива, продолжительность и начало впрыскивания. Открытие и закрытие магнитного клапана в инжекторе определяют начало и конец впрыскивания.
Электронный блок EDC контролирует давление в аккумуляторе давления с помощью датчика давления.
В случае неполадки клапан ограничивает давление в аккумуляторе давления,
примерно, на уровне около 800 бар таким образом, чтобы обеспечить возможность аварийного хода.
Таким образом, существенным признаком системы впрыскивания CR является отделение процессов нагнетания давления и впрыскивания из аккумулятора давления.
Такая система впрыскивания с регулирование по времени позволяет преодолеть типичные ограничения обычных систем с кулачковым управлением.
Увеличивающееся среднее давление впрыскивания, а также начало впрыскивания могут выбираться независимо от работы двигателя, т.е. в широком диапазоне независимо от работы двигателя.
Контроль гидравлических компонентов системы впрыскивания осуществляется с помощью электронного блока EDC 7, чьи датчики постоянно регистрируют данные в отношении двигателя или работы автомобиля. Так, например, датчик давления в Rail, электронный блок и насос высокого давления с количественным регулированием образуют цепь автоматического регулирования для получения
желаемого давления в Rail.
Остальные датчики, например, датчик температуры охлаждающей жидкости, датчик температуры воздуха наддува или датчик атмосферного давления помогают двигателю адаптироваться к меняющимся условиям внешней среды.
Электронный блок EDC 7 закреплен на двигателе с левой стороны по ходу движения автомобиля. Электронный блок соединен кабелями с кабельным колодцем на двигателе и инжекторами.
Опасность получения ранений!
Струя топлива может повредить кожу.
При распылении топлива имеется опасность возникновения пожара.
Никогда не откручивайте винтовые соединения со стороны высокого давления топлива при работающем двигателе и работающей системе Common Rail (топливопровод высокого давления от насоса высокого давления к Rail, на Rail и на головке цилиндра к инжектору)!
Не стойте рядом с работающим двигателем!
При работающем двигателе трубопроводы постоянно находятся под высоким давлением, которое может достигать 1.600 бар.
Перед тем, как открутить винтовые соединения, необходимо подождать минимум одну минуту, пока давление не снизится. В случае необходимости проверить процесс снижения давления в Rail с помощью MAN-Cats.
Особые указания в отношении лиц с кардиостимулятором! При соблюдении условий эксплуатации двигателей MAN с системой впрыскивания Common-Rail угроза для водителя и пассажиров с
кардиостимулятором отсутствует. Все фактические предельные показатели в отношении кардиостимуляторов в настоящее время ниже установленных нормативов!
При работающем двигателе запрещается касаться деталей инжекторов, которые находятся под напряжением.
Соблюдение чистоты при работе с системами впрыскивания CR.
Компоненты современной системы впрыскивания состоят из высокоточных деталей, не предназначенных для экстремальных нагрузок. По причине наличия такой высокоточной техники во время проведения всех работ с системой подачи топлива необходимо соблюдать особую чистоту. Вывести компоненты системы из строя могут частицы размером более 0,2 мм.
Поэтому до начала работ необходимо обязательно соблюдать следующие условия:
• Поддерживать абсолютную чистоту на рабочем месте (очистить рабочее место).
• Производить основательную чистку моторного отделения с помощью пароструйного насоса, затем произвести сушку воздухом или с помощью отсоса. Внимательно следите за электрическими деталями.
• После вскрытия топливной системы запрещается использовать для чистки сжатый воздух. Осторожно удалить остатки краски.
• Для чистки должны использоваться только салфетки без ворса.
• Перед началом работ необходимо произвести очистку инструмента и рабочих материалов до начала работ и проверить их на отсутствие повреждений.
• Обязательно накрыть нижнюю часть кабины брезентом.
• Следить за тем, чтобы до начала работ рабочая одежда была чистой.
• Рабочие места, расположенные рядом, не должны служить источником загрязнений, пылевых завихрений и т.п. (напр., шлифовальные или сварочные работы).
• Все демонтированные детали после демонтажа должны быть незамедлительно закрыты (покрытие можно использовать только один раз).
• Обязательно соблюдайте инструкции по проведению работ и монтажу, напр., для замены штуцеров форсунки или инжектора (соблюдайте момент затяжки!).
• Обращаться с демонтированными деталями необходимо также, как и с оригинальными запасными частями, т.е. при отправке обеспечить оригинальную упаковку, закрыть места подключений.
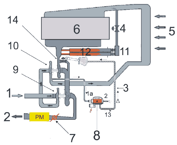
A Электронный блок EDC A435
B A403 FFR
C A302 ZBR
1 Датчик частоты вращения коленчатого вала B488
- Датчик частоты вращения с отчетом в приращениях
1a Датчик частоты вращения распред. вала B489
- Сегментный датчик частоты вращения
2 Инжектор (ы)
3 Датчик давления воздуха наддува Евро3 B125, B623 давление наддува / термодатчик Евро4, Евро5
4 Датчик температуры охлаждающей жидкости B124
5 Датчик темп. воздуха наддува B123
6 Датчик давления в Rail B487
7 Датчик давления топлива B377
8 Цилиндр Y280 AGR
Датчик перемещения B673
- E-AGR Евро 4/5
9 Выключатель S284 FGR / FGB
10 Моторный тормоз A437 / Intarder
- Толчковый выключатель системы длительного торможения A437
11 Контрольная лампа EDC H296
- Контрольная лампа H478 фильтра ОГ MIL Евро4, Евро5
12 Выключатель темпомата A429
13 Датчик хода педали акселератора A410
14 Датчик хода сцепления B362
15 Датчик давления масла B104
16 Дозирующий элемент Y332 (количественный пропорциональный клапан)
17 Комплект приборов A407
18 Датчик температуры ОГ 1 B561 (перед фильтром) Евро4
Датчик температуры ОГ 1 B633 (перед фильтром) Евро5
Датчик температуры ОГ 2 B634 (после фильтра) Евро5
Датчик температуры ОГ 2 B634 (после фильтра) Евро5
19 Датчик относительного давления ОГ B683 Евро4
20 Модуль подачи A808 Denoxtronik Евро5
21 Уровень мочевины B628
Термодатчик Евро 5
Клапан-дозатор Y436 Евро 5
Магнитный клапан Y437 ОЖ Евро 5
Нагрузочный резистор R283
HD OBD-CAN Евро4
Клапан-дозатор Y436 Евро 5
Магнитный клапан Y437 ОЖ Евро 5
Нагрузочный резистор R283
HD OBD-CAN Евро4
Электрические компоненты

Схема подачи топлива двигателя D2066 (Евро3)
A Фильтр в топливном баке 300μм
B Клапан ограничения давления DBV (двухступенчатый) давление открывания около 1800 бар
C Перепускной клапан (1,2 –1,3 бар только для ЕВРО 3. Двигатель Евро 4 на месте этого клапана имеет дроссель в Rail (0,9 мм) к трубопроводу инжектора)
D Насос высокого давления CP 3.4
E Магнитный клапан для электрофакельного устройства облегчения пуска
F Инжектор
G Топливоподающий насос (4,5 –7,5 бар)
H Подключение обогрева топливного фильтра
I Топливоподкачивающий ручной насос с фильтром грубой очистки
J Напорный патрубок с фильтром
K Подключение датчика давления топлива
L Датчик давления в Rail
Прохождение топливопроводов
• От топливного бака к фильтру предварительной очистки
• От фильтра предварительной очистки к шестеренчатому насосу
• От топливоподкачивающего насоса к фильтру тонкой очистки
• От фильтра тонкой очистки к насосу высокого давления
• Слив от предохранительного клапана (5бар) насоса высокого давления к топливному баку
• От насоса высокого давления к Rail
• Слив от клапана ограничения давления к топливному баку
• Подключение инжектора к Rail
• Дренажный канал к топливному баку
• От фильтра тонкой очистки к электрофакельному устройству облегчения пуска
• Слив от клапана ограничения давления к топливному баку

Схема подачи топлива двигателей D0834/D0836 (Евро3/4)
A Топливный бак (фильтр впуска 300μм)
B Насос высокого давления CP3.3, раздача топлива
C Топливоподающий насос (4,5 –7,5 бар)
D Топливный фильтр
E Фильтр грубой очистки (Топливоподкачивающий ручной насос)
F Дозирующий элемент количественный пропорциональный клапан MProp
G Магнитный клапан электрофакельного устройства облегчения пуска
H Факельная свеча накаливания
I Клапан ограничения давления
J Rail
K Датчик давления в Rail
L Инжектор
M Обратный трубопровод (Перепускной клапан 1,2 -1,3 бар только в Евро3)

Указание: Насос высокого давления с топливной смазкой ЕВРО 4
Схема подачи топлива двигателя D2876 (Евро3)
A Фильтр на впуске топливного бака 300μм
B Перепускной клапан 0,5 бар, новый 1,2-1,3 бар
C Фильтр тонкой очистки насоса высокого давления
D Полый болт с дросселирующим отверстием 0,5 мм (следить за тем, чтобы использовались уплотнители BS)
E Перепускной клапан для электрофакельного устройства облегчения пуска (1,3-1,8 бар)
F Дросселирующее отверстие 0,5 мм
G Электрофакельная свеча накаливания
H Rail
I Датчик давления в Rail
K Клапан ограничения давления, двухступенчатый
L Kraftstoffservice Center
M Топливоподкачивающий ручной насос
N Топливоподающий насос (4,5 –7,5 бар)
O Насос высокого давления

Схема подачи топлива двигателей D20 / D26 (Евро 4/5)
A Фильтр на впуске топливного бака 300μм
B Редукционный клапан DBV (двухступенчатый) давление открывания около 1800 бар
C Подключение трубопровода для слива (без клапана ограничения давления)
D Насос высокого давления CP 3.4+
E Магнитный клапан для электрофакельного устройства облегчения пуска
F Инжектор
G Топливоподающий насос (4,5 –7,5 бар)
H Датчик давления в Rail
I Топливоподкачивающий ручной насос с фильтром грубой очистки
J Напорная трубка со стержневым фильтром
K Подключение датчика давления топлива
L соединение (подача)
M соединение (слив)
N Топливный фильтр (3-5μм), постоянная вентиляция (0,3 мм)

Топливный центр Kraftstoff-Service-Center (KSC)
В двигателях Common Rail используется узел Kraftstoff-Service-Center (KSC).
KSC объединяет в себе фильтр грубой очистки, топливоподкачивающий ручной насос, фильтр тонкой очистки, вентиляцию и нагревательный элемент в одной детали.
На корпусе KSC установлен датчик для контроля давления топлива. Площадь фильтра, примерно, на 50% больше и тоньше, чем у обычных фильтров.
Фильтрующий элемент подлежит удалению экологически чистым способом.
Фильтр предварительной очистки - моющийся.
Осторожно
При замене фильтра необходимо соблюдать ту же чистоту, что и при замене инжектора (запрещается очищать корпус фильтра изнутри!)
Давление подачи и обратного хода
Слишком высокое давление обратного хода изменяет характеристики инжекторов.
Слишком низкое давление подачи (например, неисправность топливного узла KSC, или перепускного клапана…)
A Топливо от топливоподкачивающего насоса
B Обогрев фильтра
C Подача на электрофакельное устройство облегчения пуска
D Слив конденсата (отвинтить болт при замене фильтра)
E К топливному баку
F От топливного бака
G Ручной насос
H К топливоподающему насосу
I Фильтр грубой очистки

Компоненты в контуре низкого давления
Компоненты: - Топливный бак
- Шестеренчатый топливоподающий насос
- Топливный фильтр и трубопроводы низкого давления
Шестеренчатый топливоподающий насос подает топливо из топливного бака через топливный узел KSC в насос высокого давления.
Все стационарные топливопроводы имеют исполнение полиамидных трубок со штекерными соединениями, простыми в установке (Raymond).
(Клапан остановки слива установлен только в трубопроводе обратки)
(Подающий трубопровод Duck`s Bill)
Топливоподкачивающий насос низкого давления
• 1 Перепускной клапан открывается, примерно, при 10 – 11 бар
• 2 Запорный клапан слива для выпуска воздуха из системы
• 3 Шестеренчатый топливоподающий насос
• 4/5 Подача топлива от бака и далее к топливному узлу KSC
Подводящий трубопровод / сливной трубопровод (штепсельный разъем Raymond)
J Пропускное направление
I Duck Bill´s (клюв утки) являются лапками, которые автоматически открываются или закрываются за счет давления на всасывании K Блокировка стока (от пружины)
Топливный насос, низкое давление

Штекерный разъем трубопровода (быстросъемная муфта Raymond)
С 10/2004 года в серийном производстве используется обозначение:
зеленая «быстросъемная муфта»

Насос высокого давления
Задачей зоны высокого давления является создание давления, необходимого для осуществления впрыскивания и подачи достаточного количества топлива во всех рабочих состояниях. Привод насоса высокого давления осуществляется от двигателя. Смазка насоса осуществляется топливом или маслом. Топливо подается от топливоподающего насоса по топливопроводам к топливному фильтру (KSC), а затем через дозирующий элемент ZME в „камеру всасывания“ насоса высокого давления. Топливоподающий насос (3) подключен фланцами к насосу высокого давления.
Так как насос высокого давления подает только необходимое количество топлива и производит благодаря этому нужное давление в Rail, его потребность в мощности уменьшается.
В настоящее время для четырех – и шестицилиндровых двигателей MAN используется только насос типа CP 3.4, смазываемый моторным маслом, для D08.., D20 – вращение против часовой стрелки, а для D2866, D2876 – по часовой стрелке.
Двигатели Евро 4 с системой OBD оборудованы насосом высокого давления того же типа с топливной смазкой (CP 3.4+).
Для насосов с масляной смазкой слив топлива в количестве, определенном регулятором, осуществляется не к баку, а от фильтра грубой очистки во всасывающий трубопровод (частичный горячий контур).
Передаточное отношение
Коленчатый вал – Насос высокого давления D20 и D28 1:1,67
D08 1:1,33
Насос высокого давления CP3.4

Рисунок 1 / 2: насос высокого давления CP 3.4
1 подача топлива от топливного фильтра
2 к Rail
3 от фильтра грубой очистки
4 к фильтру
5 обратка к баку
6 дозирующий элемент ZME (количественный пропорциональный клапан)
Рисунок 1

Рисунок 2

A Зона высокого давления
B Зона низкого давления
C Заправка моторного масла
Внутренняя топливная схема двигателей D20 / D26
A Подача
B Обратка
C Насосы внутренней системы подачи топлива
1 Топливный бак
2 Фильтр грубой очистки (300μм)
3 Топливоподкачивающий ручной насос
4 Шестеренчатый насос
5 Предохранительный клапан (10-11 бар)
6 Воздуховыпускной клапан (обводной клапан 0,15 бар)
7 Kraftstoff Service Center (KSC)
8 Датчик давления топлива
9 Постоянная подача воздуха в KSC, 0,3 мм, макс. 10 л/час p 5 бар)
10 Перепускной клапан 5 бар
11 Дозирующий элемент / Количественный пропорциональный клапан (MProp.)
12 Насос высокого давления CP 3.4+
13 Ступенчатый перепускной клапан ~2,5 бар
14 Дроссель нулевой подачи
15 Дроссель электрофакельного устройства облегчения пуска 0,5 мм
16 Клапан ограничения давления 0,7 бар (Электрофакельное устройство облегчения пуска)
17 Датчик давления в Rail
18 Инжектор
19 Rail со встроенными дросселями 0.9 мм
20 Встроенный двухступенчатый клапан ограничения давления
21 Магнитный клапан электрофакельного устройства облегчения пуска
22 Электрофакельная свеча накаливания
23 Фильтр грубой очистки

Демонтаж насоса высокого давления
См. руководство по осуществлению ремонтных работ A20, A30, A40
Демонтировать топливопроводы, после чего закрыть все подключения пластмассовыми пробками, включительно насос высокого давления.
Установить специальный инструмент 80.99601-6021 на насос высокого давления. Выкрутить соединительные болты и выбить насос с помощью инерционного молотка.
Демонтировать фланец адаптера с помощью инструмента 80.99602-0174.
Установка насоса высокого давления
При установке насоса высокого давления в отличие от обычного дизельного двигателя осуществление настроек не требуется. Зубчатое зацепление приводного вала двигателя D20 CR при установке необходимо смазать. В двигателе D28 CR ведущая шестерня устанавливается на конусе. При установке ведущей шестерни с конуса в шестерне и на приводном валу насоса необходимо удалить смазку с помощью Уайт спирита или спирта.
При замене или установке нового насоса высокого давления (Евро3) со смазкой маслом, заправка моторного масла больше не производится.
Для насосов высокого давления с топливной смазкой после установки достаточно выпустить воздух из системы питания.
Направление вращения вправо: (означает, если смотреть на привод насоса в направлении часовой стрелки). Произвести затяжку винтов HD M10 с моментом 45 Нм.
Смазать уплотняющую поверхность Loctite 5900. Насадить ведущую шестерню насоса высокого давления и затянуть крепежные болты (момент затяжки 115 Нм).
Установить радиальное уплотнение вала
Запрессовать уплотнение вала с помощью запрессовочного инструмента в привод насоса высокого давления.
A маслосъемное кольцо для уплотнения корпуса
B маслосъемное кольцо для уплотнения системы подачи масла
C насос высокого давления
D фланец со стороны привода для шестерни насоса высокого давления
E заправка моторным маслом
F количественный пропорциональный клапан
G приводная муфта 51.11310-0007 новая длина 71,0 мм 51.11310-0005 старая длина 72,5 мм
H топливный насос (низкое давление)

Дозирующий элемент ZME Y332

Дозирующий элемент (количественный пропорциональный клапан топлива MProp.) является регулятором давления топлива в энергоаккумуляторе высокого давления (Rail) и прикреплен винтами к корпусу со стороны всасывания насоса высокого давления.
Регулирование дозирующего элемента MProp осуществляется с помощью импульсмодулированного сигнала (PWM).
- Коэффициент заполнения 100% Нулевая подача
- Коэффициент заполнения 0% Максимальная подача

A Ток (большой, отсутствие, малое значение)
Q Количество (полное количество топлива)
C Максимальное количество топлива
D Минимальное количество топлива
E Трапециевидный паз

Сигнал без нагрузки 600об/мин
Коэффициент заполнения
Регулирование количественного пропорционального клапана MProp осуществляется с помощью импульсмодулированного сигнала (PWM).
- Коэффициент заполнения 100% Нулевая подача Большой ток
- Коэффициент заполнения 0% Максимальная подача Малый ток/отсутствие тока
- Сопротивление катушки составляет 2,5-4,5 Ом, питание током обеспечивается от электронного блока, 24 Вольт.
Разводка контактов:
• Pin 1 (провод 60373) –Pin A 08 сигнал на входе (PWM)
• Pin 2 (провод 60374) –Pin A 10 масса
Энергоаккумулятор высокого давления (Rail)
Задачей энергоаккумулятора высокого давления является накопление топлива под высоким давлением. При этом колебания давления, возникающие при подаче и впрыскивании, могут быть погашены накапливаемым объемом.
Давление в Rail даже при отборе большого количества топлива может поддерживаться почти на постоянном уровне. Таким образом, обеспечивается то, что при открывании инжекторов давление впрыскивания остается постоянным.
Энергоаккумулятор высокого давления представляет собой трубу, изготовленную из кованой стали (Евро3), а в Евро 4/5 - из сварной стали. В зависимости от двигателя он имеет разный диаметр и длину.
В Rail в распоряжении имеется, примерно, 30 см3 топлива.

A Двухступенчатый редукционный клапан (DBV)
B Датчик давления в Rail B 487
C Подвод топлива от насоса высокого давления
D Дроссель 0,9 мм запрессован (6x), с введением Евро 4
Двухступенчатый редукционный клапан (DBV)
Двухступенчатый редукционный клапан установлен на Rail. Он выполняет функцию предохранительного клапана с ограничением давления.
Если давление слишком высокое, то открывается отверстие стока.
В обычном рабочем состоянии пружина вдавливает поршень в седло клапана таким образом, чтобы Rail оставался закрытым. Только при превышении максимального давления в системе поршень открывается нажимом за счет давления в Rail .
В случае если давление в Rail слишком высокое (составляет более >1800 бар), то открывается первый поршень клапана ограничения давления DBV (этап 1), благодаря чему давление может воздействовать на большую поверхность первого поршня, за счет чего он постоянно остается открытым. Далее давление воздействует на второй поршень (этап 2), который открывается за счет увеличенной действующей поверхности при 700 - 800 бар. При этом давление в Rail поддерживается на постоянной величине, составляющей, примерно, 700 - 800 бар. Таким образом, двигатель работает дальше в аварийном режиме.
Двухступенчатый редукционный клапан закрывается опять, когда отключается двигатель, а давление в Rail падает ниже 50 бар.
В случае если клапан DBV при слишком высоком давлении в Rail открывается недостаточно быстро, то его открывание осуществляется толчком.
Для того чтобы открыть клапан ограничения давления DBV толчком, открывается дозирующий элемент топлива (M-Prop), а также происходит отбор топлива для впрыскивания.
Давление в Rail увеличивается до достижения давления открытия клапана DBV. Если открывание толчком не приведет к успеху, напр., по причине механического заклинивания клапана DBV, двигатель отключается.
Клапан ограничения давления , 2 –ух ступенчатый (DBV)

(Встроенный клапан DBV в двигателях Евро 4/5)

Датчик давления в Rail B487
Датчик давления в Rail контролирует давление в энергоаккумуляторе высокого давления (Rail).
Диапазон замера датчика составляет от 0 до 1800 бар.

• Pin 1 (провод 60160) –STG Pin A 61 масса датчика
• Pin 2 (провод 60162) –STG Pin A 80 сигнал на выходе (1,01-1,60 Вольт)
• Pin 3 (провод 60161) –STG Pin A 43 подача питания (4,75-5,25 Вольт)

Характеристика датчика

Инжектор от Y341 до Y346
Сила, необходимая для открывания и закрывания иглы форсунки, не может производиться только магнитным клапаном. Поэтому управление гидравлической иглой форсунки происходит опосредованно с помощью гидравлической системы сервопривода.
Инжекторы, размещающиеся в полости цилиндра вертикально, закрепляются с помощью лапки вверху винтами высокой эластичности. Установлены многоструйные форсунки с полостями между запорной иглой и отверстиями с давлением открывания ~200 бар. Уплотнение между инжектором и камерой
сгорания имеет исполнение медного уплотнителя в головке цилиндра.
Электронный блок задает продолжительность впрыскивания (управление катушкой инжектора для предварительного, основного и, возможно, дополнительного впрыскивания), давление впрыскивания, и управляет магнитным клапаном в инжекторе. С помощью якоря в магнитном клапане открывается или закрывается сливной дроссель (6) камеры распределения.
• При открытом дросселе стока, давление в камере газораспределения понижается и игла форсунки открывается.
• При закрытом дросселе стока давление в камере газораспределения растет и игла форсунки закрывается.
Таким образом, характер открывания иглы форсунки (скорость открывания и закрывания) определяется впускным дросселем (5) в управляющей камере инжектора.
Через отверстия слива просачивающееся топливо подается обратно по дросселю и игле форсунки к топливному баку.
Точное количество впрыскивания определяется по выходному поперечному сечению форсунки, которая определяет продолжительность открывания магнитного клапана и давление в Rail.
Управление инжектором осуществляется при фактическом давлении в Rail, составляющем 110 – 115 бар.
Детали инжектора

A малая тороидальная поверхность
B большая поверхность
1 игла форсунки
2 подключение высокого давления
3 катушка
4 шарик клапана
5 электрическое подключение
6 обратный слив топлива
7 дроссель подачи
8 дроссель спуска
9 шарик клапана спуска
Неразборный якорь инжектора

Двухсекционный якорь Евро 4/5 инжектора

7 Подводной дроссель
8 Отводной дроссель
9 Обратный клапан
Предварительное / основное / дополнительное впрыскивание
С помощью предварительного впрыскивания осуществляется равномерное увеличение давления, предварительный разогрев камеры сгорания, благодаря чему уменьшается шум при горении и основной процесс сгорания протекает значительно более ровно и при более высоком уровне давления.
При незагруженном двигателе количество топлива при предварительном впрыскивании больше, так как камера сгорания при впуске охлаждается сильней и должна сильней разогреваться во время предварительного впрыскивания.
Предварительное впрыскивание осуществляется только на холостом ходу и в режиме неполной загрузки.
Количество основного впрыскивания уменьшается на количество предварительного впрыскивания таким образом, что при незначительном улучшении отдачи мощности потребность в топливе остается прежней.
С помощью дополнительного впрыскивания можно улучшить состав ОГ, благодаря чему в основном происходит уменьшение количества твердых частиц.
Указание
ПРЕДВАРИТЕЛЬНОЕ – ОСНОВНОЕ – ДОПОЛНИТЕЛЬНОЕ ВПРЫСКИВАНИЕ не осущестляется в общей характеристике.
Выброс частиц находится в сильной зависимости от топливно-воздушной смеси.
Характер изменения давления сгорания с и без предварительного впрыскивания
A Предварительное впрыскивание
B Основное впрыскивание
C Характер изменения давления сгорания без предварительного впрыскивания
D Характер изменения давления сгорания с предварительным впрыскиванием
F Дополнительное впрыскивание
Характер изменения давления сгорания с и без предварительного впрыскивания двигателей D20 и D28

Характер изменения давления сгорания с и без предварительного впрыскивания двигателя D08

Впрыск во временной последовательности

1 Электрическая энергия
2 Подъем якоря
3 Давление в рабочем объеме
4 Впрыскивание
5 Давление в управляющей камере
Управление инжектором
Для быстрого открывания инжектора необходимо наличие тока высокогонапряжения. Для этого необходимо высокое начальное напряжение. Для этого в электронном блоке происходит накопление энергии в конденсаторах. Теперь, если необходимо включить инжектор, то электронный блок попеременно соединяет инжектор с конденсатором (высокое напряжение на короткое время)
и аккумулятором (высокий ток длительной нагрузки).
При отключении инжектора он опять соединяется с конденсатором для того, чтобы он вновь мог накапливать энергию. Сигнал по напряжению инжектора (двигатель без нагрузки)

Сигнал по напряжению инжектора двигателя D20 (двигатель под нагрузкой)

Повреждения инжектора
Бесперебойная работа инжектора может быть нарушена в случае закупорки впускного дросселя или нарушения плотной посадки спускного дросселя.
В обоих случаях в пространстве клапана противодавление нарастать не может.
Твердые частицы на посадке форсунки поддерживают ее в открытом положении таким образом, что в камеру сгорания в постоянном режиме под очень высоким давлением впрыскивается топливо.
Следствием этого может стать сильное разжижение масла, а также повреждения поршней и гильз цилиндров.
Повреждения впускного дросселя:

Демонтаж инжектора
В ходе всего процесса по демонтажу необходимо следить за абсолютной чистотой
Внимание! Все демонтированные детали должны быть сразу герметично закрыты!
1. Демонтировать топливопроводы высокого давления
2. Снять нажимную гайку (8) со штуцера форсунки (4)
3. Снять штуцер форсунки (4)
4. Удалить винт нажимного фланца (6) и снять лапку (5)
5. Снять инжектор с помощью специального инструмента и осуществлять его хранение надлежащим образом.
Указание
Нельзя повторно использовать штуцер форсунки (4), также необходимо всегда использовать новое маслосъемное кольцо (3) и новый медный уплотнительный диск (2).
Специальный инструмент:
Зажим (1) с помощью болта с накатанной головкой (2) плотно прижимается к инжектору.

Установка инжектора
• Необходимо соблюдать абсолютную чистоту в ходе всего процесса монтажа!
• Удалить защитные колпачки с инжектора, (смазать маслосъемное кольцо для инжектора) и вставить, в дальнейшем соблюдать указания по предварительной затяжке болта нажимного фланца (6)
• Установить более тонкий конец штуцера форсунки (4) к инжектору
• Произвести предварительную затяжку нажимной гайки (8)
• Произвести окончательную затяжку нажимного винта фланца (6)
• Окончательная затяжка штуцера форсунки (4)
• Предварительная затяжка подключения трубопровода высокого давления от и к Rail
• Затяжка электрических подключений M 4, 1,5 Нм
Осуществить предварительную затяжку всех трубопроводов высокого давления с обоих концов, момент затяжки 10 Нм.
Произвести окончательную затяжку крепежных болтов к Rail с моментом 35 ± 5 Нм.
Окончательная затяжка всех трубопроводов высокого давления 10 Нм + 60° (при повторном использовании 10 Нм + 30°).
Указания
Трубопроводы высокого давления должны устанавливаться без натяжения. Убедиться в отсутствие вредного контакта!
Накидные гайки трубопроводов высокого давления со стороны штуцера форсунки, имеющие номера MAN, установить на штуцерах форсунок.
Моменты затяжки двигателей D20, D08 и D28


1 Маслосъемное кольцо для инжектора (смазать при монтаже)
2 Медное уплотнение
3 Маслосъемное кольцо для штуцера форсунки
4 Штуцер форсунки
5 Лапка
6 Винт фланца напорного трубопровода
7 Сферическая шайба
8 Нажимной винт
Датчики частоты вращения коленчатого вала
Датчик частоты вращения коленчатого вала B488 (Инкрементный датчик частоты вращения)

С помощью этого датчика (3) производится расчет угла поворота коленчатого вала. В его функцию входит определение правильного времени включения инжектора отдельных цилиндров.
Зубчатый диск на маховике обладает 60 минус 2 зубьями, которые нанесены на расстоянии 6° друг от друга.
Этот промежуток (18°) служит для того, чтобы определить положение угла в рамках 360° двигателя. В определенном положении коленчатого вала он соотнесен с первым цилиндром.
Датчик частоты вращения коленчатого вала в корпусе маховика должен быть установлен в положении 1! (Положение 2 закрывается резиновой пробкой.)
Маховик

Датчик частоты вращения распредвала B499
(Сегментный датчик частоты вращения)

Датчик (1) находится на распредвале, который вращается в два раза медленнее, чем коленчатый вал. Его положение определяет то, находится ли поршень в такте сжатия или в такте выпуска.
Зубчатый сектор на коленчатом валу обозначен как фазовый маховик.
Он обладает одной маркировкой фазы на цилиндр (6 маркировок фазы и одна маркировка синхронизации в 6 –цилиндровом двигателе).
Маркировки фазы размещаются на зубчатом секторе, на равном расстоянии друг от друга, они предназначены для определения регулирования плавного хода.
Маркировка синхронизации (2) является дополнительной и размещается вплотную к маркировке фаз. Она служит для определения угла двигателя в пределах 720°.
Внутреннее сопротивление датчика частоты вращения составляет 750Ω-1100Ω.
Двигатель D20

Принципиальная схема

Двигатель D28
1 Датчик частоты вращения коленчатого вала
2 Датчик частоты вращения распределительного вала

Двигатель D08

Датчик частоты вращения, последовательность сигналов
При прохождении материала, являющегося магнитным проводником, на Pin 2 сначала появляется положительная полуволна. Если датчик имеет неправильную полярность, то производится запись о неполадке (SPN 3753). За счет этого все впрыскивания производятся с опозданием, примерно, на 3°. Следствие: более высокие показатели ОГ и более высокий механический износ.
Процесс старта при неисправном датчике
При отсутствии сигнала датчика двигатель все же сохраняет способность к работе.
При работе только с датчиком коленчатого вала при запуске производятся пробные впрыскивания в угле перекрытия фаз газораспределения и в верхней мертвой точке зажигания, так как EDC сначала должна найти правильную верхнюю мертвую точку зажигания OT.
Если электронный блок распознает увеличение частоты вращения (зажигание), то он нашел правильную верхнюю мертвую точку, двигатель заводится и работает как с двумя датчиками.
Если работа осуществляется только с датчиком частоты вращения распределительного вала, то в электронном блоке записываются исправления угла поворота распределительного вала таким образом, что время впрыскивания может быть определено без точного распознания угла поворота коленчатого вала.
Анализ частоты вращения
С помощью датчика частоты вращения коленчатого вала электронный блок может определить точное положение поршней и с помощью датчика частоты вращения распредвала определить, какой цилиндр работает.
Эта информация используется не только для того, чтобы рассчитать начало впрыскивания и его продолжительность, но и для того, чтобы определить ход двигателя и отдачу мощности отдельных цилиндров. Для этого один оборот двигателя разделен на три отдельных сегмента.
Рабочий цикл при 4-ех тактовом двигателе: 2 оборота или 720°.
Таким образом, при 6-цилиндровом двигателе отдача мощности одного цилиндра продолжается 120°.
Для обеспечения этого свою долю в частоту вращения двигателя вносит только один цилиндр.
Сигнал датчика распределительного вала
(замеры при 600мин-1 между PIN A72 и A54)

Сигнал датчика коленчатого вала
(замеры при 600мин-1 между PIN A73 и A55)

Сигнал датчика распределительного вала и датчика коленчатого вала (D28/D20/D26)

(замеры при 600мин-1 между PIN A73 и A55, Датчик коленчатого вала) между PIN A72 и A54, Датчик распределительного вала)
1 Датчик распределительного вала
2 Синхронизация
3 Датчик коленчатого вала
Указание:
Необходимо следить за синхронизацией между датчиком распределительного и коленчатого вала. Неверная настройка зубчатого диска импульсного датчика распределительного вала по отношению к коленчатому валу может быть распознана на основе соответствия или несоответствия сигналов.
Сигнал датчика распределительного вала и датчика коленчатого вала, двигатель D08, 4 цилиндра

(замеры при 600мин-1 между PIN A73 и A55, датчик частоты вращения коленчатого вала) между PIN A72 и A54, датчик частоты вращения распределительного вала)
1 Датчик частоты вращения распределительного вала
2 Синхронизация
3 Датчик коленчатого вала
Указание:
Необходимо следить за синхронизацией между датчиком распределительного вала и датчиком коленчатого вала. Неверная настройка зубчатого диска импульсного датчика распределительного вала по отношению к коленчатому валу может быть распознана за счет соответствия этих сигналов.
Сигнал датчика распределительного вала и датчика коленчатого вала двигателя D08, 6 цилиндров

(замеры при 600мин-1 между PIN A73 и A55, датчик частоты вращения коленчатого вала) между PIN A72 и A54, датчик частоты вращения распределительного вала)
1 Датчик частоты вращения распределительного вала
2 Синхронизация
3 Датчик частоты вращения коленчатого вала
Указание:
Необходимо соблюдать синхронизацию датчика частоты вращения распределительного вала и датчика частоты вращения коленчатого вала.
Неверная настройка зубчатого диска датчика распределительного вала по отношению к коленчатому валу может быть распознана на основе соответствия сигналов.
Датчик давления наддувочного воздуха B125
Евро 3

Этот датчик служит для анализа абсолютного давления наддувочного воздуха.
Элемент датчика и электроника для усиления сигнала и температурной компенсации встроены на чипе из кремния. Активная поверхность кремниевого чипа подвергается воздействию эталонного вакуума. Давление во впускном трубопроводе проводится по нагнетательному патрубку на обратную сторону
мембраны, которая обладает стойкостью к воздействию среды, в которой производятся замеры.
При распознании неполадки SPN 102 датчика давления наддувочного воздуха с кодом используется резервная величина. Таким образом, возникает ограничение при эксплуатации.
Характеристика датчика двигателя Евро3/4/5

Разводка контактов двигателя Евро 3

• Pin 1 (провод 60141) –STG Pin A 62 Масса датчика
• Pin 2 не занято
• Pin 3 (провод 60159) –STG Pin A 25 подача питания (~5 Вольт)
• Pin 4 (провод 60102) –STG Pin A 81 Сигнал на выходе
B623: Разводка контактов (LDF 6T) Евро 4 / Евро 5
Этот датчик давления наддувочного воздуха дополнительно оборудован термодатчиком, который вместе с термодатчиком наддувочного воздуха (B123) служит для контроля системы AGR (рециркуляция ОГ).

• Pin 1 (провод 60141) –STG Pin A 62 Масса датчика
• Pin 2 (провод 90121) –STG Pin A 70 Сигнал на выходе, температура
• Pin 3 (провод 60159) –STG Pin A 25 Подача напряжения (~5 Вольт)
• Pin 4 (провод 60102) –STG Pin A 81 Сигнал на выходе
Анализирующая схема обоих датчиков наддувочного воздуха (Евро III, IV) питается напряжением 5В от электронного блока EDC.
Датчик давления масла B104
Он контролирует давление масла, диапазон замеров составляет от 0 бар (0,5 В) до 6 бар (4,5 В).
Анализ давления масла осуществляется исключительно от электронного блока EDC по информационным шинам CAN на другие электронные блоки, но не оказывает воздействия на регулирование двигателя.

Характеристика датчика

Разводка контактов
• Pin 1 (провод 60156) –STG Pin A 24 Подача напряжения (~5 Вольт)
• Pin 2 (провод 60135) –STG Pin A 38 Масса датчика
• Pin 3 (провод 60134) –STG Pin A 21 Сигнал на выходе
• Pin 4 не занято
Датчик давления топлива B377

Этот датчик контролирует давление топлива в приемном канале насоса (со стороны низкого давления). Замер производится на входе фильтра (не очищенное топливо). По причине падения давления в фильтре, давление выше, чем на выходе из фильтра (чистой стороной к насосу высокого давления
около 5 бар).
Диапазон замера составляет от 0 бар (0,5В) до 15 бар (4,5В).
Характеристика датчика

Разводка контактов
• Pin 1 (провод 60155) –STG Pin A 40 Подача напряжения (~5 Вольт)
• Pin 2 (провод 60158) –STG Pin A 37 Масса на датчик
• Pin 3 (провод 60137) –STG Pin A 20 Сигнал на выходе
• Pin 4 Не используется
Термодатчик охлаждающей жидкости B124
Термодатчик охлаждающей жидкости является резистором с отрицательным ТКС. Он находится в охлаждающем контуре и подает на электронный блок информацию о температуре охлаждающей жидкости. Значения температуры охлаждающей жидкости используются блоком управления для задания различных характеристик для работы двигателя.


• Pin 1 (провод 60131) –STG Pin A 77 Сигнал на выходе
• Pin 2 Не используется
• Pin 3 (провод 60101) –STG Pin A 58 Масса датчика
• Pin 4 не занято
Термодатчик наддувочного воздуха B123
Термодатчик наддувочного воздуха является резистором с отрицательным ТКС. Он контролирует рециркуляцию ОГ. Система рециркуляции ОГ отключается при определенных температурных условиях, с одной стороны, чтобы избежать конденсации сернистых кислот при холодных температурах
наддувочного воздуха, а с другой стороны, чтобы защитить двигатель от сильного нагрева всасываемого воздуха в случае возникновения неисправностей в системе рециркуляции ОГ.
Если наддувочный воздух слишком холодный (<10°C) или слишком горячий (>70°C) то система рециркуляции ОГ отключается.
Если на индикацию выводится слишком высокая температура наддувочного воздуха, то причиной этого наряду с неисправным датчиком может быть плохо закрывающийся клапан системы рециркуляции ОГ или загрязнение охладителя наддувочного воздуха.


• Pin 1 (провод 60151) –STG Pin A 76 Сигнал на выходе
• Pin 2 Не используется
• Pin 3 (провод 60100) –STG Pin A 58 Масса датчика
• Pin 4 не занято
Пропорциональный клапан с двухступенчатым наддувом Y340
(только для двигателей D0834 LFL42, 207 л.с.)

При двухступенчатом наддуве отработанные газы проходят сначала через маленький турбонагнетатель (сторона высокого давления), а затем - по большому (сторона низкого давления). Так как для всей области нагрузки частоты вращения в распоряжении имеются 2 турбонагнетателя, конструкция турбины высокого давления может иметь малые размеры. Благодаря этому компрессору высокого давления во время ускорения проще обеспечить быструю подачу затребованного количества воздуха. При увеличении массы ОГ они частично с помощью байпаса подаются в обвод турбины высокого давления. Таким способом можно поддерживать на незначительном уровне количество копоти, образуемой при ускорении, а таже избежать перегрузки турбины высокого давления. При динамичной эксплуатации можно однозначно распознать преимущества двухступенчатого наддува. Наряду с
увеличением количества воздуха важную роль здесь играет, прежде всего, лучшие характеристики при срабатывании.
Управление двухступенчатым наддувом осуществляется с помощью пропорционального клапана турбонагнетателя. Пропорциональный клапан турбонагнетателя регулируется электронным блоком EDC с помощью выхода с импульсмодулированной частотой. В соответствии с этим сигналом клапан давления наддувочного воздуха варьирует давление наддува на клапане Wastegate. Предельные
значения сигнала с импульсмодулированной частотой составляют от 0%, в соответствии с максимальным открытием перепускного клапана ОГ (минимальное давление наддува) и 100%, т.е. перепускной клапан Wastegate закрыт (максимальное давление наддува). В случае неисправности при работе электронный блок EDC распознает отклонение в регулировании и снижает количество впрыскиваемого топлива и частоту вращения двигателя.
Разводка контактов пропорционального клапана двухступенчатого наддува

Сопротивление катушки: ~86 Ом
• Pin 1 (провод 60384) –STG Pin A 02 Настройка +
• Pin 2 (провод 60367) –STG Pin A 04 Настройка –
Пропорциональный клапан, двухступенчатый наддув

1 Подача
2 В атмосферу
3 Перепускной байпассный клапан
A Коэффициент заполнения в %
B Давление (давление наддува) к перепускному клапану pe (кПа)

Пример:
При достижении давления 50 кПа, пропорциональный клапан включает двухступенчатый наддув на 43%.
Двигатель D08

1 Пропорциональный клапан, двухступенчатый наддув
2 Датчик частоты вращения коленчатого вала
Функциональная схема, двухступенчатый наддув

1 Вход
1a Вход от турбонагнетателя
2 К атмосфере
3 Перепускной байпасный клапан
4 Запорный клапан с электропневматическим управлением
5 Охладитель наддувочного воздуха
6 Двигатель
7 Клапан свободного выпуска
8 Импульсный клапан PM
9 Фаза низкого давления
10 Фаза высокого давления
11 Клапаны пикового давления
12 Охладитель системы AGR
13 К перепускному клапану PM Kat (двигатель Евро 4)
14 Перепускной клапан
Электронный блок

Важной задачей электронного блока EDC является регулирование впрыскивания топлива и приведение его в соответствие с различными условиями эксплуатации, и, благодаря этому, регулирование мощности и вредных выбросов двигателя. Разрешение на старт дается при корректном обмене данными между противоугонным устройством, процессором FFR и электронным блоком EDC, а также при контроле критериев безопасности при запуске. Электронный блок можно использовать максимально для 6 цилиндров, для этого в двигателях, которые имеют более 6 цилиндров, установлено по два электронных блока (Master/Slave).
В электронном блоке для управления инжекторами находятся 6 выходных каскадов цепи высокого напряжения, седьмой выходной каскад Highside используется для управления дозирующим элементом (MProp). Главное реле (подача напряжения, клемма 30) встроено в электронный блок.
Параметры двигателя измеряются по 12 аналоговым входам, двум частотным входам и одному цифровому входу.
Для проверки датчика давления наддувочного воздуха имеется внутренний датчик атмосферного давления, чья измеренная величина должна быть равна давлению наддува на холостом ходу двигателя.
Программное обеспечение электронного блока включает в себя следующие функции
- Формирование заданного значения по количеству впрыскиваемого топлива, ограничение количества впрыскиваемого топлива
- Коррекция величин (защита турбонагнетателя)
При низком атмосферном давлении за счет более низкого расхода воздуха может быть достигнута критическая частота турбонагнетателя. Для защиты турбонагнетателя от возможного превышения номинального числа оборотов происходит ограничение количества впрыскиваемого топлива.
- Дозирование топлива
Пусковая подача топлива: Пусковая подача топлива является функцией пусковой частоты вращения, температуры охлаждающей жидкости, топлива, температуры наддувочного воздуха и времени (увеличение пусковой подачи топлива в зависимости от времени).
Чем ниже температура двигателя, тем больше пусковая подача топлива.
Для того чтобы избежать образования выброса «белого дыма» при холодном двигателе, необходимо замедлить запуск пусковой подача топлива в соответствии с температурой и характеристикой двигателя.
- Регулирование давления топлива с помощью насоса высокого давления
- Отключение давления топлива
- Регулирование холостого хода
Независимо от рабочего состояния двигателя (температура, нагрузка генератора….) частота вращения должна поддерживаться на постоянном уровне.
- окончательное регулирование, ограничение образования копоти и ограничение крутящего момента
- адаптивная компенсация возмущающих воздействий цилиндров (регулирование ровного хода)
- Отключение цилиндров
- Рециркуляция ОГ
- Система впуска воздуха / нейтрализация ОГ
- Температура ОГ и управление ОГ
- Регулирование давления наддува (контроль перепускным клапаном)
Регистрация сигнала и расчет рабочих параметров
- Диагностика и функция контроля
- диагностика On-Board (OBD), начиная с двигателя Евро IV
EDC, внутренняя запись температуры в память В электронный блок записывается самая низкая и самая высокая температура и хранится там, в течение долгого периода времени.
Пример: управление стартером двигателя D20

Разница между Евро 3, Евро 4 и Евро 5:
Евро IV, введенные с октября 2005 (раньше установленного законодательством срока)
Встроенный клапан ограничения давления Инжекторы с якорями, состоящими из двух частей, и 8
бесштифтовыми распылителями форсунки Отсутствие перепускного клапана в сливе
Коэффициент содержания ОГ в AGR составляет 20% (но регулирование черное/белое)
Поршни с камерой сгорания Y
PM-Kat
Моторное масло Евро 4 в соответствии с M-3477 (не совместимо с маслами предыдущего поколения)
Увеличение давления в системе (регулирование давления в Rail)
Система штекерных разъемов топливной системы с блокировкой обратного тока
Сжатие с 19 до 20,5 бар
Охладитель системы AGR с усовершенствованной охлаждающей способностью
Турбонагнетатель (малый корпус турбины)
Схема подачи топлива без частичного горячего контура
Евро IV дополнительно с:
OBD (OBD - символ на панели приборов)
Насос высокого давления с смазкой топливом
Датчик относительного давления ОГ
Термодатчик ОГ
Датчик давления наддува со встроенным термодатчиком
Система AGR с регулированием
Евро V без OBD (начало серийного производства 01.2006)
Встроенный клапан ограничения давления
Отсутствие системы AGR
На месте охладителя системы AGR установлена труба охлаждающей жидкости
«Мочевинная» система SCR
Евро V с OBD без контроля NOX (начало серийного производства 07.2006)
Евро V с OBD с контролем NOX (начало серийного производства 05.2007)
Продолжение и полное описание - смотрите в