См. также:
Система двигателя CDID3S2- OM651
(MB Sprinter 910)
Вся информация в высоком качестве





- В11/17 (датчик температуры охлаждающей жидкости)
- В16/14 (датчик температуры перед турбонагнетателем)
- В17/13 (датчик температуры нагнетаемого воздуха)
- В19/17 (датчик температуры после охладителя системы рециркуляции ОГ)
- В2/12 (термоанемометрический расходомер массы воздуха)
- В28/12 (датчик дифференциального давления сажевого фильтра)
- В28/17 (датчик давления после воздушного фильтра)
- В4/16 (датчик давления в рампе)
- В40/6 (датчик уровня масла в двигателе)
- В40/9 (датчик температуры масла двигателя)
- В5/6 (датчик давления нагнетаемого воздуха)
- В50/5 (датчик температуры топлива)
- В6/23 (датчик числа оборотов)
- В60/3 (датчик противодавления ОГ)
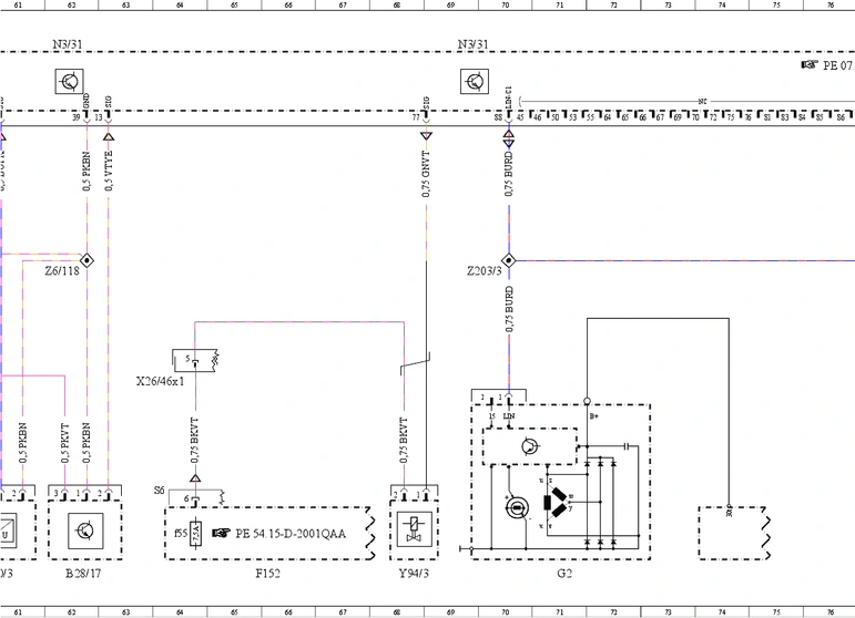
- F152 (блок реле и предохранителей салона а/м)
- F152f55 (предохранитель 55 (7,5 А) клеммы 87/1.1)
- F152f58 (предохранитель 58 (10/15 А) клеммы 87/3)
- F152f61 (предохранитель 61 (7,5/10 А) клеммы 87/2.1)
- G2 (генератор)
- L5/11 (датчик положения коленвала)
- М16/45 (сервомотор дроссельной заслонки)
- М72/1 (сервомотор отключения впускного канала)
- N14/8 (выходной каскад предпускового подогрева)
- N3/31 (блок управления CDI)
- R39/3 (элемент подогрева трубопровода вентиляции)
- R48/2 (элемент подогрева термостата)
- R53 (обогрев топливного фильтра с датчиком конденсата)
- R9/1 (свеча накаливания цилиндра 1)
- R9/2 (свеча накаливания цилиндра 2)
- R9/3 (свеча накаливания цилиндра 3)
- Ungultiger Thesaurus-Eintrag!
- W11/1 (точка массы двигателя)
- W9 (точка массы блок-фары передней левой)
- Х195 (электрическое штекерное соединение свечей накаливания)
- Х26/46х1 (электрическое штекерное соединение 1 жгута электропроводки двигателя)
- Y127/1 (клапан форсунок разбрызгивания масла)
- Y133 (клапан регулируемого масляного насоса)
- Y19/10 (переключающий клапан насоса охлаждающей жидкости)
- Y27/15 (регулятор рециркуляции ОГ)
- Y27/16 (электромагнитный клапан охлаждения рециркуляции ОГ)
- Y74/5 (клапан регулирования давления)
- Y76/1 (топливная форсунка цилиндра 1)
- Y76/2 (топливная форсунка цилиндра 2)
- Y76/3 (топливная форсунка цилиндра 3)
- Y76/4 (топливная форсунка цилиндра 4)
- Y77/6 (сервомеханизм регулировки давления нагнетаемого воздуха)
- Y94/3 (дозирующий клапан)
- Z203/3 (концевая муфта шины данных LIN)
- Z6/113 (концевая муфта подключения массы)
- Z6/118 (концевая муфта подключения массы датчика)
- Z6/119 (концевая муфта подключения массы датчика)
- Z6/120 (концевая муфта подключения массы датчика)
- Z6/121 (концевая муфта подключения массы датчика)
- Z6/178 (концевая муфта подключения массы датчика)
- Z6/179 (концевая муфта подключения массы)
- Z7/106z1 (концевая муфта выхода 5 В)
- Z7/107 (концевая муфта клеммы 87)
- Z7/109 (концевая муфта клеммы 87)
- Z7/110 (концевая муфта клеммы 87)
- Z7/180 (концевая муфта подключения массы)
- Z7/186 (концевая муфта выхода 5 В)
Места установки

Y27/15 (регулятор рециркуляции ОГ)

Y27/16 (электромагнитный клапан охлаждения рециркуляции ОГ)

М16/45 (сервомотор дроссельной заслонки)

Y77/6 (сервомеханизм регулировки давления нагнетаемого воздуха)

Y74/5 (клапан регулирования давления)

М72/1 (сервомотор отключения впускного канала)

G2 (генератор)

R9/1 (свеча накаливания цилиндра 1)
R9/2 (свеча накаливания цилиндра 2)
R9/3 (свеча накаливания цилиндра 3)
R9/4 (свеча накаливания цилиндра 4)

N14/8 (выходной каскад предпускового подогрева)

В2/12 (термоанемометрический расходомер массы воздуха)
В2/12Ы (датчик температуры всасываемого воздуха)

Y127/1 (клапан форсунок разбрызгивания масла)

В4/16 (датчик давления в рампе)

Y19/10 (переключающий клапан насоса охлаждающей жидкости)

В11/17 (датчик температуры охлаждающей жидкости)

L5/11 (датчик положения коленвала)

В85/4 (кислородный датчик)

Y94/3 (дозирующий клапан)

В6/23 (датчик числа оборотов)

Y133 (клапан регулируемого масляного насоса)

В40/6 (датчик уровня масла в двигателе)

В28/17 (датчик давления после воздушного фильтра)

В5/6 (датчик давления нагнетаемого воздуха)

В28/12 (датчик дифференциального давления сажевого фильтра) [Цифровой]

М1 (стартер)

N3/31 (блок управления CDI)

В17/13 (датчик температуры нагнетаемого воздуха)

В16/22 (датчик температуры перед дизельным окислительным катализатором)

В16/23 (датчик температуры перед сажевым фильтром)

R48/2 (элемент подогрева термостата)

N74 (блок управления датчиком сажи)

N37/7 (блок управления датчиком NOx перед катализатором SCR)

N37/8 (блок управления датчиком NOx после катализатора SCR)

В40/9 (датчик температуры масла двигателя)
Распределение штекеров



