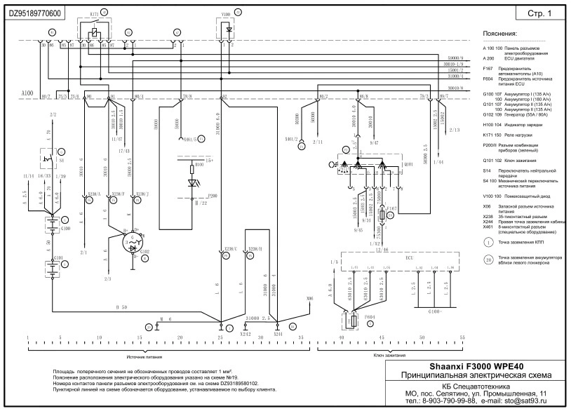
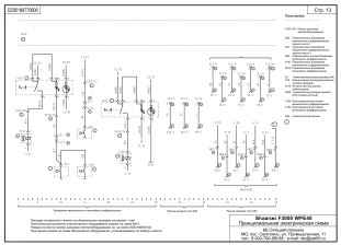
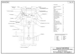
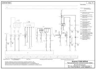
Принципиальная электрическая схема Shaanxi F3000

- А 100 100 Панель разъемов электрооборудования
- А 200 ECU двигателя
- F167 Предохранитель автомагнитоллы (А10)
- F604 Предохранитель источника питания ECU
- G100 107 Аккумулятор I (135 А/ч)
- 100 Аккумулятор I (180 А/ч)
- G101 107 Аккумулятор II (135 А/ч)
- 100 Аккумулятор II (135 А/ч)
- G102 109 Генератор (55А / 80А)
- Н100 104 Индикатор зарядки
- К171 150 Реле нагрузки
- P200/II Разъем комбинации приборов (зеленый)
- Q101 102 Ключ зажигания
- S14 Переключатель нейтральной передачи
- S4 100 Механический переключатель источника питания
- V100 100 Помехозащитный диод
- Х06 Запасной разъем источника питания
- Х238 35-тиконтактный разъем
- Х244 Правая точка заземления кабины
- Х461 8-миконтактный разъем (специальное оборудование)





Все схемы в высоком качестве смотри в обновлении 112


