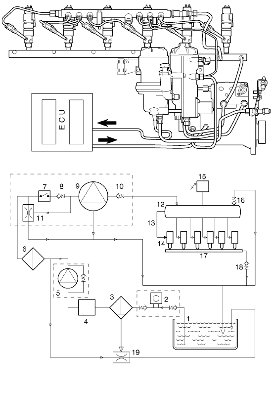
Топливная система XPI SCANIA

Описания, проверка низкого давления
L1 – Проверка низкого давления
1 Откройте контрольный вывод на насосе высокого давления.
2 Поработайте ручным насосом. Проверьте, выходит ли топливо из контрольного вывода.
3 Проверните двигатель стартером. Проверьте, выходит ли топливо из контрольного вывода.
4 Закройте контрольный вывод.
L2 – Проверка всасывающего фильтра
Примечание: При замене фильтров проверьте следующее при снятом всасывающем фильтре.
1 Поработайте ручным насосом и убедитесь в том, что топливо, не содержащее воздуха, вытекает из отверстия на внутренней стороне корпуса фильтра.
2 Если топливо не вытекает, проверьте сетчатый фильтр и все соединения на всасывающем патрубке вплоть до топливозаборного блока. Замените уплотнения и проверьте и подзатяните соединения.
3 Если топливо вытекает, установите новый фильтр и удалите воздух из топливной системы в соответствии с L7.
L3 – Проверка подкачивающего насоса
1 Подсоедините шланг к контрольному выводу на фильтре высокого давления. Поместите другой конец шланга в приемную емкость и полностью откройте контрольный вывод.
2 Проверните двигатель стартером в течение 20 секунд. Подкачивающий насос обеспечивает подачу около 1,2 л/мин. Правильное количество за 20 секунд составляет 0,30,4 л.
Примечание: Перед измерением удалите из топливной системы весь воздух в соответствии с L7.
L4 – Проверка привода подкачивающего насоса
1 Снимите подкачивающий насос с кронштейна насоса высокого давления.
2 Проверните топливоподкачивающий насос рукой. Насос должен свободно проворачиваться, и приводной вал насоса должен быть исправен.
3 Убедитесь в том, что приводные пальцы насоса высокого давления исправны.
4 Проверните двигатель стартером. Убедитесь в том, что привод подкачивающего насоса в насосе высокого давления вращается.
L5 – Проверка привода топливного насоса высокого давления
1 Снимите насос высокого давления.
2 Проверните двигатель стартером. Убедитесь в том, что привод насоса высокого давления в газораспределительном механизме вращается .
3 Замените шестерню привода насоса, если привод не вращается или поврежден. Проверьте на наличие повреждений шестерню насоса высокого давления. Поврежденные шестерни следует заменить.
4 Если шестерня привода насоса в газораспределительном механизме вращается и не повреждена:
Убедитесь в том, что шестерня насоса высокого правильно посажена на вал. Если шестерня не закреплена, может быть поврежден вал. Не затягивайте шестерню. Замените насос высокого давления.
Если шестерня заедает, насос высокого давления неисправен. Замените насос высокого давления.
L6 – Проверка давления подачи в контрольном выводе на насосе высокого давления
1 Подсоедините манометр 99 362 к контрольному выводу на насосе высокого давления или к фильтру высокого давления и откройте контрольный вывод.
2 Проверните двигатель стартером. Снимите показание давления приблизительно через 20 секунд. Давление должно быть выше 2 бар.
Примечание: Низкое давление подкачивающего насоса может быть обусловлено неисправностью подкачивающего насоса или может быть признаком неисправности головки цилиндра топливного насоса высокого давления.
Примечание: Убедитесь, что уровень заряда аккумулятора достаточен для запуска двигателя стартером при 90 об/мин.
3 Если двигатель запускается, увеличьте частоту вращения двигателя до 1500 об/мин. Снимите показание давления. Давление должно находиться в диапазоне между 9 и 14 бар.
Примечание: Помните, что в настоящее время нет метода, с помощью которого можно бы было подтвердить, что топливный фильтр заблокирован. Если код неисправности 135 активируется при большой нагрузке, вероятно, топливный фильтр закупорен. Даже несмотря на закупорку фильтра подкачивающий насос может создавать давление от 9 до 14 бар.
4 Закройте контрольный вывод и снимите манометр.
L7 – Удаление воздуха из топливной системы
1 Открутите крышку (A) всасывающего фильтра с влагоотделителем так, чтобы открыть зеленое уплотнительное кольцо.
Примечание: Открутите крышку не более чем на 1 оборот. При открывании крышки более чем на 1 оборот открывается слив и топливо сливается обратно в бак.
2 Работайте ручным насосом до тех пор, пока топливо не начнет вытекать мимо уплотнительного кольца.
3 Затяните крышку на всасывающем фильтре с влагоотделителем.
4 Откройте вентиляционный клапан на напорном фильтре.
5 Работайте ручным насосом до тех пор, пока топливо не начнет вытекать из вентиляционного клапана.
6 Затяните вентиляционный клапан.

9- и 13-литровые двигатели
Открутите крышку так, чтобы было видно уплотнительное кольцо (приблизительно 1 оборот)

16-литровый двигатель
Открутите крышку так, чтобы было видно уплотнительное кольцо (приблизительно 1 оборот)
Описания, проверка высокого давления
H1 – Проверка наличия внутренних протечек
В диагностическом сканере имеются дополнительные проверки, с помощью которых можно определить, какой цилиндр следует изолировать в первую очередь. Например, можно проверить, возникают ли аномальные звуки во время «Активации электромагнитных клапанов насос-форсунок» и «Отсечки цилиндров».
Примеры проверки баланса в цилиндрах
Пример результатов, полученных в ходе проверки баланса в цилиндрах, показан справа.
Если сравнить результаты приведенные в этом примере, первые два результата в первую очередь указывают на цилиндр № 1 и во вторую очередь - на цилиндр № 2.
Поэтому сначала заглушите форсунку № 1 в соответствии с H5.
Баланс цилиндров (мг/рабочий ход)

- Наиболее очевидное отклонение в цилиндре № 1
Проверка баланса цилиндров (Нм)

- Наиболее очевидные отклонения в цилиндрах 1 и 2
Примечание: Отклонение только указывает на возможность неполадок.
Это не является подтверждением неисправности!
H2 – Проверка давления возвращаемого топлива, когда двигатель может быть запущен
1 Подсоедините манометр 99 362 к контрольному выводу на топливной рампе и откройте контрольный вывод.
2 Запустите двигатель и дайте ему поработать на холостом ходу не менее 1 минуты перед считыванием давления. Давление должно находиться в диапазоне между 0,5 и 0,7 бар. Если давление ниже 0,5 бар, перепускной клапан необходимо прочистить или заменить.
• При снятии перепускного клапана внутрь попадает воздух. После повторной установки дайте двигателю поработать на холостом ходу около 5 минут, а затем повторно начните с п.1.
3 Если давление выше 0,8 и H1 заканчивается неудачей, выполните инструкции H5, чтобы найти неисправную форсунку или соединение высокого давления.
4 Если давление ниже 0,7 и H1 заканчивается неудачей, причиной неисправности может быть либо неисправная форсунка, либо растресканая головка цилиндра.
• Если внутренняя протечка (H1) оказывается значительной, головка цилиндра, вероятно, растрескана. Если достичь давления 2400 бар затруднительно, головка цилиндра, вероятно, растрескана.
5 Если внутренняя протечка (H1) оказывается незначительной, скорей всего, неисправность кроется в форсунке. Следуйте инструкциям H5, чтобы найти неисправную форсунку.
6 Заглушите двигатель. Снимите манометр и закройте контрольный вывод.
H3 – Проверка предохранительного клапана, когда двигатель может быть запущен
1 Запустите двигатель, дайте ему поработать в режиме холостого хода в течение 15 секунд и затем выключите подачу напряжения от клеммы 15. Проверьте, нагрелась ли возвратная магистраль между предохранительным клапаном и возвратной топливной рампой.
2 Если возвратная магистраль горячая, это обусловлено тем, что в последнем цикле работы двигателя предохранительный клапан был открыт. Наиболее вероятной причиной этого является заедание в открытом положении впускного клапана дозирования топлива. Продолжите диагностику, заменив впускной клапан дозирования топлива.
3 Если возвратная магистраль не горячая, запустите двигатель и с помощью диагностического сканера выполните проверку «Проверка предохранительного клапана на наличие протечек», не снимая возвратную магистраль.
ПРЕДOCTEPEЖЕНИЕ!
По соображениям безопасности важно не снимать возвратную магистраль при выполнении шага 3. Если во время проверки со снятой магистралью откроется предохранительный клапан, горячее топливо с огромной силой вырвется наружу.
4 Если в ходе выполнения проверки «Проверка предохранительного клапана на наличие протечек» возвратная магистраль становится горячей, это говорит о неисправности предохранительного клапана. Продолжите диагностику, заменив предохранительный клапан.
5 Если возвратная магистраль не нагревается и давление в аккумуляторе не достигает 2400 бар, вероятно, предохранительный клапан работает. Отмените проверку и продолжите диагностику топливной системы.
ПРЕДOCTEPEЖЕНИЕ!
Аккумулятор может находиться под высоким давлением. Перед началом работы уменьшите давление с помощью диагностического сканера. Наденьте защитные очки. Если предохранительный клапан открыт, вы рискуете получить ожог.
6 Если возвратная магистраль не нагревается, но давление в аккумуляторе достигает 2400 бар, снимите возвратную магистраль, заглушите топливную рампу (9-13L) или топливный насос высокого давления (16L). Опустите пластиковый шланг в сухую ёмкость, чтобы можно было обнаружить незначительное количество топлива.

Снова запустите «Проверку предохранительного клапана на наличие протечек» в диагностическом сканере и выполняйте её приблизительно 5 минут, чтобы дать возможность каплям топлива стечь в ёмкость. Отмените выполнение проверки при наличии признаков топлива в ёмкости. Если утечка из предохранительного клапана составляет более 3 капель в минуту, это говорит о неисправности клапана и необходимости его замены.
ПРЕДOCTEPEЖЕНИЕ!
Если во время проверки откроется предохранительный клапан, большое количество горячего топлива вырвется наружу. Не выполняйте проверку без контроля.
7 Установите на место трубопровод двигателя. Затяните предписанным усилием.
H5 – Подтверждение неисправности форсунки, когда двигатель может быть запущен
ПРЕДOCTEPEЖЕНИЕ!
Аккумулятор может находиться под высоким давлением. Перед началом работы уменьшите давление с помощью диагностического сканера. Наденьте защитные перчатки и очки.
ПРЕДOCTEPEЖЕНИЕ!
Если все выходы аккумулятора давления заглушены, сбросить давление с помощью SDP3 не удастся. В аккумуляторе давления сохранится давление около 2400 бар.
1 Снимите топливопровод высокого давления, идущий к форсунке, выявленной на стадии H1. Если на стадии H1 не выявлена никакая форсунка, на основании предыдущих проверок попытайтесь определить, какая форсунка является наиболее вероятной.
2 Заглушите выходы форсунки и аккумулятора давления топлива.
• Используйте топливные заглушки из комплекта инструментов 99 720 для 9- и 13-литровых двигателей. Комплект инструментов состоит из пяти топливных заглушек 2 290 852 и одной топливной заглушки 99 721.
• Используйте топливные заглушки из комплекта инструментов 99 748 для 16-литровых двигателей. Комплект инструментов состоит из четырех топливных заглушек 99 479.
ВНИМАНИЕ!
Все заглушки следует затянуть усилием 38 Нм.
3 Убедитесь в том, что выявлена правильная форсунка, для этого проверьте наличие внутренней протечки, используя SDP3. Система должна быть в состоянии поддерживать давление.
4 Если проверка не дала результата, оставьте заглушку на месте и повторите п.п. 1–3, заглушив следующую подозреваемую форсунку.
Примечание: Помните о том, что одновременно могут быть неисправны несколько форсунок. Если проверка наличия внутренних протечек пройдена успешно, (H1) или H6, осмотрите соединения высокого давления и подтяните их, прежде чем заменять какую либо из форсунок.
ПРЕДOCTEPEЖЕНИЕ!
Если все выходы аккумулятора давления заглушены, сбросить давление можно только вывернув одну из заглушек. Накройте заглушку толстой ветошью и аккуратно выверните ее. Проследите за тем, чтобы никакие элементы не мешали выворачиванию заглушки.
5 Продолжайте, пока двигатель продолжает запускаться. Когда запуск двигателя станет невозможен, продолжите с п. H6.
6 Если протечку все еще не удалось обнаружить при всех заглушенных топливопроводах, вероятной причиной является растрескивание головки цилиндров насоса высокого давления. Замените головку цилиндров и перейдите к п. 7.
7 Повторно подсоедините топливопроводы по одному за раз, чтобы выявить дальнейшие протечки в форсунках и выполнить необходимый ремонт.
8 С помощью диагностического санера обновите коды настройки для всех замененных форсунок.
Примечание: По завершении процедуры после устранения протечек все отсоединенные топливопроводы высокого давления подлежат обязательной замене.
H6 – Подтверждение неисправности форсунки, когда двигатель не запускается
ПРЕДOCTEPEЖЕНИЕ!
Аккумулятор может находиться под высоким давлением. Перед началом работы уменьшите давление с помощью диагностического сканера. Наденьте защитные перчатки и очки.
ПРЕДOCTEPEЖЕНИЕ!
Если все выходы аккумулятора давления заглушены или если отсоединены соединения A1 и B1, SDP3 нельзя использовать для снижения давления. В аккумуляторе давления сохранится давление около 2400 бар.
1 Следуйте инструкциям для «Проверки наличия внутренней протечки с использованием стартера» в диагностическом сканере.
Ручной способ:
1 Отсоедините соединение от впускного клапана дозирования топлива так, чтобы блок управления не запретил нагнетание давления.
2 Отсоедините соединения A1 и B1, на блоке управления, чтобы отсоединить форсунки. Это необходимо, чтобы не допустить запуск двигателя во время проверки.
3 С помощью диагностического сканера проверьте давление топлива в аккумуляторе давления (датчик давления топлива T111).
• Важно отслеживать давление топлива, пока работает стартер. Если давление превышает 2400 бар, существует опасность активации предохранительного клапана. Для упрощения отслеживания давления нажмите на значок с символом графика.
Примечание: Помните о том, что после того, как давление начало расти, требуемые показания могут быть достигнуты за несколько секунд. Если давление превышает 2800 бар, активируется предохранительный клапан.

- 9- и 13-литровые двигатели

- 16-литровый двигатель

4 Не выключайте стартер, пока давление не достигнет 2000-2400 бар.
•Восстановите исходное состояние предохранительного клапана, для этого выключите зажигание и затем повторите п.4.
• Выключите стартер приблизительно через 15 секунд, если протечка настолько значительна, что насос высокого давления не может поднять давление до 2000 бар.
5 Если в течение минуты после выключения стартера давление падает более чем на 300 бар, проверка закончилась неудачей.
6 Заглушите оставшиеся форсунки по одной за раз и повторите п.п. 3–5, пока система не сможет держать давление.
• Используйте топливные заглушки из комплекта инструментов 99 720 для 9- и 13-литровых двигателей. Комплект инструментов состоит из пяти топливных заглушек 2 290 852 и одной топливной заглушки 99 721.
• Используйте топливные заглушки из комплекта инструментов 99 748 для 16-литровых двигателей. Комплект инструментов состоит из четырех топливных заглушек 99 479.
ВНИМАНИЕ!
Все заглушки следует затянуть усилием 38 Нм.
Примечание: Помните о том, что одновременно могут быть неисправны несколько форсунок. Проверьте соединение высокого давления и затяните его перед заменой форсунок.
ПРЕДOCTEPEЖЕНИЕ!
Если все выходы аккумулятора давления заглушены, сбросить давление можно только вывернув одну из заглушек. Накройте заглушку толстой ветошью и аккуратно выверните ее. Проследите за тем, чтобы никакие элементы не мешали выворачиванию заглушки.
7 Если протечку все еще не удалось обнаружить при всех заглушенных топливопроводах, вероятной причиной является растрескивание головки цилиндров насоса высокого давления. Замените головку цилиндров.
Примечание: Если предохранительный клапан был активирован в ходе проверки, проверьте его перед заменой головки цилиндров.
8 Подсоедините топливопроводы по одному за раз, чтобы выявить дальнейшие протечки в форсунках и выполнить необходимый ремонт.
9 Подсоедините все электрические разъемы после устранения протечек в системе и удалите все коды неисправности.
10 С помощью диагностичесого сканера обновите коды настройки для всех замененных форсунок.
Примечание: По завершении процедуры после устранения протечек все отсоединенные топливопроводы высокого давления подлежат обязательной замене.
H7 – Проверка давления возвращаемого топлива, когда двигатель не запускается
1 Подсоедините манометр 99 362 к контрольному выводу на возвратной топливной рампе и откройте контрольный вывод.
2 Вращайте коленчатый вал стартером. Снимите показание давления приблизительно через 20 секунд. Значение давления должно быть ниже 0,8 бар.
3 Если отчетливое значение не получено через 20 секунд, дайте стартеру возможность остыть и повторите действия по п.2.
Примечание: При наличии воздуха в корпусе фильтра давление не может быть создано. Удалите воздух из корпуса фильтра и попытайтесь снова.
4 Снимите манометр и закройте контрольный вывод.
H8 – Проверка предохранительного клапана, когда двигатель не запускается
1 Снимите возвратную магистраль, заглушите топливную рампу (9-13 л) или топливный насос высокого давления (16 л). Опустите пластиковый шланг в сухую ёмкость, чтобы можно было обнаружить незначительное количество топлива.
Примечание: Подсоедините пластиковый шланг, используя запчасти из списка запчастей, приведённого ниже.

2 Вращайте коленчатый вал стартером. Если топливо вытекает из предохранительного клапана, он неисправен и его следует заменить.
3 Установите на место трубопровод двигателя. Затяните предписанным усилием.
H9 – Проверка насоса высокого давления.
1 Проверьте головку цилиндров топливного насоса высокого. При обнаружении неисправности замените головку цилиндра.
2 Если головка цилиндра в порядке, а проблемы всё ещё присутствуют, причиной неисправности может быть впускной клапан дозирования топлива. Попробуйте установить новый впускной клапан дозирования топлива.
3 Если проблема всё ещё сохраняется, она может заключаться в топливном насосе высокого давления. Замените насос высокого давления и перейдите к S-a.